NewConstruction Rammetillatelse Enebolig

Ny enebolig med garasje i Skyttaveien 15, Nittedal

📍 Skyttaveien 15 , 1481 HAGAN

Nøkkelinfo

Sakstype
Nybygg
Bygningstype
Enebolig
Bruksareal
191 m²
Boenheter
1
Kommune
Nittedal
Fylke
Akershus
Gnr / Bnr
4 / 674
Saksnummer
25/03434
Fase
Rammetillatelse

Om byggesaken

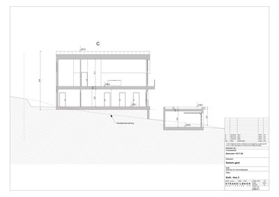
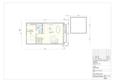
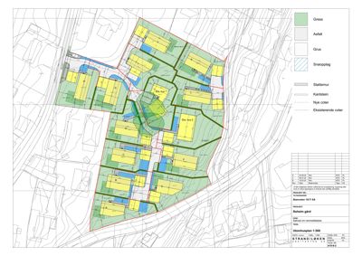
Ny enebolig på 191,3 m² BRA fordelt på to etasjer med saltak og trepanel som fasademateriale. Boligen har 3 soverom, 2 bad, stue/kjøkken på 62,1 m², balkong på 6,3 m² og integrert garasje på 30,2 m². Bygget har gesimshøyde på 5,4 m og mønehøyde på 8,8 m over gjennomsnittlig planert terreng. Tomten er på ca. 501,8 m² med uteoppholdsareal på 287,6 m² og tilhørende utomhusanlegg med markterrasser og regnbed for overvannshåndtering. Det er etablert felles adkomstvei med godkjent avkjørsel fra Åsheimgrenda, og tilknytning til offentlig vann- og avløpsnett. Renovasjonsløsning med avfallsbrønner er planlagt i henhold til kommunens normer. Prosjektet er i tråd med gjeldende reguleringsplan og tekniske krav.

Produkter og materialer

Dører Ytterdør og balkongdør

🧱 Tre

Antall: 6

Ytterdører og balkongdør i tre

Vinduer Fasadevindu

🧱 Tre med 3-lags energiglass

Antall: 13

Fasadevinduer i tre med 3-lags energiglass i ulike fasader

Tak Saltak

🧱 Takstein eller tilsvarende

Antall: 1

Saltak med gesimshøyde 5,4 m og mønehøyde 8,8 m

Saltak på eneboligen

Elektro Elektrisk anlegg

Elektrisk anlegg i henhold til gjeldende forskrifter

Grunnarbeid Tomtearbeid og fundamentering

Grunnarbeid i henhold til kommunale krav og VA-norm

Grunnarbeid med fundamentering og drenering

VVS Vann- og avløpsanlegg

Tilkobling til kommunalt vann- og avløpsnett, stikkledninger i PE og PVC

Vann- og avløpsanlegg med brannkum og spillvannskum

Fasade Trepanel

🧱 Tre

Trepanel som hovedmateriale på fasade

Trepanel som fasademateriale på bolig

Ventilasjon Mekanisk ventilasjon

Mekanisk ventilasjon i henhold til TEK17

Veianlegg Felles privat vei og avkjørsel

Felles adkomstvei med avkjørsel fra Åsheimgrenda, bredde i henhold til FA1 standard

Felles privat vei med godkjent avkjørsel og snuplass

Trapper Innvendig trapp

Antall: 1

Innvendig trapp mellom etasjer

Avfall Avfallsbrønner og oppstillingslomme

Avfallsbrønner plassert i henhold til renovasjonsnorm og godkjent av ROAF

Avfallsløsning med avfallsbrønner og oppstillingslomme for renovasjonsbil

Overflater Innvendige gulv og vegger

🧱 Eikeparkett, fliser på bad

Innvendige overflater med eikeparkett og fliser på bad

Garasjeport Port til integrert garasje

Antall: 1

Garasjeport til integrert garasje på 30,2 m²

Maling Utvendig og innvendig maling

Maling av trepanel og innvendige flater

Maling for beskyttelse og estetikk

Betong Fundament og støttemurer

Støttemurer ved hus K og L i tråd med byggegrenser

Betongfundament og støttemurer

Terrasse Markterrasse

Antall: 4

Markterrasser på 25,6 - 29,1 m²

Terrasser på tomten for uteopphold

Isolasjon Isolasjon i vegger og tak

Isolasjon i henhold til TEK17 krav

Isolasjon for energieffektivitet og komfort

Regnvannshåndtering Regnbed

Antall: 14

Regnbed for lokal overvannshåndtering på hver tomt

Regnbed for infiltrasjon og fordrøyning av overvann

Plantegning

Enebolig 96.4 m²

Etasje 2 96.4 m²

Rom Areal Vinduer Dører
Stue/kjøkken 201 62.1 m² 1 1
Sov 202 25.0 m² 2 1
Bad 203 6.3 m² 0 1
Balkong 204 6.3 m² 0 1

Fasader

Hus C

Øst
Materiale
Tre
Taktype
Saltak
Høyde
5.4 m
Mønehøyde
8.8 m
Vinduer
5
Dører
1
Balkonger
1
Synlige etasjer
2
Nord
Materiale
Tre
Taktype
Flatt tak
Høyde
5.4 m
Mønehøyde
8.8 m
Vinduer
5
Dører
2
Synlige etasjer
2
Sør
Materiale
Tre
Taktype
Flatt tak
Høyde
8.8 m
Mønehøyde
227.4 m
Vinduer
3
Dører
1
Synlige etasjer
2

Hendelser

17.04.2026 25/03434-2 Rammetillatelse - 4/674 - Skyttaveien - Oppføring av enebolig (hus C) og garasje med tilhørende utomhusareal
13.02.2026 25/03434-6 Supplering av søknad - 4/674 - Skyttaveien 15 - Hus C
02.02.2026 25/03434-5 Tilbakemelding på mottatte perspektivtegninger og videre krav til byggesøknader – Skytta – Oppføring av boliger og garasje (hus A, B, C, D, E, F, G, H og J)
05.12.2025 25/03434-4 Anmodning om supplerende dokumentasjon - Skytta - Oppføring av boliger og garasje (hus A, B, C, D, E, F, G, H og J)
10.11.2025 25/03434-3 Supplering av søknad - 4/674 - Skyttaveien 15 - Hus C
15.10.2025 25/03434-1 Søknad om rammetillatelse - 4/125 - Skyttaveien 15 - Hus C