NewConstruction Rammetillatelse Enebolig

Ny enebolig og garasje med dispensasjon i Skyttaveien 15, Nittedal

📍 Skyttaveien 15 , 1481 HAGAN

Nøkkelinfo

Sakstype
Nybygg
Bygningstype
Enebolig
Bruksareal
182 m²
Boenheter
1
Kommune
Nittedal
Fylke
Akershus
Gnr / Bnr
4 / 679
Saksnummer
25/03444
Fase
Rammetillatelse

Om byggesaken

Ny enebolig på ca. 181,8 m² BRA fordelt på to etasjer med saltak og flatt tak, samt tilhørende frittliggende garasje på 36 m². Boligen har 3 soverom, 2 bad, stue/kjøkken og balkong. Bygget er oppført i tre med trepanelkledning og har pipe. Tomten er på ca. 563 m² med uteoppholdsareal på 312 m², inkludert flere markterrasser. Det er etablert felles adkomstvei, vann- og avløpsanlegg, overvannshåndtering med regnbed, og renovasjonsløsning i henhold til kommunale normer. Garasjen er plassert med dispensasjon fra byggegrense mot vei. Prosjektet inkluderer også tilpasning til terreng, snølagring og parkering i henhold til krav.

Produkter og materialer

Maling Utvendig og innvendig maling

Maling av trepanel og innvendige flater.

Fasade Trepanelkledning

🧱 Tre

Trepanel som hovedmateriale på fasader.

Tak Saltak og flatt tak

🧱 Tre og taktekking

Saltak på hoveddel, flatt tak på del av bygget

Saltak på hoveddelen av boligen og flatt tak på tilbygg.

Grunnarbeid Tomtearbeid og fundamentering

Grunnarbeid med tilpasning til terreng, støttemurer ved hus K og L

Grunnarbeid for bolig og garasje, inkludert støttemurer og terrengtilpasning.

Annet Avfallsbrønner og renovasjonsløsning

Molok Domino eller tilsvarende avfallsbrønner med oppstillingslomme for renovasjonsbil

Felles renovasjonsanlegg med krav til oppstillingsplass for renovasjonsbil i henhold til renovasjonsnorm.

Vinduer Fasadevindu

🧱 Tre

Antall: 17

Fasadevindu i tre, fordelt på 2 etasjer, inkludert 4 vinduer på fasade øst, 5 på sør, 4 på nord og 1 på vest.

VVS Vann- og avløpsanlegg

VA-anlegg med ringledning, vannkummer, brannkum, stikkledninger i PVC og PE

Felles vann- og avløpsanlegg tilkoblet kommunalt nett, med brannvannsuttak og vannmålere.

Garasjeport Garasjeport

Antall: 1

Garasjeport til frittliggende garasje.

Betong Fundament og grunnmur

Betongfundament og grunnmur i henhold til prosjektering.

Ventilasjon Ventilasjonssystem

Ventilasjon i henhold til TEK17 krav.

Terrasse Markterrasse

Antall: 8

Markterrasser på mellom 23 og 44 m²

Flere markterrasser på tomten for uteopphold.

Overflater Innvendige gulv og vegger

🧱 Eikeparkett og fliser

Innvendige overflater med eikeparkett og fliser på bad.

Varmepumpe Varmepumpe

Ingen eksplisitt opplysning, men vanlig i nye boliger.

Solceller Solcelleanlegg

Ingen eksplisitt opplysning om solceller, men kan vurderes som tilleggsprodukt.

Rekkverk Balkongrekkverk

Antall: 1

Rekkverk på balkong i 2. etasje.

Trapper Innvendig trapp

Antall: 1

Innvendig trapp i eneboligen mellom 1. og 2. etasje.

Elektro Elektrisk anlegg

Elektrisk installasjon i henhold til gjeldende forskrifter.

Dører Ytterdører og balkongdør

🧱 Tre

Antall: 9

Ytterdører og balkongdør i tre, inkludert 3 dører på fasade sør, 3 på nord, 1 på øst og 1 på vest.

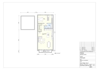
Plantegning

Enebolig 91.3 m²

Etasje 2 91.3 m²

Rom Areal Vinduer Dører
Sov Sov 21.8 m² 2 1
Bad Bad 6.3 m² 1 1
Stue/kjøkken Stue/kjøkken 60.6 m² 3 1

Fasader

Hus E

Øst
Materiale
Tre
Taktype
Saltak
Høyde
5.7 m
Mønehøyde
9.0 m
Vinduer
4
Dører
1
Balkonger
1
Synlige etasjer
2

Hus H

Vest
Materiale
Tre
Taktype
Flatt tak
Høyde
5.3 m
Mønehøyde
8.2 m
Vinduer
1
Dører
1
Synlige etasjer
1
Sør
Materiale
Tre
Taktype
Saltak
Høyde
5.3 m
Mønehøyde
8.2 m
Vinduer
5
Dører
3
Balkonger
1
Synlige etasjer
2
Nord
Materiale
Tre
Taktype
Saltak
Høyde
5.3 m
Mønehøyde
8.2 m
Vinduer
4
Dører
3
Synlige etasjer
2
Øst
Materiale
Tre
Taktype
Flatt tak
Høyde
2.8 m
Mønehøyde
232.1 m
Vinduer
4
Dører
1
Synlige etasjer
1

Hendelser

17.04.2026 25/03444-2 Rammetillatelse med dispensasjon - 4/679 - Skyttaveien - Oppføring av enebolig (hus H) og garasje med tilhørende utomhusareal
13.02.2026 25/03444-6 Supplering av søknad - 4/679 - Skyttaveien 15 - Hus H
03.02.2026 25/03444-5 Tilbakemelding på mottatte perspektivtegninger og videre krav til byggesøknader - Skytta - Oppføring av boliger og garasje - hus A, B, C, D, E, F, G, H og J
05.12.2025 25/03444-4 Anmodning om supplerende dokumentasjon - Skytta - Oppføring av boliger og garasje (hus A, B, C, D, E, F, G, H og J)
10.11.2025 25/03444-3 Supplering av søknad - 4/679 - Skyttaveien 15 - Hus H
15.10.2025 25/03444-1 Søknad om rammetillatelse med dispensasjon - 4/125 - Skyttaveien 15 - Hus H