NewConstruction Rammetillatelse Enebolig

Ny enebolig med garasje i Skyttaveien 15, Nittedal

📍 Skyttaveien 15 , 1481 HAGAN

Nøkkelinfo

Sakstype
Nybygg
Bygningstype
Enebolig
Bruksareal
191 m²
Boenheter
1
Kommune
Nittedal
Fylke
Akershus
Gnr / Bnr
4 / 675
Saksnummer
25/03436
Fase
Rammetillatelse

Om byggesaken

Ny enebolig på 191,3 m² BRA fordelt på to etasjer med saltak og flatt tak, samt tilhørende frittliggende garasje på 36 m². Boligen har 3 soverom, 2 bad, stue og kjøkken i åpen løsning, balkong på 6,3 m² og pipe. Bygget er i tre med gesimshøyde 5,5 m og mønehøyde 8,8 m over gjennomsnittlig planert terreng. Tomten er på 523,6 m² med uteoppholdsareal på ca. 283 m², inkludert flere markterrasser. Det er etablert felles adkomstvei med snuplass og renovasjonsløsning med avfallsbrønner. Overvann håndteres lokalt med regnbed og fordrøyningsmagasin i tråd med kommunal VA-norm. Parkering er løst med 2 plasser per boenhet, hvorav en i garasje. Tiltaket er i samsvar med reguleringsplan og godkjent av kommunen med vilkår for videre oppfølging.

Produkter og materialer

Terrasse Markterrasse

🧱 Ikke spesifisert

Antall: 6

Markterrasser på 23,1 m², 25,3 m², 27,7 m², 28,6 m², 29,1 m², 43,8 m²

Markterrasser til utebruk

Fasade Trepanel

🧱 Tre

Trepanel på alle fasader

Trepanel som fasadekledning

Elektro Utendørs belysning

🧱 Lyktestolper

Lyktestolper langs vei og adkomst

Utendørs belysning for vei og uteområder

Vinduer Fasadevindu

🧱 Tre med 3-lags energiglass

Antall: 17

Vinduer i fasader nord (4), vest (4), sør (3), øst (6)

Fasadevinduer i tre med energiglass for bolig

VVS Vann- og avløpsanlegg

Felles VA-trase med vannkummer og brannkum, stikkledninger i PE og PVC

Vann- og avløpsanlegg tilkoblet kommunalt nett

Garasjeport Port til frittliggende garasje

🧱 Ikke spesifisert

Antall: 1

Garasjeport på østfasade

Garasjeport til frittliggende garasje

Tak Saltak og flatt tak

🧱 Tre, taktekking ikke spesifisert

Antall: 1

Saltak på øst- og vestfasade, flatt tak på nord- og sørfasade

Tak med saltak og flatt tak i tre

Renovasjon Avfallsbrønner og oppstillingslomme for søppelbil

🧱 Molok Domino eller tilsvarende

Avfallsbrønner plassert i henhold til renovasjonsnorm, oppstillingslomme for søppelbil

Felles renovasjonsløsning med avfallsbrønner

Overflater Uteoppholdsareal og markterrasse

🧱 Gress, asfalt, grus, kantstein

Uteoppholdsareal ca. 283 m², markterrasser fra 23 til 44 m²

Uteoppholdsareal med markterrasser og beplantning

Isolasjon Isolasjon i grunnmur og vegger

🧱 Ikke spesifisert

Isolasjon i henhold til TEK17 og plan- og bygningslov

Isolasjon for boligens konstruksjon

VVS Brannvannskum

Antall: 1

Brannkum med kapasitet 20 l/s og trykk 8 bar

Brannvannskum for slokkevann

Dører Ytterdører og balkongdør

🧱 Tre

Antall: 6

Ytterdører og balkongdør i tre, inkludert garasjeport

Ytterdører til bolig og garasje, samt balkongdør

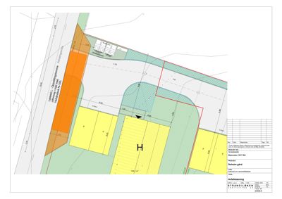
Grunnarbeid Felles adkomstvei og snuplass

🧱 Asfalt og grus

Felles adkomstvei med snuplass for renovasjons- og brannbil

Felles vei og snuplass for boligfeltet

Trapper Innvendig trapp

🧱 Ikke spesifisert

Antall: 1

Innvendig trapp mellom 1. og 2. etasje

Innvendig trapp i bolig

Maling Utvendig maling av trepanel

🧱 Maling for trepanel

Maling av trepanel på fasader

Overflatebehandling av trepanel

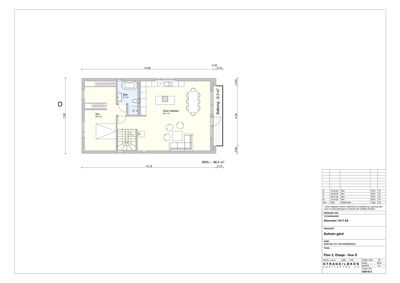
Plantegning

Enebolig 96.4 m²

Etasje 2 96.4 m²

Rom Areal Vinduer Dører
Sov Sov 25.0 m² 1 1
Bad Bad 6.3 m² 0 1
Stue/kjøkken Stue/kjøkken 62.1 m² 1 1

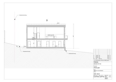
Fasader

Hus D

Nord
Materiale
Tre
Taktype
Flatt tak
Høyde
5.5 m
Mønehøyde
8.8 m
Vinduer
4
Dører
2
Synlige etasjer
2
Vest
Materiale
Tre
Taktype
Saltak
Høyde
5.5 m
Mønehøyde
8.8 m
Vinduer
4
Dører
1
Synlige etasjer
2
Sør
Materiale
Tre
Taktype
Flatt tak
Høyde
5.5 m
Mønehøyde
8.8 m
Vinduer
3
Dører
2
Synlige etasjer
2
Øst
Materiale
Tre
Taktype
Saltak
Høyde
5.5 m
Mønehøyde
8.8 m
Vinduer
6
Dører
1
Balkonger
1
Synlige etasjer
2

Hendelser

17.04.2026 25/03436-2 Rammetillatelse - 4/675 - Skyttaveien - Oppføring av enebolig (hus D) og garasje med tilhørende utomhusareal
13.02.2026 25/03436-6 Supplering av søknad - 4/675 - Skyttaveien 15 - Hus D
02.02.2026 25/03436-5 Tilbakemelding på mottatte perspektivtegninger og videre krav til byggesøknader – Skytta – Oppføring av boliger og garasje (hus A, B, C, D, E, F, G, H og J)
14.01.2026 25/03436-12 25/03436 - Korrespondanse8 - Skyttaveien 15/17
14.01.2026 25/03436-13 25/03436 - Korrespondanse9 -: Skyttaveien 17 - Spørsmål tiltilbakemelding
14.01.2026 25/03436-11 25/03436 - Korrespondanse7 - Skyttaveien 17 - Oppdatert notat og tegning
05.12.2025 25/03436-4 Anmodning om supplerende dokumentasjon - Skytta - Oppføring av boliger og garasje (hus A, B, C, D, E, F, G, H og J)
10.11.2025 25/03436-3 Supplering av søknad - 4/675 - Skyttaveien 15 - Hus D
15.10.2025 25/03436-1 Søknad om rammetillatelse - 4/125 - Skyttaveien 15 - Hus D