NewConstruction Avslatt Enebolig

Ny enebolig med garasje i Skyttaveien 15, Nittedal

📍 Skyttaveien 15 , 1481 HAGAN

Nøkkelinfo

Sakstype
Nybygg
Bygningstype
Enebolig
Bruksareal
178 m²
Boenheter
1
Kommune
Nittedal
Fylke
Akershus
Gnr / Bnr
4 / 672
Saksnummer
25/03431
Fase
Avslått

Om byggesaken

Ny enebolig på 178 m² BRA fordelt på to etasjer med saltak og trepanel som fasademateriale. Boligen har en gesimshøyde på 5,3 m og mønehøyde på 8,6 m, med 1 trapp, 1 balkong og flere vinduer og dører. Garasje på 36 m² er frittliggende på tomten. Utomhusplan viser markterrasser, regnbed for overvannshåndtering, snøopplag og støttemurer. Adkomst skjer via ny avkjørsel fra Åsheimgrenda med godkjent snuplass og renovasjonsløsning med avfallsbrønner. Vann- og avløpsanlegg er prosjektert som ringledning i henhold til kommunal VA-norm. Prosjektet er i tråd med gjeldende reguleringsplan og kommuneplanens bestemmelser, men saken er avslått pga. manglende supplerende dokumentasjon og krav til felles infrastruktur.

Produkter og materialer

Fasade Trepanel

🧱 Tre

Antall: 1

Trepanel som fasademateriale på alle fasader

Trepanel på boligfasade

Trapper Innvendig trapp

🧱 Tre eller betong

Antall: 1

Innvendig trapp mellom 1. og 2. etasje

Innvendig trapp i bolig

Veianlegg Felles privat vei

🧱 Asfalt

Felles adkomstvei med bredde minimum 3,5 m, brøytbar standard, snuplass, tilknytning til Åsheimgrenda med avkjøringstillatelse

Felles privat vei for boligene med godkjent avkjørsel og snuplass

Dører Ytterdør og balkongdør

🧱 Tre

Antall: 5

2 dører mot sør, 1 dør mot øst, 1 dør mot vest, 1 balkongdør i 2. etasje

Ytterdører og balkongdør i tre

Renovasjon Avfallsbrønner og oppstillingslomme for søppelbil

Avfallsbrønner plassert langs Åsheimgrenda, oppstillingslomme for renovasjonsbil i henhold til renovasjonsnorm

Renovasjonsløsning med avfallsbrønner og oppstillingsplass for renovasjonsbil

Grunnarbeid Utomhusplan med terrengarbeid

🧱 Massedeponering, støttemurer, snøopplag, regnbed

Markterrasser, regnbed for overvannshåndtering, snøopplag, støttemurer ved hus K og L

Utomhusarbeider med terrengtilpasning og overvannshåndtering

Vinduer Fasadevindu

🧱 Tre

Antall: 14

Vinduer i trepanel, 5 mot sør, 5 mot øst, 4 mot vest, 2 i stue/kjøkken, 2 i soverom, 0 i bad

Fasadevinduer i tre med varierende størrelse for bolig og balkong

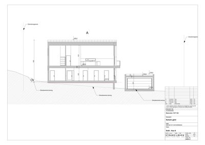
Tak Saltak

🧱 Tre med takstein

Antall: 1

Saltak med gesimshøyde 5,3 m og mønehøyde 8,6 m

Saltak på bolig med trepanel

Balkong Balkong med rekkverk

🧱 Tre

Antall: 1

Balkong på 4 m² med rekkverk

Balkong i 2. etasje

Garasje Frittliggende garasje

🧱 Tre

Antall: 1

Garasje på 36 m², frittliggende

Frittliggende garasje på tomten

VVS Vann- og avløpsanlegg

Ringledning for vann og avløp, vannkummer, brannkum med 20 l/s kapasitet, stikkledninger i PE og PVC

Vann- og avløpsanlegg i henhold til kommunal VA-norm

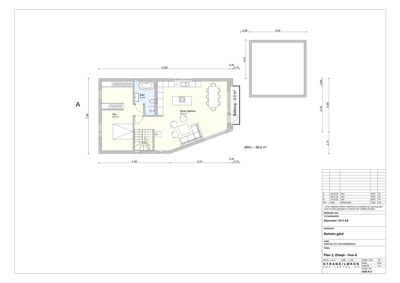
Plantegning

Enebolig 89.6 m²

Etasje 2 89.6 m²

Rom Areal Vinduer Dører
Stue/kjøkken 201 55.4 m² 2 1
Sov 202 25.0 m² 2 1
Bad 203 6.3 m² 0 1

Fasader

Hus A

Sør
Materiale
Tre
Taktype
Saltak
Høyde
5.3 m
Mønehøyde
8.6 m
Vinduer
5
Dører
2
Synlige etasjer
2
Øst
Materiale
Tre
Taktype
Saltak
Høyde
6.4 m
Mønehøyde
8.6 m
Vinduer
5
Dører
1
Balkonger
1
Synlige etasjer
2
Vest
Materiale
Tre
Taktype
Saltak
Høyde
5.3 m
Mønehøyde
8.6 m
Vinduer
4
Dører
1
Synlige etasjer
2

Hus E

Øst
Materiale
Tre
Taktype
Saltak
Høyde
5.7 m
Mønehøyde
8.2 m
Vinduer
4
Dører
1
Balkonger
1
Synlige etasjer
2

Hendelser

20.04.2026 25/03431-13 Foreløpig svar: Anmodning om delutbetaling - Muhammad Basit - Byfornyelsesfond
20.04.2026 25/03431-12 Vedtak - Søknad om støtte - Muhammad Basit - Byfornyelsesfond
17.04.2026 25/03431-2 Rammetillatelse - 4/679 - Skyttaveien 15 - Oppføring av enebolig (hus A) med tilhørende utomhusareal
25.03.2026 25/03431-11 Anmodning om delutbetaling - Muhammad Basit - Byfornyelsesfond
13.02.2026 25/03431-6 Supplering av søknad - 4/672 - Skyttaveien 15 - Hus A
03.02.2026 25/03431-5 Tilbakemelding på mottatte perspektivtegninger og videre krav til byggesøknader - Skytta - Oppføring av boliger og garasje - hus A, B, C, D, E, F, G, H og J
23.12.2025 25/03431-8 Vedtak - klage tas til følge - Opphevelse av vedtak - Muhammad Basit - Byfornyelsesfond
23.12.2025 25/03431-7 Klage på avslag - Muhammad Basit - Byfornyelsesfond
05.12.2025 25/03431-4 Anmodning om supplerende dokumentasjon - Skytta - Oppføring av boliger og garasje (hus A, B, C, D, E, F, G, H og J)
10.11.2025 25/03431-3 Supplering av søknad - 4/672 - Skyttaveien 15 - Hus A
15.10.2025 25/03431-1 Søknad om rammetillatelse - 4/125 - Skyttaveien 15 - Hus A