NewConstruction Rammetillatelse Enebolig

Ny enebolig med garasje i Skyttaveien 15, Nittedal

📍 Skyttaveien 15 , 1481 HAGAN

Nøkkelinfo

Sakstype
Nybygg
Bygningstype
Enebolig
Bruksareal
188 m²
Boenheter
1
Kommune
Nittedal
Fylke
Akershus
Gnr / Bnr
4 / 678
Saksnummer
25/03442
Fase
Rammetillatelse

Om byggesaken

Ny enebolig på 187,7 m² BRA fordelt på to etasjer bygges på en tomt på 502,5 m² i Skyttaveien 15, Nittedal. Boligen har moderne arkitektur med saltak og flatt tak, trepanel som fasademateriale, og inkluderer blant annet stue, kjøkken, tre soverom, tre bad, bod og entré. Det er en balkong på 6,2 m² og en garasje på 36 m² tilknyttet boligen. Utomhusarealet inkluderer markterrasser, regnbed for overvannshåndtering, snølagring og oppstillingslomme for renovasjonsbil. Adkomst skjer via Åsheimgrenda med godkjent avkjørsel. Vann- og avløpsanlegg er prosjektert med ringledning og brannvannskum, og overvann håndteres lokalt med regnbed og fordrøyningsmagasin. Prosjektet er i tråd med gjeldende reguleringsplan og tekniske normer, og det foreligger godkjente ansvarsrettserklæringer for prosjektering og utførelse.

Produkter og materialer

Annet Avfallsbrønner

🧱 Molok Domino eller tilsvarende

Avfallsbrønner plassert i henhold til renovasjonsnorm og godkjent av ROAF

Felles avfallsbrønner for boligområdet

Elektro Lys- og strømanlegg

Eksisterende lys- og strømanlegg langs eiendommen, ingen planlagte endringer

Eksisterende elektriske anlegg i området

Fasade Trepanel

🧱 Tre

Trepanel som hovedmateriale på fasader

Trepanel som fasademateriale på bolig

Tømrer Trepanel kledning

🧱 Tre

Trepanel som fasadekledning på bolig

Trepanel kledning på fasader

Utendørs Oppstillingslomme for renovasjonsbil

Antall: 1

Oppstillingslomme for renovasjonsbil i tråd med Veihåndbok N-100

Oppstillingsplass for renovasjonsbil langs Åsheimgrenda

Vinduer Fasadevindu

🧱 Tre med 3-lags energiglass

Antall: 14

Fasadevindu i tre med 3-lags energiglass, fordelt på to etasjer

Dører Ytterdør og balkongdør

🧱 Tre

Antall: 11

Ytterdører og balkongdør i tre, inkludert inngangsdører og dør til balkong

Garasjeport Garasjeport tilknyttet bolig

Antall: 1

Garasje på 36 m² med port tilknyttet eneboligen

Trapper Innvendig trapp

Antall: 1

Innvendig trapp mellom 1. og 2. etasje

VVS Vann- og avløpsanlegg

🧱 PVC rør, kummer, brannkum

Ringledning for vann og avløp, brannvannskum med kapasitet 20 l/s, stikkledninger i PE 32 og PVC Ø110

Vann- og avløpsanlegg med ringledning, brannvannskum og stikkledninger til bolig

Tak Saltak og flatt tak

🧱 Taktekking i henhold til reguleringsplan

Saltak med mønehøyde 8,5 m og gesimshøyde 5,2-6,2 m, flatt tak på deler av bygget

Taktekking for bolig med saltak og flatt tak i tre

VVS Overvannshåndtering

🧱 Regnbed, fordrøyningsmagasin

Antall: 13

Regnbed på hver tomt, dimensjonert for 5 års nedbør med klimafaktor, infiltrasjonshastighet 10 cm/t

Åpne fordrøyningsløsninger for overvann med regnbed og eventuelt fordrøyningsmagasin

Mur Støttemurer

Støttemurer ved hus K og L i tråd med byggegrenser

Støttemurer i utomhusanlegg for terrengtilpasning

Utendørs Markterrasse

Antall: 6

Markterrasser på 23,1 m² til 43,8 m² rundt bolig

Flere markterrasser for uteopphold

Utendørs Snølagring

Avsatt areal for snølagring uten konflikt med regnbed

Areal for snølagring i utomhusplan

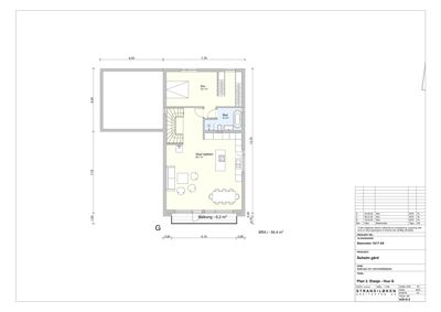
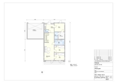
Plantegning

Enebolig 187.7 m²

Etasje 1 93.3 m²

Rom Areal Vinduer Dører
Stue 101 10.6 m² 1 1
Entré 102 8.6 m² 0 2
WC 103 1.5 m² 0 1
Bad 104 3.0 m² 0 1
Bod 105 5.4 m² 0 1
Bad 106 6.7 m² 0 1
Sov 107 9.3 m² 1 1
Sov 108 9.2 m² 1 1
Stue/gang 109 33.6 m² 2 2

Etasje 2 94.4 m²

Rom Areal Vinduer Dører
Soverom Sov 24.7 m² 2 1
Bad Bad 6.3 m² 0 1
Stue/kjøkken Stue/kjøkken 60.7 m² 1 1

Fasader

Hus G

Øst
Materiale
Tre
Taktype
Flatt tak
Høyde
5.2 m
Mønehøyde
8.5 m
Vinduer
5
Dører
1
Synlige etasjer
2
Sør
Materiale
Tre
Taktype
Saltak
Høyde
5.3 m
Mønehøyde
8.2 m
Vinduer
5
Dører
3
Balkonger
1
Synlige etasjer
2
Vest
Materiale
Tre
Taktype
Flatt tak
Høyde
6.2 m
Mønehøyde
8.5 m
Vinduer
1
Dører
1
Synlige etasjer
2
Nord
Materiale
Tre
Taktype
Saltak
Høyde
8.5 m
Mønehøyde
10.2 m
Vinduer
4
Dører
3
Synlige etasjer
2

Hendelser

17.04.2026 25/03442-2 Rammetillatelse - 4/678 - Skyttaveien - Oppføring av enebolig (hus G) med tilhørende utomhusareal
13.02.2026 25/03442-6 Supplering av søknad - 4/678 - Skyttaveien 15 - Hus G
02.02.2026 25/03442-5 Tilbakemelding på mottatte perspektivtegninger og videre krav til byggesøknader – Skytta – Oppføring av boliger og garasje (hus A, B, C, D, E, F, G, H og J)
05.12.2025 25/03442-4 Anmodning om supplerende dokumentasjon - Skytta - Oppføring av boliger og garasje (hus A, B, C, D, E, F, G, H og J)
10.11.2025 25/03442-3 Supplering av søknad - 4/678 - Skyttaveien 15 - Hus G
15.10.2025 25/03442-1 Søknad om rammetillatelse - 4/125 - Skyttaveien 15 - Hus G