NewConstruction UnderBehandling Enebolig

Ny enebolig med garasje på Snegebekk, Ullensvang

๐Ÿ“ Snegebekk

Nรธkkelinfo

Sakstype
Nybygg
Bygningstype
Enebolig
Bruksareal
172 mยฒ
Boenheter
1
Kommune
Ullensvang
Fylke
Vestland
Gnr / Bnr
53 / 548
Saksnummer
2026/1297
Fase
Under behandling

Om byggesaken

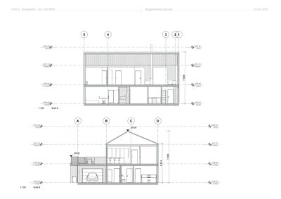
Ny enebolig med tilhørende garasje oppføres på tomt 5 i boligfeltet Snegebekk i Ullensvang kommune. Boligen har et samlet bruksareal på ca. 171,7 m² og er plassert på en tomt på 531 m². Bygget er planlagt med to etasjer, inkludert kjellerstue, flere soverom, bad, vaskerom, bod og en garasje på 21,7 m². Terrenget er delvis bratt med nærliggende fjellskrenter og blokkrike områder, og det er gjennomført omfattende skredfarevurdering som viser at steinsprang er dimensjonerende skredtype med sannsynlighet for utløp inn i området. Bygget skal oppføres i henhold til gjeldende reguleringsplan og tekniske krav, med takvinkel og gesimshøyde tilpasset reguleringsbestemmelser. Det er planlagt tilknytning til offentlig vann- og avløpsnett, og parkeringsareal er plassert i henhold til regelverk. Prosjektet har flere ansvarlige foretak for arkitektur, grunnarbeid, sanitærinstallasjoner og membranarbeid, samt kontrollør for våtrom og lufttetthet.

Produkter og materialer

Membran Membranarbeid

Membranarbeid i henhold til ansvarserklæring fra EDVARD'S BYGGSERVICE AS

Membranarbeid for våtrom og andre relevante områder

Dører Ytterdører og garasjeport

Ytterdører og garasjeport iht. tegninger

Ytterdører til bolig og garasjeport

Tak Saltak med takvinkel

Takvinkel skal vises på oppdaterte tegninger, maks gesimshøyde 8 meter

Saltak med takvinkel tilpasset reguleringsbestemmelser

Bad Bad og våtrom

Bad og våtrom med membran og sanitærutstyr iht. ansvarserklæringer

Bad og våtrom i bolig

Terrasse Terrasse på 33,1 m²

Antall: 33

Terrasse på 33,1 m² iht. tegninger

Utendørs terrasse tilknyttet bolig

Grunnarbeid Grunnarbeid, uteareal og landskapsutforming

Grunnarbeid i henhold til ansvarserklæring fra BRØDR. FLATEBØ AS, inkl. VA-anlegg

Grunnarbeid, opparbeidelse av tomt, landskapsutforming og tilknytning til offentlig vann og avløp

VVS Sanitærinstallasjoner

Sanitærinstallasjoner i henhold til ansvarserklæring fra HERVIK RØR AS

VVS-installasjoner for bolig og garasje

Fasade Kledning

Fasade med kledning iht. tegninger

Fasade med kledning for enebolig

Brannvern Branntekniske tiltak

Branntekniske tiltak må dokumenteres ved plassering nærmere nabogrense enn 4 meter

Branntekniske tiltak for å oppfylle krav ved redusert avstand til nabogrense

Elektro Elektroinstallasjoner

Ansvarlig søker KVALA ARKITEKTER AS har ansvar for komplett søknad inkl. elektro (antatt)

Elektroinstallasjoner for bolig og garasje

Grunnarbeid Drenering

Drenering og grunnarbeid i henhold til ansvarserklæring og skredfarevurdering

Drenering rundt bolig og tomt

Vinduer Fasadevindu

Vinduer i fasade iht. tegninger, antatt 3-lags energiglass

Fasadevindu for bolig

Tømrer Tømrerarbeid for enebolig

Utførelse av tømrerarbeid i henhold til ansvarserklæring fra BRØDRENE MÆLAND PROSJEKT AS

Tømrerarbeid for oppføring av enebolig med tilhørende garasje

Gulv Innvendige gulv

Innvendige gulv i bolig, antatt eikeparkett eller tilsvarende

Innvendige gulv i bolig

Hendelser

16.04.2026 Tilbakemelding om mangler - Gnr. 53, bnr. 548 - Snegebekk tomt 5
30.03.2026 Gnr 53, bnr 548 - Snegebekk - Søknad om tiltak - einebustad - tomt 5