NewConstruction Rammetillatelse Enebolig

Ny enebolig med garasje på Solbergfaret 7, Tvedestrand

📍 Solbergfaret 7 , 4905 TVEDESTRAND

Nøkkelinfo

Sakstype
Nybygg
Bygningstype
Enebolig
Bruksareal
203 m²
Boenheter
1
Kommune
Tvedestrand
Fylke
Agder
Gnr / Bnr
32 / 130
Saksnummer
2026/259
Fase
Rammetillatelse

Om byggesaken

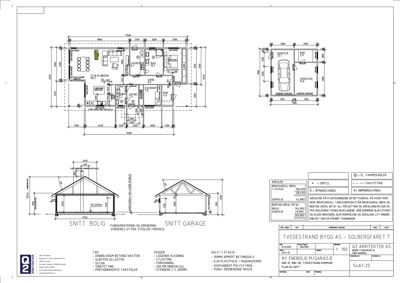
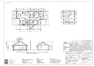
Ny enebolig i én etasje med et bruksareal på 128,4 m² og totalt bebygd areal på 203 m² oppføres på Solbergfaret 7 i Tvedestrand. Boligen inneholder stue/kjøkken, vaskerom, bad, to soverom, bod, gang, entré og teknisk rom. Bygningen har saltak med dobbelkrum betongtakstein, liggende trekledning og isolasjon med 200 mm mineralull. Det oppføres også en frittliggende garasje på 49 m² med saltak og trekledning, tilpasset boligen. Garasjen har flere vinduer og dører, og pipe er angitt på fasadetegninger. Grunnarbeid, fundamentering og drenering utføres i henhold til stedlige forhold. Bygget er prosjektert og utføres med ansvarlige foretak innen arkitektur, konstruksjon, sanitær, ventilasjon, grunnarbeid og kontroll. Det er godkjent tilkobling til offentlig vann- og avløpsnett. Totalt bebygd areal inkl. åpen biloppstillingsplass er 221 m².

Produkter og materialer

Gulv Innvendige gulv

Innvendige gulv i bolig (antatt parkett/laminat/fliser iht. standard boligbygg)

Betong Armert betonggulv

🧱 Betong

Antall: 1

100 mm armert betonggulv med radonsperre

Gulv i bolig og garasje

Fasade Liggende kledning

🧱 Tre

Antall: 2

Liggende kledning med utlekting og forhudning, 200 mm mineralull isolasjon

Yttervegger for bolig og garasje

Isolasjon Mineralull isolasjon

🧱 Mineralull

200 mm mineralull i vegger

Isolasjon i yttervegger

Ventilasjon Ventilasjonsanlegg

Prosjektering og utførelse av ventilasjonsanlegg av A Ventilasjon AS

Ventilasjonsanlegg for bolig

Elektro Elektriske installasjoner

Elektriske installasjoner i bolig og garasje (antatt iht. standard for boligbygg)

Grunnarbeid Fundamentering og drenering

Antall: 1

Fundamentering og drenering vurderes ut fra stedlige forhold, med 100 mm armert betonggulv, plastfolie/radon sperre, ekspandert polystyren og drenerende masse

Grunnarbeid for bolig og garasje

Trapper Innvendig trapp i L-form

Antall: 1

Innvendig trapp til eventuell underetasje eller loft

Mur Mur- og betongarbeider

Utførelse av mur- og betongarbeider av Tvedestrand Bygg AS

Fundamentering og betongarbeider for bolig og garasje

Vinduer Fasadevindu

🧱 Tre

Antall: 9

Vinduer i enebolig og garasje, inkludert rømningsvinduer

Tak Saltak med dobbelkrum betongtakstein

🧱 Betongtakstein

Antall: 2

Dobbelkrum betongtakstein, sløyfer og lekter, sutak, vindtetting, prefabrikkerte takstoler

Taktekking for bolig og garasje med saltak

Tømrer Tømrerarbeider

Utførelse av tømrerarbeider for bolig og garasje av Tvedestrand Bygg AS

Bygging av bærende konstruksjoner, vegger, takstoler, kledning og innvendige arbeider

Dører Ytterdører og garasjeporter

🧱 Tre

Antall: 8

Ytterdører til bolig og garasje, inkludert dører på alle fasader

Bad Våtromsinnredning

Antall: 1

Membranarbeider og våtromsinnredning utføres av AREK BYGG V ELWART

Bad og vaskerom med membran og våtromsinnredning

Grunnarbeid Oppmåling og innmåling

Antall: 1

Oppmåling og innmåling utføres av Landmåler Sør AS

Oppmålingstjenester for byggeplass

VVS Sanitæranlegg

Innvendig og utvendig sanitær installasjon utføres av Brødrene Vatne AS

Vann- og avløpsinstallasjoner i bolig og garasje

Rekkverk Trapperekkverk

Antall: 1

Rekkverk til innvendig trapp i bolig

Plantegning

Enebolig 128.4 m²

Etasje 1 128.4 m²

Rom Areal Vinduer Dører
STUE/KJØKKEN 101 58.3 m² 3 1
VASKEROM 102 8.1 m² 0 1
BAD 103 10.1 m² 0 1
SOVEROM 104 15.1 m² 1 1
GANG 105 8.0 m² 0 2
SOVEROM 106 7.8 m² 1 1
BOD 107 4.6 m² 1 1
ENTRÉ 108 7.2 m² 0 1
TEKN 109 0.0 m² 0 0

Fasader

Garasje

Sørøst
Materiale
Tre
Taktype
Saltak
Vinduer
4
Dører
1
Synlige etasjer
1
Nordøst
Materiale
Tre
Taktype
Saltak
Vinduer
0
Dører
1
Synlige etasjer
1
Nordvest
Materiale
Tre
Taktype
Saltak
Vinduer
4
Dører
1
Synlige etasjer
1
Sørvest
Materiale
Tre
Taktype
Saltak
Vinduer
3
Dører
1
Synlige etasjer
1

Hendelser

06.03.2026 Vedtak: Tillatelse til oppføring av enebolig med frittliggende garasje - Solbergfaret 7, gnr./bnr. 32/130
23.02.2026 Etterlyser godkjent VA-tilkobling
23.01.2026 Solbergfaret 7 Søknad om tillatelse til oppføring av enebolig med garasje
23.01.2026 Opplysninger til byggesøknad på Solbergfaret 7