NewConstruction UnderBehandling Enebolig

Ny enebolig med parkeringskjeller i Stålhaugen 16, Ulstein

📍 Stålhaugen 16

Nøkkelinfo

Sakstype
Nybygg
Bygningstype
Enebolig
Bruksareal
317 m²
Boenheter
1
Kommune
Vestnes
Fylke
Møre og Romsdal
Gnr / Bnr
25 / 386
Saksnummer
2024/872
Fase
Under behandling

Om byggesaken

Ny enebolig på 317 m² BRA fordelt på to etasjer bygges over en eksisterende garasjekjeller i Stålhaugen 16, Ulstein. Boligen har flere soverom, bad, vaskerom, tekniske rom, bibliotek, og store oppholdsrom med flere vinduer og dører. Bygningen har saltak og flatt tak med betongfasader. Parkeringskjeller under boligkomplekset benyttes til bilparkering. Tilkomst til eiendommen skal skje via regulert fellesavkjørsel fra Stålhaugen, men det har vært ulovlig etablert tilkomst via gang- og sykkelveg som er gjenstand for dispensasjonssøknader og pålegg om retting. Byggesaken er godt dokumentert med geoteknisk vurdering, ansvarserklæringer, og gjennomføringsplaner. Det foreligger midlertidig bruksløyve, men permanent dispensasjon for tilkomst via gang- og sykkelveg er avslått.

Produkter og materialer

Trapper Innvendig trapp

Antall: 1

Innvendig trapp mellom etasjer

VVS Sanitæranlegg og varmeanlegg

Sanitær- og varmeanlegg installert av Gjerde Rør AS

Tak Saltak og flatt tak

🧱 Betong og taktekking

Saltak på øst og vestfasade, flatt tak på nord og sørfasade

Tømrer Innvendige vegger og dører

🧱 Tre

Oppdeling og montering av innvendige vegger og dører

Fasade Betongfasade

🧱 Betong

Betongfasade på alle sider

Ventilasjon Ventilasjonssystem

Ventilasjon iht. byggtekniske krav

Varmepumpe Varmepumpe for oppvarming

Ingen eksplisitt opplysning, men vanlig for nybygg kan inkludere varmepumpe

Maling Innvendig overflatebehandling

Innvendig overflatebehandling av vegger, tak og gulv (ikke inkludert i tømrerarbeid)

Betong Garasjekjeller og fundament

🧱 Betong

Eksisterende garasjekjeller under bolig

Elektro El-installasjoner

Elektriske installasjoner iht. ansvarserklæringer

Bad Våtromsmembran og fall på gulv

Våtromsmembran og fall på gulv utført av Vestmur AS

Garasjeport Garasjeport til parkeringskjeller

Antall: 1

Garasjeport til parkeringskjeller under bolig

Vinduer Fasadevindu

🧱 Glass

Antall: 14

Fasadevinduer i betongfasade, fordelt på to etasjer

Dører Ytterdører og terrassedører

🧱 Glass og tre

Antall: 11

Ytterdører og terrassedører i betongfasade, fordelt på to etasjer

Grunnarbeid Grunnarbeid og utvendig grunnarbeid

Geoteknisk vurdering med hensyn til marin leire

Grunnarbeid tilpasset geotekniske forhold med marin leire

Rekkverk Utvendig rekkverk

Utvendig rekkverk monteres, blant annet på terrasse og trapper

Terrasse Terrasse med trapp

Antall: 1

Terrasse med utvendig trapp, nabomerknad om plassering og gjerde

Solceller Solcelleanlegg

Ingen eksplisitt opplysning, men vanlig for nybygg kan inkludere solceller

Gulv Gulvbelegg og parkett

Innvendige gulv med overflatebehandling

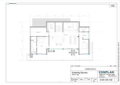
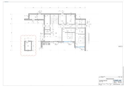
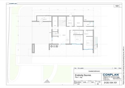
Plantegning

Enebolig 231.5 m²

Etasje 2 106.5 m²

Rom Areal Vinduer Dører
Stue 201 62.5 m² 3 2
Kjøkken 202 13.9 m² 1 1
Soverom 203 15.7 m² 1 1
Bad 204 8.1 m² 0 1
Gang 205 6.3 m² 0 2
Opphold 101 62.7 m² 0 2
Kjøkken 102 16.9 m² 0 1
Bibliotek 103 9.3 m² 0 1
Sov 104 29.6 m² 0 1
Bed 105 11.9 m² 0 1
Garderobe 106 18.3 m² 0 1
Garderobe 107 8.3 m² 0 1
Sov 108 16.5 m² 0 1
Bad 109 4.9 m² 0 1

Etasje 1 125.0 m²

Rom Areal Vinduer Dører
Entré 101 4.5 m² 0 2
Stue 102 35.0 m² 2 1
Kjøkken 103 13.0 m² 1 1
Vaskerom 104 8.0 m² 1 1
Bad 105 4.7 m² 0 1
Toalett 106 2.4 m² 0 1
Sov 1 107 13.0 m² 1 1
Sov 2 108 13.0 m² 1 1
Sov 3 109 13.0 m² 1 1
Garderobe 110 6.1 m² 0 1
Garderobe 111 6.4 m² 0 1
Teknisk 112 9.5 m² 0 1
Utebod 113 5.0 m² 0 1
Bod 114 4.9 m² 1 1

Fasader

Enebolig

Øst
Materiale
Betong
Taktype
Saltak
Vinduer
2
Dører
1
Synlige etasjer
2
Vest
Materiale
Betong
Taktype
Saltak
Vinduer
4
Dører
1
Synlige etasjer
2
Sør
Materiale
Betong
Taktype
Flatt tak
Høyde
2.9 m
Mønehøyde
10.7 m
Vinduer
6
Dører
1
Balkonger
1
Synlige etasjer
2
Nord
Materiale
Betong
Taktype
Flatt tak
Høyde
2.9 m
Mønehøyde
10.7 m
Vinduer
2
Dører
1
Synlige etasjer
2

Hendelser

21.04.2026 Melding om vedtak - Søknad om dispensasjon - bruk av gang- og sykkelveg som køyretilkomst for einebustad
10.04.2026 Søknad om dispensasjon - bruk av gang- og sykkelveg som køyretilkomst for einebustad - Stålhaugen 16 - Gnr 25 bnr 386
23.03.2026 Uttale til søknad om dispensasjon - bruk av gang- og sykkelveg som køyretilkomst - Stålhaugen 16 - gnr 25 bnr 386
17.03.2026 Oversending av søknad til uttale - Bruk av gang- og sykkelveg som køyretilkomst - Stålhaugen 16 - gnr 25 bnr 386
16.03.2026 Ber om å få oversendt sak
12.03.2026 Dispensasjon for køyring til gnr. 25 bnr. 386 – Stålhaugen 16 - Ulstein kommune
10.03.2026 Høyringssvar - Møre og Romsdal fylkeskommune
04.03.2026 Uttale - dispensasjon - Ulstein 25/386 - Stålhaugen 16 - bruk av gang- og sykkelveg som køyretilkomst
11.02.2026 Oversending av søknad til uttale - Bruk av gang- og sykkelveg som køyretilkomst - Stålhaugen 16 - gnr 25 bnr 386
09.02.2026 Avkøyrsle er stengt, fotodok.
09.02.2026 Søknad om dispensasjon frå reguleringsplanen
09.02.2026 Køyring og parkering på gang- og sykkelvegen
09.02.2026 Avkøyrsle er stengt, fotodok.
04.02.2026 Søknad om dispensasjon frå Reguleringsplan "Indre Saunes"
29.01.2026 Vedtak i ulovligheitssak - Einebustad - Stålhaugen 16 - gnr 25 bnr 386
28.01.2026 Brot på vilkår - Stålhaugen 16
26.01.2026 Brot på vilkår - Stålhaugen 16
15.12.2025 Mellombels bruksløyve - Einebustad - Stålhaugen 16 - Gnr 25 bnr 386
12.12.2025 Mellombels dispensasjon - Einebustad - Stålhaugen 16 - Gnr 25 bnr 386
08.12.2025 Supplering av søknad
27.11.2025 Søknad om mellombels bruksløyve
30.09.2025 Sjekkliste - søknad om igangsettingsløyve
30.09.2025 Igangsettingsløyve 2 - Einebustad - Stålhaugen 16 - gnr 25 bnr 386
16.09.2025 Søknad om igangsettingsløyve
14.06.2024 Fakturagrunnlag tilknytingsavgift - Einebustad - Stålhaugen 16 - gnr 25 bnr 386
12.06.2024 Igongsettingsløyve 1 - Einebustad - Stålhaugen 16 - gnr 25 bnr 386
10.06.2024 Rammeløyve - Einebustad - Stålhaugen 16 - gnr 25 bnr 386
10.06.2024 Sjekkliste - søknad om tiltak
29.05.2024 Supplering av søknad
29.05.2024 Supplering av søknad
21.05.2024 Supplering av søknad
21.05.2024 Einebustad - Gbnr 25/386
14.05.2024 Supplering av søknad 25/386
29.04.2024 Supplering av søknad
25.04.2024 Tilbakemelding om manglar i søknad
04.04.2024 Søknad om igangsettingsløyve
03.04.2024 Søknad om rammeløyve