NewConstruction Igangsettingstillatelse Enebolig

Nybygg tre eneboliger med riving i Stavkirkevegen 13, Bergen

📍 Stavkirkevegen 13E , 5231 PARADIS

Nøkkelinfo

Sakstype
Nybygg
Bygningstype
Enebolig
Bruksareal
207 m²
Boenheter
3
Kommune
Bergen
Fylke
Vestland
Gnr / Bnr
13 / 1121
Saksnummer
BYGG-2022/28401
Fase
Igangsettingstillatelse

Om byggesaken

Prosjektet omfatter riving av eksisterende bygninger og oppføring av tre nye eneboliger i Stavkirkevegen 13, Bergen. Hver bolig har to etasjer med varierende areal, samlet ca. 207 m² for en av boligene. Byggene har saltak og trekledning, med flere vinduer og dører fordelt på fasadene. Det er planlagt grunnarbeider, mur- og betongarbeider, tømrerarbeid, ventilasjon, sanitærinstallasjoner og klimaanlegg. Utomhusanlegg og landskapsutforming inngår også. Prosjektet har gjennomgått flere faser med rammetillatelse, igangsettingstillatelse, midlertidig brukstillatelse og endringer.

Produkter og materialer

Tømrer Innvendig og utvendig tømrerarbeid og montering av trekonstruksjoner

🧱 Tre

Utførelse av innvendig og utvendig tømrerarbeider for tre eneboliger

Tømrerarbeid og montering av trekonstruksjoner

Dører Ytterdører og innerdører

🧱 Tre

Antall: 12

Ytterdører og innerdører i tre, fordelt på boligene

Dører for inngang og innvendig bruk

Betong Fundament og støttemurer

🧱 Betong

Fundamentering og forstøtningsmurer iht. terrengsnitt

Betongarbeider for fundament og terrengtilpasning

Fasade Tre kledning og saltak

🧱 Tre, aluminium båndtekket tak i sort farge

Tre kledning på fasader, saltak med matt båndtekketaluminium i sort farge

Fasade med tre kledning og saltak med aluminium taktekking

Grunnarbeid Grunnarbeider og utvendige rør

Grunnarbeider og utvendige rør for tre nye eneboliger

Grunnarbeid for fundamentering og utvendige rørinstallasjoner

Mur Innvendig og utvendig mur- og betongarbeid

Mur- og betongarbeider for tre eneboliger

Alt innvendig og utvendig mur- og betongarbeid

Vinduer Fasadevindu

🧱 Tre/aluminium

Antall: 14

Vinduer i fasader, justert størrelse og plassering, 14 vinduer totalt på ett bygg

Fasadevinduer for tre eneboliger

Oppmåling Oppmålingsteknisk prosjektering og innmåling/utstikking

Oppmålingsarbeider og dokumentasjon knyttet til tiltaket

Oppmåling og utstikking av tiltak

Sanitærinstallasjoner Alle VVS installasjoner

Sanitærinstallasjoner for tre eneboliger

VVS installasjoner inkludert sanitær

Uteareal Utearealer og landskapsutforming

Opparbeidelse av utearealer, hage og parkeringsplasser

Veg-, utearealer og landskapsutforming

Ventilasjon Ventilasjon og klimainstallasjoner

Prosjektering og installasjon av ventilasjon og klimaanlegg

Ventilasjon og klimainstallasjoner for boligene

Pipe Pipe i tre bygg

🧱 Mur/stein

Antall: 3

Piper i tre eneboliger med saltak

Piper for ildsteder i boligene

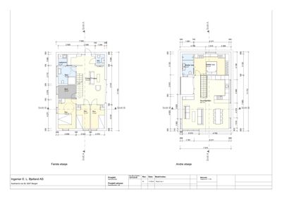
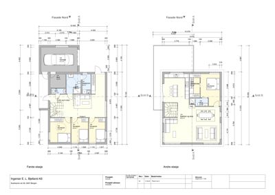
Plantegning

Enebolig 207.2 m²

Etasje 1 120.4 m²

Rom Areal Vinduer Dører
Bod 104 6.1 m² 0 1
Bad 105 4.7 m² 0 1
Bad 106 7.4 m² 0 1
Oppholdsrom 107 22.0 m² 1 1
Sov 2 108 9.5 m² 1 1
Sov 3 109 9.3 m² 1 1
Sov 4 110 11.9 m² 1 1
Gang 114 9.5 m² 0 0
Kjøkken og stue 115 60.6 m² 2 1
Master sov 116 16.2 m² 1 1
Master bad 117 3.2 m² 0 1
Vaskerom 103 3.9 m² 0 1
Entre og tv-stue 101 34.3 m² 1 2
WC 102 1.7 m² 0 1

Etasje 2 86.8 m²

Rom Areal Vinduer Dører
Kjøkken og stue 115 60.6 m² 2 1
Master sov 116 16.2 m² 1 1
Master bad 117 3.2 m² 0 1
Kjøkken og stue 104 65.5 m² 1 1
Soverom 105 12.8 m² 1 1
Bad 106 3.2 m² 0 1
Stue/Kjøkken 201 49.1 m² 1 1
Master bad 202 5.2 m² 0 1
Master sov 203 6.3 m² 1 1

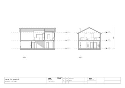
Fasader

Enebolig

Nord
Materiale
Tre
Taktype
Saltak
Høyde
7.8 m
Vinduer
4
Dører
1
Synlige etasjer
2
Sør
Materiale
Tre
Taktype
Saltak
Høyde
4.9 m
Vinduer
4
Dører
0
Synlige etasjer
2
Øst
Materiale
Tre
Taktype
Saltak
Vinduer
5
Dører
1
Synlige etasjer
2
Vest
Materiale
Tre
Taktype
Saltak
Vinduer
4
Dører
0
Synlige etasjer
1

Hendelser

31.03.2026 Midlertidig brukstillatelse for deler av tiltaket (2), 13/1121 Ingen adresse
29.03.2026 4601-13/1121/0/0 Søknad om midlertidigbrukstillatelse 13/1121
10.11.2025 Fakturagrunnlag
10.11.2025 ubw ordre 20681479/MB
29.10.2025 Midlertidig brukstillatelse for deler av tiltaket, 13/1121 Ingen adresse
21.10.2025 4601-13/1121/0/0 Supplering av søknad 13/1121
17.10.2025 4601/13/1121/0/0 Søknad om midlertidig brukstillatelse 13/1121
17.10.2025 4601/13/1121/0/0 Gjennomføringsplan 13/1121
14.10.2024 Fakturagrunnlag
14.10.2024 Ubw ordre 20652542 Endring
11.10.2024 Igangsettingstillatelse for deler av tiltaket (2), 13/1121/0/0 Ingen adresse, nybygg bolig, riving av hele bygg
09.10.2024 Tillatelse til endring, 13/1121/0/0 Ingen adresse, nybygg bolig, riving av hele bygg
07.10.2024 Naboerklæring - 13/1121// Ingen adresse, nybygg bolig, riving av hele bygg
27.09.2024 Søknad om endring av gitt tillatelse - 13/1121// Ingen adresse, nybygg bolig, riving av hele bygg
26.09.2024 4601/13/1121/0/0 Søknad om igangsettingstillatelse 13/1121
24.09.2024 Justert dokumentasjon - 13/1121// Ingen adresse, nybygg bolig, riving av hele bygg
20.09.2024 Avslag på søknad, 13/1121/0/0 Ingen adresse, nybygg bolig, riving av hele bygg
12.09.2024 Søknad om igangsettingstillatelse- 13/1121// Ingen adresse, nybygg bolig, riving av hele bygg
12.09.2024 4601/13/1121/0/0 Gjennomføringsplan 13/1121
12.09.2024 4601/13/1121/0/0 Gjennomføringsplan 13/1121
12.08.2024 Igangsettingstillatelse for deler av tiltaket (1), 13/1121/0/0 Ingen adresse, nybygg bolig, riving av hele bygg
03.08.2024 4601/13/1121/0/0 Gjennomføringsplan 13/1121
02.08.2024 Mangelfull gjennomføringsplan, 13/1121/0/0 Ingen adresse, nybygg bolig, riving av hele bygg
01.08.2024 4601/13/1121/0/0 Gjennomføringsplan 13/1121
31.07.2024 4601/13/1121/0/0 Søknad om igangsettingstillatelse 13/1121
31.07.2024 Behov for tilleggsopplysninger, 13/1121/0/0 Ingen adresse, nybygg bolig, riving av hele bygg
05.03.2024 Fakturagrunnlag
05.03.2024 ubw ordre 20637125
01.03.2024 Rammetillatelse, 13/1121/0/0 Ingen adresse, nybygg bolig, riving av hele bygg
28.02.2024 4601/13/1121/0/0 Gjennomføringsplan 13/1121
28.02.2024 Oppdatert gjennomføringsplan, 13/1121// Ingen adresse, nybygg bolig, riving av hele bygg
15.02.2024 Fana. Gnr 13 bnr 811, Stavkirkevegen. Søknad om utvidet bruk av avkjørsel. Uttale fra Bymiljøetaten.
16.01.2024 Avkjørsel - 13/1121// Ingen adresse, nybygg bolig, riving av hele bygg
10.01.2024 Bymiljøetatens avklaring av avkjørsel til 13/1121 og 13/811
19.12.2023 Tilleggsopplysninger, 13/1121// Ingen adresse, nybygg bolig, riving av hele bygg
19.12.2023 Behov for tilleggsopplysninger
18.12.2023 Tilleggsdokumenter - 13/1121// Ingen adresse, nybygg bolig, riving av hele bygg
02.11.2023 Fana. Gnr. 13 bnr. 811, Brennhaugen og Stavkirkevegen. Søknad om dispensasjon fra byggegrense langs kommunal veg. Uttale fra Bymiljøetaten.
30.10.2023 Intern høring
23.10.2023 Supplering av søknad 13/1121
23.10.2023 Supplering av søknad 13/1121
17.08.2023 SV: Forhåndsvarsel Stavkirkevegen 13, 5231 PARADIS, BYGG-2022/28401
13.08.2023 Fana. Gnr 13 bnr 1121, Stavkirkeveien 13. Endret plassering av hus 1
07.08.2023 Forhåndsvarsel Stavkirkevegen 13, 5231 PARADIS, BYGG-2022/28401
27.07.2023 Byantikvarens uttalelse, gnr/bnr 13/1121, nybygg
04.07.2023 Fana. Gnr 13 Bnr 1121, Brennhaugen og Stavkirkevegen. Søknad om dispensasjon fra byggegrense langs kommunal veg. Uttale fra Bymiljøetaten.
01.07.2023 Supplering av søknad 13/1121
29.06.2023 Intern høring
29.06.2023 Intern høring
29.06.2023 SV: Etterspør opplysninger, Stavkirkeveien 13, BYGG-2022/28401
29.06.2023 Etterspør opplysninger, Stavkirkeveien 13, BYGG-2022/28401
27.06.2023 Supplering av søknad 13/1121
23.05.2023 Uttale fra Byantikvaren - 13/1121// 4601/13/1121/0/0, nybygg bolig, riving av hele bygg
26.03.2023 Tilleggsopplysninger - 13/1121// 4601/13/1121/0/0, nybygg bolig, riving av hele bygg
14.03.2023 SV: TILLEGGSOPPLYSNINGER KNYTTET TIL: BYGG-2022/28401
14.03.2023 Tilleggsopplysninger- 13/1121// 4601/13/1121/0/0, nybygg bolig, riving av hele bygg
03.03.2023 Byantikvarens uttalelse, gnr/bnr 13/1121, 13/811, Stavkirkeveien 13, riving bolig, nybygg
10.02.2023 4601/13/1121/0/0, foreløpig tilbakemelding på søknad om nybygg bolig, riving av hele bygg
09.02.2023 Intern høring
08.12.2022 4601/13/1121/0/0 Gjennomføringsplan 13/1121
28.11.2022 Tilsvar til svar på Nabovarsel knyttet til tiltak i Stavkirkeveien 13 - 13/1121// 4601/13/1121/0/0, nybygg bolig, riving av hele bygg
18.11.2022 Bekreftelse på mottatt søknad
17.11.2022 4601/13/1121/0/0 Søknad om rammetillatelse 13/1121