NewConstruction Soeknad Enebolig

Ny enebolig på Stokkabekkvegen, Bnr 14

📍 Stokkabekkvegen 696 , 5420 RUBBESTADNESET

Nøkkelinfo

Sakstype
Nybygg
Bygningstype
Enebolig
Bruksareal
92 m²
Boenheter
1
Kommune
Bømlo
Fylke
Vestland
Gnr / Bnr
109 / 14
Saksnummer
2026/1281
Fase
Søknad

Om byggesaken

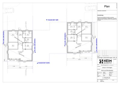
Ny enebolig oppføres på en tomt på ca. 610 m² i Stokkabekkvegen, Bnr 14. Boligen har ett plan med saltak og trekledning, gesimshøyde ca. 4 meter og mønehøyde ca. 6 meter. Bygget inneholder flere soverom, bad, bod, gang og kombinert stue/kjøkken med til sammen ca. 91,5 m² BRA. Tomten er del av en større eiendom som er delt i to nye boligtomter, begge på ca. 610 m². Det er etablert ny avkjørsel til kommunal vei, tilknytning til offentlig vann og privat avløpsanlegg med utslippstillatelse. Terrenget rundt boligen skal ha fall for drenering, og det er krav til opparbeidelse i tråd med kommuneplanens bestemmelser.

Produkter og materialer

Fasade Trekledning

🧱 Tre

Trekledning på fasader nord, sør, øst og vest

Yttervegger kledd med trepanel

Tømrer Innvendige vegger og himling

Innvendige konstruksjoner for rom som soverom, bad, bod, gang og stue/kjøkken

Grunnarbeid Tomtearbeid og drenering

Terreng skal ha fall minimum 1:50 for drenering, eventuelt drensgrøfter

Opparbeidelse av tomt med drenering og fall for overflatevann

Tak Saltak

Saltak med gesimshøyde ca. 4 m og mønehøyde ca. 6 m

Saltak på bolig med tilhørende taktekking

VVS Vann og avløp

Tilknytning til offentlig vannverk og privat minirenseanlegg med utslippstillatelse

Vann- og avløpsinstallasjoner med godkjent utslipp

Elektro Elektrisk anlegg

Elektrisk installasjon for bolig iht. TEK17

Vinduer Fasadevindu

Antall: 5

Vinduer fordelt på fasader nord (2 stk) og sør (3 stk)

Fasadevindu i tre eller tilsvarende materiale

Gulv Innvendige gulv

Gulv i boligrom, sannsynlig parkett eller fliser på bad

Maling Utvendig og innvendig maling

Maling av trepanel utvendig og innvendige overflater

Dører Ytterdør

Antall: 2

Dører på fasader nord og sør

Ytterdører til bolig

Fasader

Bolig 1

Nord
Materiale
Tre
Taktype
Saltak
Høyde
4.0 m
Mønehøyde
6.0 m
Vinduer
2
Dører
1
Synlige etasjer
1
Sør
Materiale
Tre
Taktype
Saltak
Høyde
4.0 m
Mønehøyde
6.0 m
Vinduer
3
Dører
1
Synlige etasjer
1

Hendelser

13.04.2026 Gnr 109, bnr 14 -Krav om førehandsbetaling av gebyr
08.04.2026 Krav om forhåndsbetaling gebyr to hus på gnr 109, bnr 14
08.04.2026 Utgåande brev - Rammesknad - Einebustad - 109/14 - Stokkabekkvegen - hus 2
18.03.2026 Rammesøknad - Einebustad - 109/14 - {Byggeaddresse} - hus 2