NewConstruction Ferdigattest Enebolig

Ny enebolig med garasje i Stornesveien 314, Narvik

📍 Stornesveien 44 , 8522 BEISFJORD

Nøkkelinfo

Sakstype
Nybygg
Bygningstype
Enebolig
Bruksareal
159 m²
Boenheter
1
Kommune
Narvik
Fylke
Nordland - Nordlánnda
Gnr / Bnr
44 / 314
Saksnummer
24/3742
Fase
Ferdigattest

Om byggesaken

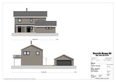
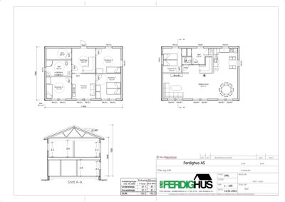
Ny enebolig i to etasjer med totalt bruksareal på ca. 159 m² og bebygd areal på ca. 338 m² oppføres på eiendommen Stornesveien 314 i Narvik. Boligen har flere soverom, bad, vaskerom, TV-stue, gang og hall med trapp, samt en stor terrasse på 38,7 m². Bygget har saltak med tegl takmateriale og trekledning. Det oppføres også en frittliggende garasje på eiendommen. Bygget er plassert i et LNFR-område med dispensasjon fra kommuneplanens arealdel for boligformål. Tiltaket har gjennomgått geoteknisk vurdering, nabovarsling, og er tilknyttet kommunalt vann- og avløpsnett. Alle nødvendige ansvarsretter er etablert, og ferdigattest er gitt.

Produkter og materialer

Vinduer Fasadevindu

🧱 Tre

Antall: 15

Fasadevindu i tre, fordelt på fasade nord (4 stk), øst (3 stk), og ukjent fasade (8 stk)

Fasadevindu i tre for bolig

Maling Innvendig og utvendig maling

Maling av innvendige og utvendige flater

Maling av bolig og garasje

Fasade Trekledning

🧱 Tre

Trekledning på boligfasader

Trekledning på boligfasader

Vann og avløp Tilkobling til kommunalt vann- og avløpsnett

Tilkobling til kommunalt spillvannsnett og vannledning

VA-tilkobling for bolig

Garasjeport Garasjeport i tre

🧱 Tre

Antall: 1

Garasjeport i tre på frittliggende garasje

Garasjeport til garasje

Ventilasjon Ventilasjonsanlegg

Ventilasjonsarbeid utført av Narvik Bygg AS

Ventilasjon i bolig

Grunnarbeid Tomtearrondering og grunnarbeid

Grunnarbeid inkl. landmåling og utsetting av bolig

Grunnarbeid for bolig og garasje

Pipe Pipe til bolig

Antall: 1

Pipe på bolig, tilknyttet ildsted/peis

Pipe for bolig

Trapper Innvendig trapp

Antall: 1

Innvendig trapp mellom to etasjer i bolig

Innvendig trapp i bolig

Dører Ytterdør

🧱 Tre

Antall: 5

Ytterdører i tre, fordelt på fasade nord (2 stk), fasade øst (0), og innvendige dører i bolig

Ytterdører og innvendige dører til bolig

Tak Saltak med tegl

🧱 Tegl

Antall: 1

Saltak med tegl takmateriale på bolig

Saltak med tegl takmateriale

Terrasse Terrasse på bolig

Antall: 1

Terrasse på 38,7 m² tilknyttet bolig

Utendørs terrasse

Elektro Elektriske installasjoner

Elektriske installasjoner utført av Haneseth

Elektroarbeid i bolig

Gulv Innvendige gulv

Ikke spesifisert i dokumenter, men nødvendig for bolig

Innvendige gulv i bolig

Grunnarbeid Drenering

Drenering rundt bolig iht. krav

Drenering for bolig

VVS Sanitærinstallasjoner

Sanitærarbeider inkl. vann- og avløpsinstallasjoner

VVS-installasjoner i bolig

Betong Grunnmur og plasstøpte betongkonstruksjoner

🧱 Betong

Plasstøpte betongkonstruksjoner for grunnmur

Grunnmur i betong

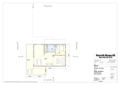
Plantegning

Enebolig 201.6 m²

Etasje 1 120.5 m²

Rom Areal Vinduer Dører
TV-Stue 101 13.7 m² 3 2
Sov 102 12.4 m² 1 1
Sov 103 12.4 m² 1 1
Sov 104 10.1 m² 1 1
Gang 105 13.7 m² 0 3
Bad 106 7.4 m² 0 1
Vask 107 6.9 m² 0 1
Soverom 3 108 13.2 m² 1 1
Hall/trapp 109 12.5 m² 0 0
Terrasse 38.7 m² 0 0
Allroom 58.8 m² 4 1
Sov 12.4 m² 0 1
Bad 6.7 m² 0 0

Etasje 0 81.1 m²

Rom Areal Vinduer Dører

Fasader

Enebolig

Nord
Materiale
Tre
Taktype
Saltak
Vinduer
4
Dører
2
Synlige etasjer
2
Øst
Materiale
Tre
Taktype
Saltak
Vinduer
3
Dører
0
Balkonger
1
Synlige etasjer
2
Ukjent
Materiale
Tre
Taktype
Saltak
Takmat.
Tegl
Vinduer
8
Dører
0
Synlige etasjer
2

Garasje

Øst
Materiale
Tre
Taktype
Saltak
Vinduer
0
Dører
1
Synlige etasjer
1

Hendelser

10.04.2026 Vedtak - ferdigattest for tiltak i ett trinn for etablering av bolig i to etasjer - gbnr. 44/314, Stornesveien 314
26.03.2026 Tilbakemelding om mangler - søknad om ferdigattest - gbnr. 44/314, Stornesveien 314
26.03.2026 Ettersendelse av dokumentasjon vedrørende ferdigattest for eiendom gbnr. 44/314
25.03.2026 Søknad om ferdigattest for eiendom gbnr. 44/314
17.06.2025 Vedtak - tillatelse til tiltak i ett trinn for etablering av enebolig på gbnr. 44/314, Stornesveien 314
16.06.2025 Vedtak - dispensasjon fra LSB-formål i KPA for etablering av ny enebolig - gbnr. 44/314, Stornesveien 314
13.06.2025 Gjennomføringsplan gbnr. 44/314, Stornesveien 314
12.06.2025 Oppdaterte dokumentet til søknad om tillatelse til tiltak for etablering av bolig på gbnr. 44/314, Stornesveien 314
12.06.2025 Tilbakemelding om fortsatte mangler - gjennomføringsplan for bygging av enebolig
11.06.2025 Endring av ansvarsrett søknad om tillatelse til tiltak for etablering av bolig på gbnr. 44/ 314 Stornesveien 314
11.06.2025 Tilbakemelding om manglende dokumentasjon - endring av ansvarsrett - enebolig på gbnr. 44/314, Stornesveien 314
26.05.2025 Angående byggesøknad gbnr. 44/314, Beisfjord
20.05.2025 Angående søknad om tillatelse til oppføring av enebolig på gbnr. 44/314 - anmodning om tilleggsdokumentasjon
13.05.2025 Kulturminnefaglig uttalelse -Dispensasjon fra LSB-formål i kommuneplanens arealdel - Oppføring av enebolig - gbnr. 44/314
29.04.2025 Oversender søknad til uttalelse - Oppføring av enebolig - Gbnr 44/314 - Narvik kommune
15.04.2025 Oversender søknad til uttalelse - dispensasjon fra LSB-formål i kommuneplanens arealdel for oppføring av enebolig - gbnr. 44/314
04.04.2025 Søknad om tillatelse til tiltak i ett trinn for etablering av bolig i to etasjer på gbnr. 44/314, Stornesveien 314
03.09.2024 Tilbakemelding om mangler - dispensasjon fra KPA for oppføring av bolig i to etasjer - gbnr. 44/314
02.09.2024 Søknad om dispensasjon for etablering av bolig i to etasjer - gbnr. 44/314, Stornesveien 314