NewConstruction Soeknad Enebolig

Ny enebolig med garasje og anneks i Strandgata 16, Sandnessjøen

📍 Strandgata 16 , 8800 SANDNESSJØEN

Nøkkelinfo

Sakstype
Nybygg
Bygningstype
Enebolig
Bruksareal
207 m²
Boenheter
1
Kommune
Alstahaug
Fylke
Nordland - Nordlánnda
Gnr / Bnr
37 / 959
Saksnummer
2026/972
Fase
Søknad

Om byggesaken

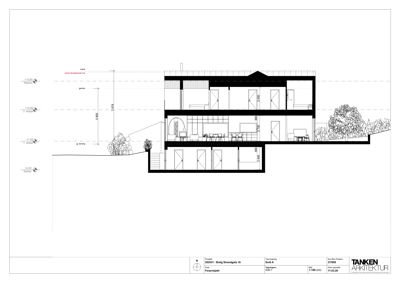
Ny enebolig over tre plan med sokkel på totalt ca. 207 m² BRA oppføres på Strandgata 16 i Sandnessjøen. Boligen inkluderer integrert dobbeltgarasje med takterrasse og et frittliggende anneks i hagen. Bygget er utformet med to atrier som gir skjermede uteoppholdsarealer med ulike solforhold, og er tilpasset tomtens terreng og omkringliggende bebyggelse. Planløsningen omfatter blant annet flere soverom, bad, kontor, stue, kjøkken, og tekniske rom. Fasaden er i tre med saltak, og det er planlagt flere balkonger og takterrasse. Prosjektet inkluderer også flytting av eksisterende VA-ledninger og ny avkjøring. Det søkes dispensasjon for mindre avvik fra regulert byggegrense og utnyttelsesgrad.

Produkter og materialer

Annet Anneks

🧱 Tre

Antall: 1

Frittliggende anneks i hagen

Ventilasjon Mekanisk ventilasjon

Ventilasjonsanlegg i bolig

Fasade Tre kledning

🧱 Tre

Fasade i tre, tilpasset omkringliggende bebyggelse

Terrasse Uteoppholdsareal

Skjermede uteoppholdsarealer i to atrier og hageareal på ca. 324 m²

Uteområder med gode solforhold og skjerming

Bad Baderomsinnredning

Antall: 3

Bad med dusj og toalett i sokkel og 2. etasje

Vinduer Fasadevindu

🧱 Tre ramme

Antall: 13

Fasadevindu i tre, totalt 13 stk fordelt på øst, nord og andre fasader

Betong Sokkel og fundament

🧱 Betong

Betongsokkel for bolig over tre plan

Gulv Innvendige gulv

Innvendige gulv i bolig, antatt parkett og fliser på bad

Dører Ytterdør og balkongdører

🧱 Tre

Antall: 9

Ytterdører og balkongdører i tre, totalt 9 stk

Balkong Balkonger og takterrasse

Antall: 3

To balkonger og en takterrasse på bolig

Elektro Elektrisk anlegg

Elektrisk installasjon i bolig og garasje

VVS Vann og avløp

Ny tilknytning til offentlig vann- og avløpsnett, omlegging av VA-ledninger

VVS-installasjoner for bolig og garasje

Grunnarbeid Terrengbearbeiding og fundamentering

Omfatter flytting av VA-ledninger og tilpasning til eksisterende terreng

Grunnarbeid for ny bolig, garasje og anneks, inkludert VA-omlegging

Tak Saltak

🧱 Tre, antatt tekket med takstein eller tilsvarende

Antall: 1

Saltak på hovedbygning med takterrasse

Garasjeport Dobbeltgarasjeport

Antall: 1

Port til integrert dobbeltgarasje

Kjøkken Kjøkkeninnredning

Antall: 1

Kjøkken på 1. etasje

Trapper Innvendig trapp

Antall: 1

Innvendig trapp mellom sokkel, 1. og 2. etasje

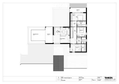
Plantegning

Enebolig 198.4 m²

Etasje 2 198.4 m²

Rom Areal Vinduer Dører
Tak/takterrasse U01 36.8 m² 0 0
Balkong U02 15.8 m² 0 0
Kontor/loftstue U03 31.1 m² 2 1
Hall U04 14.4 m² 0 3
Soverom U05 15.2 m² 1 1
Gard U06 4.4 m² 0 1
Bad U07 6.2 m² 0 1
Gjesterom U08 11.0 m² 1 1
Bad U09 7.2 m² 0 1
Soverom U10 14.7 m² 1 1
Gard U11 4.3 m² 0 1
Balkong U12 9.5 m² 0 0

Fasader

Enebolig

Øst
Materiale
Tre
Vinduer
6
Dører
1
Synlige etasjer
2
Nord
Materiale
Tre
Taktype
Saltak
Vinduer
5
Dører
2
Synlige etasjer
2

Hendelser

14.04.2026 Tilleggsopplysninger - Mangelbrev
13.04.2026 Mangelbrev - anmodning om tilleggsinformasjon - Rammesøknad - Nytt bygg - boligformål, Riving av hele bygget - Strandgata 16. gbnr:. 37/959
17.03.2026 Bekreftelse på mottatt søknad gbnr 37/959 Nytt bygg - boligformål, Riving av hele bygget
16.03.2026 Søknad om rammetillatelse - Gbnr 37/959 - Nytt bygg - boligformål,Riving av hele bygget