NewConstruction UnderBehandling Enebolig

Ny enebolig med garasje på Strømnesåsen 50, Råde

📍 Strømnesåsen 50 , 1643 RÅDE

Nøkkelinfo

Sakstype
Nybygg
Bygningstype
Enebolig
Bruksareal
128 m²
Boenheter
1
Kommune
Råde
Fylke
Østfold
Gnr / Bnr
101 / 23
Saksnummer
2026/4606
Fase
Under behandling

Om byggesaken

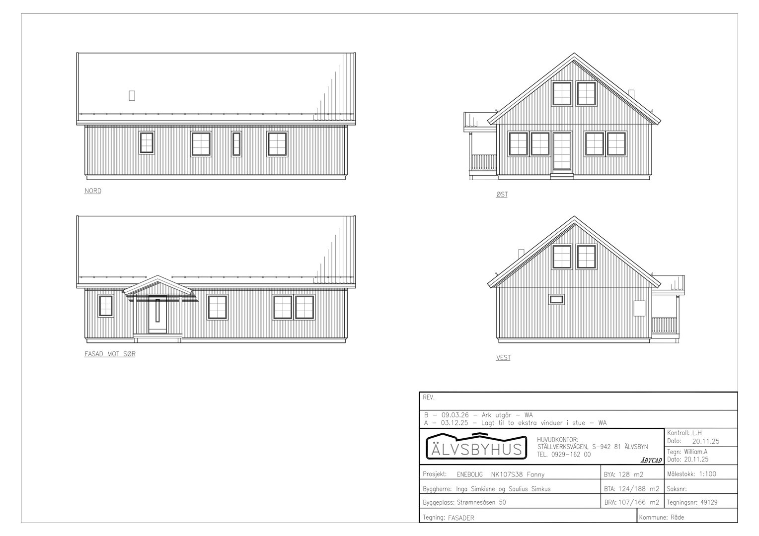
Ny frittliggende enebolig i 1 ½ etasje med kaldt loft og tilhørende garasje oppføres på Strømnesåsen 50 i Råde kommune. Boligen har et bebygd areal på 128 m² og en garasje på ca. 36 m² parkeringsareal på terreng. Bygget har saltak med svart takplate i taksteinprofil og fasader i dempet jordfarge i tre. Boligen inneholder stue, kjøkken, bad, bod og flere soverom, med god tilpasning til eksisterende terreng og uteoppholdsareal. Det er planlagt utvendig bod og trinnfri adkomst. Takvann håndteres med tette rør og taknedløp føres til terreng i henhold til byggdetaljer. Det er søkt dispensasjon for en lokal gesimshøyde på 6,47 m på grunn av en ark, som er over regulert maksimum på 6,0 m, men hovedgesims og mønehøyde er innenfor reguleringsplanens krav. Terrengforming og landskapsplan skal sikre god tilpasning til omkringliggende terreng og vegetasjon.

Produkter og materialer

Tak Saltak med takplater

🧱 Sort stål takplate med taksteinprofil

Saltak med sort stål takplate i taksteinprofil

Taktekking med sort stål takplate med taksteinprofil

Ventilasjon Mekanisk ventilasjon

Ventilasjonssystem i henhold til TEK17

Ventilasjon for bolig med varmegjenvinning

Vinduer Fasadevindu

🧱 Tre med 3-lags energiglass

Antall: 18

Fasadevindu i tre, 18 stk fordelt på alle fasader

Vinduer i tre med 3-lags energiglass for fasader i eneboligen

Grunnarbeid Graving og sprenging

Grunnarbeid inkludert graving, sprenging og etablering av trinnfri adkomst

Grunnarbeid for fundamentering og adkomst til bolig

Betong Ringmur

🧱 Betong

Ringmur som sokkel for bolig

Betong ringmur som fundament for bolig

VVS Sanitærinstallasjoner

Montering av komplett rørsystem og sanitærutstyr

Sanitærinstallasjoner for bad, kjøkken og vaskerom

Isolasjon Isolasjon i vegger og tak

Isolasjon i vegger og tak i henhold til TEK17

Isolasjon for energieffektiv bolig

Terrasse Uteoppholdsareal

Planlagt uteoppholdsareal med god kvalitet og tilpasning til terreng

Terrasse og uteareal til bolig

Grunnarbeid Drenering og overvannshåndtering

Takvann føres i tette rør til husdrenskum, med løvsil og utkast til terreng i henhold til byggdetaljer

Overvannshåndtering for bolig og garasje

Elektro Elektrisk anlegg

Elektrisk installasjon i henhold til gjeldende forskrifter

Elektrisk anlegg for bolig

Mur Støttemurer

Støttemurer for terrengtilpasning der nødvendig

Støttemurer for å sikre god terrengtilpasning og tilgjengelighet

VVS Vannbåren radiatorvarme

Prosjektering og utførelse av vannbåren radiatorvarme

Vannbåren varmeinstallasjon i bolig

Fasade Trepanel

🧱 Tre i dempet jordfarge

Fasade i tre med dempet jordfarge i henhold til reguleringsplan

Trepanel fasade med dempet jordfarge for harmonisk uttrykk

Dører Ytterdør

🧱 Tre

Antall: 4

Ytterdører i tre, inkludert inngangsdør og balkongdører

Ytterdører i tre til bolig og balkonger

Gulv Innvendige gulv

Gulv i henhold til standard for småhus

Innvendige gulv i bolig

Vinduer Takvindu

Antall: 2

To takvinduer i loftsplan

Takvinduer for loftsplan for dagslys og ventilasjon

Garasjeport Leddheiseport

🧱 Stål

Antall: 1

Leddheiseport 5000x2100 mm i garasje

Garasjeport i stål med leddheisfunksjon

Fasader

Enebolig

Nord
Materiale
Tre
Taktype
Saltak
Vinduer
4
Dører
0
Synlige etasjer
1
Sør
Materiale
Tre
Taktype
Saltak
Vinduer
4
Dører
1
Synlige etasjer
1
Øst
Materiale
Tre
Taktype
Saltak
Vinduer
6
Dører
1
Balkonger
1
Synlige etasjer
2
Vest
Materiale
Tre
Taktype
Saltak
Vinduer
4
Dører
1
Balkonger
1
Synlige etasjer
2

Hendelser

15.04.2026 Foreløpig tilbakemelding på søknaden - gnr 101 bnr 23 - Strømnesåsen 50
06.04.2026 Supplering av søknad - gnr 101 bnr 23 - Strømnesåsen 50
30.03.2026 Svar på spørsmål om status på søknad - Søknad om nybygg av enebolig - gnr 101 bnr 23 - Strømnesåsen 50
27.03.2026 Status byggesøknad
02.03.2026 Svar på spørsmål vedrørende gesimshøyde og terrengtilpasning i henhold til gjeldende reguleringsplan.
25.02.2026 Vedrørende fjerning av ark fra prosjekt
25.02.2026 Spørsmål vedrørende krav - terrengforming
11.02.2026 Foreløpig tilbakemelding på søknaden om dispensasjon
06.02.2026 Søknad om tillatelse i ett trinn - gnr 101 bnr 23 - Strømnesåsen 50