NewConstruction UnderBehandling Enebolig

Ny enebolig og garasje med bruksendring på Vetting, Vestvågøy

📍 Sundsveien 423 , 8372 GRAVDAL

Nøkkelinfo

Sakstype
Nybygg
Bygningstype
Enebolig
Bruksareal
282 m²
Boenheter
1
Kommune
Vestvågøy
Fylke
Nordland - Nordlánnda
Gnr / Bnr
5 / 6
Saksnummer
25/1149
Fase
Under behandling

Om byggesaken

Ny enebolig på ca. 204,5 m² BRA oppføres på eiendom 5/6 på Vetting, Vestvågøy kommune. Boligen har et langstrakt, lavt bygningsvolum med invertert pulttak og varmebehandlet trekledning som gråner naturlig. Innvendig inneholder boligen stue, kjøkken, tre soverom, to bad, bod, vindfang, hall og korridor. Det etableres terrasse og overdekket terrasse. Ny garasje på 77,2 m² med saltak plasseres på oversiden av veien, integrert i terrenget, og inneholder biloppstillingsplass, treningsrom og lager/verksted. Eksisterende bolig og naust på eiendommen skal bruksendres, og et naust samt en SEFRAK-registrert ruin skal rives. Tomten ligger i LNF-område med dispensasjon og omdisponering av 0,28 dekar jordbruksareal til boligformål. Skredfarevurdering er utført og viser tilfredsstillende sikkerhet. Tiltaket innebærer ingen økning i antall boenheter og er tilpasset terreng og eksisterende bebyggelse.

Produkter og materialer

Tak Invertert pulttak og saltak

🧱 Varmebehandlet treverk kledning, grønt takmateriale på deler av bolig

Antall: 2

Invertert pulttak på bolig, saltak på garasje

Tak på bolig og garasje med tilpasset arkitektur og materialvalg

Fasade Trekledning

🧱 Varmebehandlet treverk som gråner naturlig

Fasade på bolig og garasje med naturlig grånet treverk

Kledning for bolig og garasje for å harmonere med landskapet

Grunnarbeid Tomtearbeid og fundamentering

Terrengtilpasning med minimalt terrenginngrep, fundamentering tilpasset skrånende terreng

Grunnarbeid for bolig og garasje på kupert tomt

Terrasse Terrasse og overdekket terrasse

🧱 Treverk

Antall: 2

Terrasse på 21,8 m² og overdekket terrasse på 12,1 m²

Utendørs terrassearealer tilknyttet bolig

Elektro Elektrisk installasjon

Elektrisk anlegg i bolig og garasje

El-installasjon for bolig og garasje

Gulv Innvendige gulv

Gulv i bolig, sannsynligvis parkett eller tilsvarende

Innvendige gulv i bolig

Dører Ytterdører og terrassedører

🧱 Tre

Antall: 9

Ytterdør, terrassedør til terrasse og overdekket terrasse, dører i garasje og anneks

Dører til bolig og garasje, inkludert terrassedører

Annet Bruksendring og riving

Bruksendring av eksisterende bolig til anneks, bruksendring av naust til anneks, riving av naust og SEFRAK-registrert ruin

Endringer i eksisterende bygningsmasse

Vinduer Fasadevindu

🧱 Tre med 3-lags energiglass

Antall: 14

Store glassflater mot vest, mindre og mer lukkede fasader mot øst og vei

Vinduer i enebolig, tilpasset lys og utsikt, med god isolasjonsevne

VVS Sanitær og varme

VVS-installasjon for bolig med to bad, garasje med tekniske rom

VVS-installasjon for bolig og garasje

Tømrer Bygging av bolig og garasje

🧱 Treverk

Oppføring av enebolig og garasje med tilhørende konstruksjoner

Tømrerarbeid for bolig og garasje

Garasjeport Garasjeport

Antall: 1

Garasjeport til biloppstillingsplass

Port til garasje

Betong Fundament og plate på mark

Fundamentering for bolig og garasje

Betongarbeid for fundament og gulv

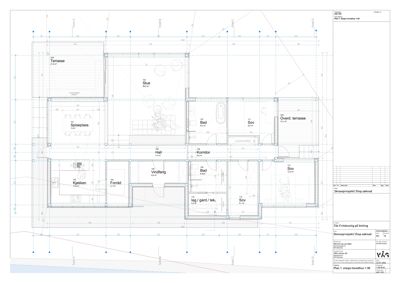
Plantegning

Enebolig 204.5 m²

Etasje 1 204.5 m²

Rom Areal Vinduer Dører
Spise plass 101 13.0 m² 0 1
Kjøkken 102 17.8 m² 1 1
Stue 103 36.6 m² 3 1
Forråd 104 5.1 m² 0 1
Vindfang 105 6.8 m² 0 1
Hall 106 7.4 m² 0 1
Bad 107 9.2 m² 0 1
Korridor 108 6.8 m² 0 2
Bad 109 6.4 m² 0 1
Lag./gard./tek. 110 4.5 m² 0 1
Sov 111 9.2 m² 1 1
Sov 112 9.1 m² 1 1
Sov 113 12.4 m² 1 1
Terrasse U02 21.8 m² 0 0
Overd. terrasse U02 12.1 m² 0 0
Overd. terrasse 114 12.0 m² 0 1
Terrasse 115 20.0 m² 0 1

Garasje 77.2 m²

Etasje 1 77.2 m²

Rom Areal Vinduer Dører
Garasje G 01 37.5 m² 0 0
Treningsrom G 02 12.7 m² 0 1
Lager/ Verksted G 03 12.6 m² 0 1

Fasader

Enebolig

Sør
Materiale
Tre
Taktype
Flatt tak
Høyde
4.8 m
Mønehøyde
8.6 m
Vinduer
4
Dører
1
Synlige etasjer
1
Øst
Materiale
Tre
Taktype
Flatt tak
Høyde
5.4 m
Mønehøyde
8.5 m
Vinduer
4
Dører
1
Synlige etasjer
1
Nord
Materiale
Tre
Taktype
Flatt tak
Takmat.
Grønt tak
Høyde
4.8 m
Mønehøyde
8.9 m
Vinduer
5
Dører
2
Synlige etasjer
1
Vest
Materiale
Tre
Taktype
Flatt tak
Takmat.
Grønt tak
Høyde
4.8 m
Mønehøyde
8.9 m
Vinduer
2
Dører
1
Synlige etasjer
1

Hendelser

14.04.2026 Høring - Dispensasjon fra arealformål LNF-områder for oppføring av bolig og tilknyttet tiltak - gbnr. 5/6 - Vestvågøy kommune
24.03.2026 Høring - Dispensasjon fra arealformål LNF-områder for oppføring av bolig og tilknyttet tiltak - gnr 5 bnr 6
23.03.2026 Vedtak etter jordloven på søknad om omdisponering av 0,28 dekar jordbruksareal til boligformål på gnr 5 bnr 6
19.03.2026 SV: Revidert dispensasjonssøknad gnr 5 bnr 6
19.03.2026 Redvidert dispensasjonssøknad (filer)
18.03.2026 Revidert dispensasjonssøknad gnr 5 bnr 6
03.03.2026 Revidert dispensasjonssøknad gnr 5 bnr 6
30.04.2025 Foreløpig tilbakemelding på mottatt søknad om dispensasjon - gnr 5 bnr 6