NewConstruction UnderBehandling Enebolig

Ny enebolig med carport og bod i Svarthølsvegen 12B, Jørpeland

📍 Svarthølsvegen 12B , 4100 JØRPELAND

Nøkkelinfo

Sakstype
Nybygg
Bygningstype
Enebolig
Bruksareal
266 m²
Boenheter
1
Kommune
Strand
Fylke
Rogaland
Gnr / Bnr
53 / 476
Saksnummer
2026/438
Fase
Under behandling

Om byggesaken

Ny enebolig på 266,5 m² BRA fordelt på underetasje og hovedetasje tilpasset tomtens naturlige terrengfall. Boligen har moderne, åpent formspråk med forskjøvet volumoppbygging, lav gesimshøyde og flatt tak på deler, samt saltak med tegl på andre fasader. Bygget har 3 soverom, 2 bad, vaskerom, bod, kjellerstue, stue/kjøkken på hovedplan og terrasse. Materialbruk er robust og varig med tre- og betongfasader, og takmaterialer i tegl og lys sort matt metall. Det er tilhørende carport på 34,3 m² og utvendig bod på 12,6 m². Tomten er på 458,2 m² med uteoppholdsareal på ca. 110 m². Bygget er terrengtilpasset med delvis innarbeidet underetasje og gode lysforhold. Det foreligger dispensasjon for overskridelse av utnyttelsesgrad og avstandserklæringer fra naboer for plassering nærmere nabogrense enn 4 meter. Geoteknisk rapport konkluderer med stabile grunnforhold uten fare for områdeskred.

Produkter og materialer

Fasade Tre- og betongfasade

🧱 Tre og betong

Tre på nordvest og sørøst fasader, betong på sørvest og nordøst fasader

Fasade med kombinasjon av tre og betong for robust og estetisk uttrykk

Dører Ytterdører og skyvedør

🧱 Tre og glass

Antall: 8

Ytterdører og skyvedør i fasader nordvest (3 stk), sørøst (2 stk), sørvest (1 stk), nordøst (1 stk), terrasse (1 stk)

Ytterdører og skyvedør i tre og glass for adkomst og utgang til terrasse

Tømrer Bærende konstruksjoner og kledning

🧱 Tre

Bærende trekonstruksjoner og trepanel på fasader

Tømrerarbeid for bærende konstruksjoner og utvendig kledning

Rekkverk Terrasserekkverk og trapperekkverk

Rekkverk høyde 1 m ved terrasse og utvendig trapp

Rekkverk for sikkerhet ved terrasse og trapp

Terrasse Utendørs terrasse

Antall: 1

Terrasse på 8,9 m² med rekkverk høyde 1 m

Utendørs terrasse med rekkverk

Elektro Belysning og installasjoner

Krav om belysning ved inngangsparti og øvrige elektriske installasjoner iht. TEK

Elektroinstallasjoner for belysning og strøm

VVS Sanitær og varme

Bad, WC, vaskerom med sanitærinstallasjoner, peis med stålrør

VVS-installasjoner for sanitær og varme, inkludert peis

Grunnarbeid Terrengtilpasning og fundamentering

Terrengtilpasning med delvis innarbeidet underetasje, fundamentering på stabile grusige masser og bart berg i henhold til geoteknisk rapport

Grunnarbeid for stabil byggegrunn i tiltaksklasse 1, tiltakskategori K4

Betong Kjeller og fundament

🧱 Betong

Betongkonstruksjoner i underetasje og fundamenter

Betongkonstruksjoner for kjeller og fundamentering

Vinduer Fasadevindu

🧱 Tre med 3-lags energiglass

Antall: 9

Vinduer i fasader nordvest (4 stk), sørøst (3 stk), sørvest (2 stk), nordøst (2 stk)

Fasadevinduer i tre med energiglass for god isolasjon og lysinnslipp

Gulv Innvendige gulvflater

Gulv i stue, kjøkken, soverom, bad og kjellerstue iht. tegninger

Innvendige gulvflater i ulike rom

Annet Utvendig bod

Antall: 1

Utvendig bod på 12,6 m² med material- og fargevalg tilpasset bolig

Utvendig bod for lagring

Garasjeport Carport

Antall: 1

Carport på 34,3 m² tilknyttet bolig

Carport for biloppstilling

Tak Saltak og flatt tak

🧱 Tegl og metalltekking

Saltak med tegl på sørvest og nordøst fasader, flatt tak med lys sort matt metalltekking på nordvest og sørøst fasader

Tak med kombinasjon av saltak tegl og flatt metalltak for moderne uttrykk og god holdbarhet

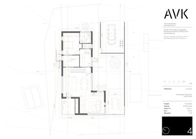
Plantegning

Enebolig 266.5 m²

Etasje 0 100.0 m²

Rom Areal Vinduer Dører
Kjellerstue 001 16.8 m² 0 1
Hall 002 1.2 m² 0 1
Tek/Bod 003 7.9 m² 0 0
Bad 004 5.0 m² 0 0
Hall 005 3.8 m² 0 1
SDV 006 11.0 m² 1 1
SDV 007 7.4 m² 1 1
LTV/BOD 008 8.8 m² 1 1

Etasje 1 166.5 m²

Rom Areal Vinduer Dører
Stue/Kjøkken 101 58.0 m² 1 1
Bad 102 6.3 m² 0 1
WC 103 1.9 m² 0 1
Vaskerom/Bod 104 8.5 m² 0 1
Entre 105 9.1 m² 0 2
Bod 106 1.8 m² 0 1
Terrasse 107 8.9 m² 0 1

Fasader

Enebolig

Nordvest
Materiale
Tre
Taktype
Flatt tak
Takmat.
Lys sort matt
Høyde
4.5 m
Vinduer
4
Dører
3
Synlige etasjer
2
Sørøst
Materiale
Tre
Taktype
Flatt tak
Vinduer
3
Dører
2
Synlige etasjer
1
Sør-Vest
Materiale
Betong
Taktype
Saltak
Takmat.
Tegl
Høyde
4.5 m
Vinduer
2
Dører
1
Synlige etasjer
2
Nord-Øst
Materiale
Betong
Taktype
Saltak
Takmat.
Tegl
Høyde
4.5 m
Vinduer
2
Dører
1
Synlige etasjer
2

Hendelser

21.04.2026 53/476 Tilbakemelding om mangler - enebolig - Svarthølsvegen 12B - Jens Kristian Rein
09.04.2026 53/476 Foreløpig svar på søknad - enebolig - Svarthølvegen 12B - Jens Kristian Rein
05.03.2026 53/476 Søknad om rammetillatelse - enebolig - Svarthølsvegen 12B - Jens Kristian Rein
05.03.2026 53/476 Søknad om dispensasjon - enebolig - Svarthølsvegen 12B - Jens Kristian Rein
24.02.2026 53/457 Forespørsel om plassering nærmere nabogrense enn 4 meter - Svarthølsvegen 12B - se bort fra forrige e-post
24.02.2026 53/457 Forespørsel om plassering nærmere nabogrense enn 4 meter - enebolig - Svarthølsvegen 12B
17.02.2026 53/457 Klage på manglende nabovarsel og byggehøyde av bolig - ber om tilbakemelding - korrigert
17.02.2026 53/457 Klage på manglende nabovarsel og byggehøyde av bolig - ber om tilbakemelding