NewConstruction UnderBehandling Enebolig

Ny enebolig med hybel og garasje på Tangenheia 31, Tvedestrand

📍 Tangenheia 31 , 4904 TVEDESTRAND

Nøkkelinfo

Sakstype
Nybygg
Bygningstype
Enebolig
Bruksareal
184 m²
Boenheter
2
Kommune
Tvedestrand
Fylke
Agder
Gnr / Bnr
59 / 474
Saksnummer
2025/2304
Fase
Under behandling

Om byggesaken

Ny enebolig med sekundærbolig i underetasje oppføres på Tangenheia 31 i Tvedestrand kommune. Boligen har to etasjer med totalt 184,2 m² BRA, inkludert 92,1 m² i underetasje og 92,1 m² i 1. etasje. Bygget har flatt tak, stående mørk grå trepanelkledning og mørkegrå vinduer. Underetasjen inneholder kjøkken/stue, to soverom, bad, teknisk rom og bod, mens 1. etasje har kjøkken/stue, to soverom, bad, WC, gang og bod. Det etableres en garasje i tilknytning til boligen med dispensasjon for plassering 0 meter fra nabogrense, samt støttemurer i naturstein mot naboeiendom og vei. Boligen oppføres i henhold til TEK17 med elektrisk oppvarming, grunnvarme og peisovn med pipe. Tomten er på ca. 530 m² med utnyttelsesgrad på 29,2%.

Produkter og materialer

Terrasse Platting utenfor underetasje

Antall: 1

Platting på 27 m² med høyde 0,4 m over terreng, delvis utenfor byggegrense

Utendørs platting tilknyttet underetasjen

Tak Flatt tak

🧱 Taktekking iht. TEK17

Antall: 1

Flatt tak med gesimshøyde ca. 6,5 m

Flatt tak med taktekking i henhold til TEK17

Fasade Stående kledning i tre

🧱 Mørk grå trepanel

Stående mørk grå kledning i tre på alle fasader

Fasade med stående trepanel i mørk grå farge

Grunnarbeid Planering og oppfylling

Planering av tomt, oppfylling bak mur

Grunnarbeid for bolig og utearealer

Vinduer Fasadevindu

🧱 Mørkegrå rammer

Antall: 18

Mørkegrå vinduer i tre, fordelt på 18 stk i ulike rom

Fasadevindu i mørkegrå rammer til eneboligens alle rom

Pipe Peisovn med pipe

Antall: 1

Pipe for peisovn i bolig

Pipe til peisovn i eneboligen

Trapper Innvendig trapp

Antall: 1

Innvendig trapp mellom underetasje og 1. etasje, ca. 3,4 m²

Innvendig trapp i bolig

Garasjeport Garasjeport i tilknytning til bolig

Antall: 1

Garasje oppført med brannsikker vegg mot nabogrense, dispensasjon for 0 m avstand

Garasje med tilhørende port i tilknytning til eneboligen

Dører Ytterdører og innerdører

🧱 Mørkegrå ytterdører, standard innerdører

Antall: 12

Ytterdører i mørkegrå utførelse, innerdører i bolig

Ytterdører og innerdører til bolig og sekundærbolig

VVS Sanitærinstallasjoner

Bad og WC med sanitærinstallasjoner i begge etasjer

Sanitærinstallasjoner for bad og WC i bolig

Mur Forstøtningsmur i naturstein

🧱 Naturstein

Forstøtningsmur med gjennomsnittlig høyde 1 meter, naturstein, justert plassering iht. endringssøknad

Forstøtningsmur i naturstein mot naboeiendom og vei

Elektro Elektrisk oppvarming og installasjoner

Elektrisk oppvarming, grunnvarme og biovarme med peisovn

Elektriske installasjoner og oppvarming i bolig

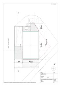
Plantegning

Enebolig 328.0 m²

Etasje 1 207.5 m²

Rom Areal Vinduer Dører
Kjøkken/stue Kjøkken/stue 38.2 m² 4 1
Gang Gang 7.8 m² 0 3
Bod BOD 4.2 m² 1 1
Bad Bad 5.1 m² 0 1
WC WC 2.3 m² 0 1
Soverom Sov. 12.6 m² 2 1
Soverom Sov. 10.8 m² 2 1

Etasje 0 120.5 m²

Rom Areal Vinduer Dører
Kjøkken/stue 001 34.9 m² 1 1
Gang/bod 002 4.4 m² 0 1
Entre 003 4.4 m² 0 1
Bad 004 5.1 m² 0 1
Trapp 005 2.1 m² 0 0
Sov 006 12.6 m² 1 1
Sov 007 11.0 m² 1 1
Gang 008 8.3 m² 0 2
TEKNISK/BOD 009 8.5 m² 0 1

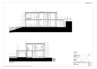
Fasader

Enebolig

Nord
Materiale
Tre
Taktype
Flatt tak
Høyde
4.1 m
Vinduer
1
Dører
1
Synlige etasjer
1
Vest
Materiale
Tre
Taktype
Flatt tak
Høyde
3.3 m
Mønehøyde
6.4 m
Vinduer
5
Dører
2
Synlige etasjer
2
Øst
Materiale
Tre
Taktype
Flatt tak
Høyde
6.5 m
Vinduer
6
Dører
0
Balkonger
1
Synlige etasjer
2
Sør
Materiale
Tre
Taktype
Flatt tak
Høyde
6.6 m
Vinduer
5
Dører
1
Balkonger
1
Synlige etasjer
2

Hendelser

24.03.2026 Søknad om endring gitt tillatelse og endring av ansvarsretter
08.09.2025 Tangenheia 31 Søknad om rammetillatelse 59/474
08.09.2025 Oversender avstandserklæringer