NewConstruction UnderBehandling Enebolig

Ny enebolig med sekundærleilighet på Torstadåsen 39C, Asker

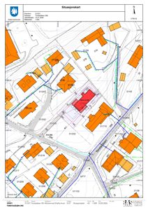
📍 Torstadåsen 39C , 1396 BILLINGSTAD

Nøkkelinfo

Sakstype
Nybygg
Bygningstype
Enebolig
Bruksareal
214 m²
Boenheter
2
Kommune
Asker
Fylke
Akershus
Gnr / Bnr
31 / 231
Saksnummer
26/922
Fase
Under behandling

Om byggesaken

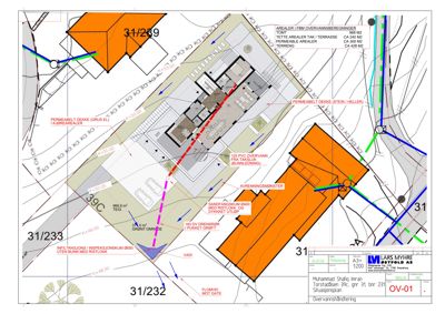
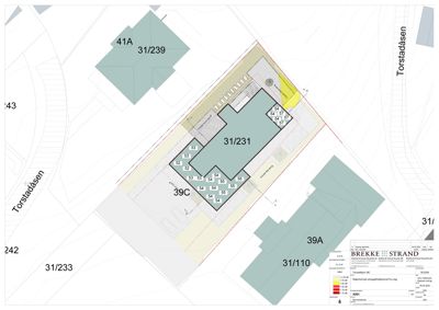
Ny frittliggende enebolig med integrert sekundærleilighet på eiendommen Torstadåsen 39C i Asker kommune. Boligen er planlagt med flatt tak og moderne arkitektur, tilpasset eksisterende terreng med begrensede terrenginngrep. Totalt bruksareal er ca. 214 m², fordelt på to etasjer med flere soverom, bad, vaskerom, bod, stue og kjøkken. Det er også en garasje på ca. 38,7 m². Utearealene inkluderer overbygde terrasser og uteplasser med belegningsstein og platting. Bygget har pipe og garasjeport, og fasadene er kledd i tre med flere vinduer og dører. Prosjektet inkluderer også planlegging av felles adkomstvei, overvannshåndtering, og støytiltak med spesifikke lydisolerende vinduer. Terrenginngrep er i hovedsak begrenset til byggets fotavtrykk og nødvendige uteområder, med hensyn til fredede eiketrær i området.

Produkter og materialer

Tømrer Trekonstruksjoner og montering

🧱 Tre

Tømrerarbeid for bærende konstruksjoner, vegger, tak og innvendige arbeider

Tømrerarbeid i bolig

Garasjeport Port til integrert garasje

🧱 Standard garasjeport i tre eller metall

Antall: 1

Garasjeport til garasje på ca. 38,7 m²

Port for biladkomst til garasje

Fasade Trepanel

🧱 Tre

Trepanel som fasademateriale med dempet fargebruk for varighet og estetikk

Fasadebekledning for bolig

Gulv Innvendige gulv

Standard gulvbelegg i bolig, ikke spesifisert i detalj

Gulv i boligrom

Betong Fundament og støttemurer

🧱 Betong

Fundamentering og støttemurer iht. utomhusplan og snitttegninger

Betongarbeid for fundament og terrengstøtte

Bad Baderomsinnredning og fliser

Antall: 3

Bad i hoveddel og sekundærleilighet, med standard sanitærutstyr og flislagte gulv og vegger

Bad og vaskerom i bolig

Tak Flatt tak

🧱 Taktekking med membran og isolasjon

Antall: 1

Flatt tak med maksimal takvinkel 4 grader, lydisolerende takløsning med Rw + Ctr ≥ 36 dB

Taktekking og isolasjon for bolig med flatt tak

Ventilasjon Balansert ventilasjonssystem

Balansert ventilasjon uten friskluftsventiler i vegger eller vinduskarmer

Ventilasjon for å sikre god luftkvalitet og lydisolasjon

Maling Innvendig og utvendig maling

Maling av fasade og innvendige overflater, ikke detaljert spesifisert

Overflatebehandling av bolig

Vinduer Lydisolerende vinduer

🧱 Tre/kompositt med 3-lags energiglass

Antall: 26

Vinduer med lydreduksjonstall Rw + Ctr = 32 dB for stue i 2. etasje og stue/kjøkken i leilighet i 1. etasje, øvrige vinduer med minimum Rw + Ctr = 28 dB

Vinduer tilpasset lydkrav for å sikre innendørs lydnivå i henhold til NS 8175 klasse C

Rekkverk Rekkverk på terreng og terrasser

🧱 Tre eller metall

Rekkverk på støttemurer og terrasser iht. utomhusplan

Sikkerhetsrekkverk for uteområder

Grunnarbeid Terrengbearbeiding og fundamentering

Begrensede terrenginngrep, fundamentering tilpasset skrånende terreng, støttemurer innenfor tillatte høyder

Grunnarbeid for bolig og uteområder

Trapper Innvendige trapper

🧱 Tre eller betong med tretrinn

Antall: 2

To trapper i boligen, en i hoveddel og en i sekundærleilighet

Innvendige trapper mellom etasjer

Terrasse Overbygde terrasser og plattinger

🧱 Tre og belegningsstein

Overbygde terrasser på ca. 32,1 m² og plattinger med belegningsstein rundt bolig

Uteoppholdsarealer med terrasse og platting

Elektro Elektrisk installasjon

Standard elektrisk installasjon iht. TEK17 og gjeldende normer

Elektrisk anlegg for bolig

VVS Vann- og avløpsanlegg

Tilknytning til offentlig vann- og avløpsnett, godkjent av Asker kommune

Vannforsyning og avløpssystem for bolig

Dører Ytterdører og terrassedører

🧱 Tre eller kompositt

Antall: 15

Ytterdører og terrassedører i fasader, inkludert dører til sekundærleilighet og garasje

Dører for adkomst og utgang til utearealer

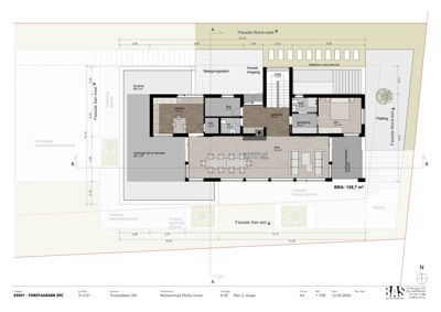
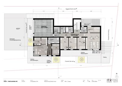
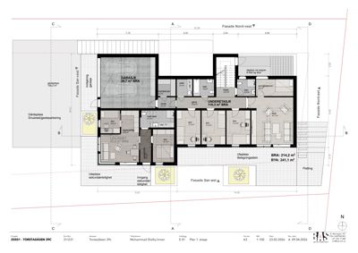
Plantegning

Enebolig 461.2 m²

Etasje 0 118.3 m²

Rom Areal Vinduer Dører
Gang GANG 10.6 m² 0 2
Sluse SLUSE 2.7 m² 0 1
Bod/teknisk BOD_TEKNISK 4.2 m² 0 1
Vask VASK 3.7 m² 0 1
Bad BAD_1 4.9 m² 0 1
Trapp TRAPP 10.3 m² 0 1
Bad BAD_2 4.2 m² 0 1
Sov/gjesterom SOV_GJESTEROM 8.8 m² 2 1
Stue STUE 27.7 m² 3 1
Gang 001 10.6 m² 0 4
Bad 002 4.9 m² 0 1
Vask 003 3.7 m² 0 1
Bod/teknisk 004 4.2 m² 0 1
Sluse 005 2.7 m² 0 1
Sov/gjesterom 006 8.8 m² 1 1
Bad 007 4.2 m² 0 1
Trapp 008 10.3 m² 0 0
Teknisk rom 009 3.7 m² 0 1
Dagslys 010 4.3 m² 1 1

Etasje 2 128.7 m²

Rom Areal Vinduer Dører
Stue U01 53.5 m² 4 1
Kjøkken U02 16.5 m² 1 1
Dispensasjon U03 6.1 m² 0 2
Bod U04 2.0 m² 0 1
WC U05 2.8 m² 0 1
Gang/Hall U06 11.4 m² 0 2
Bad U07 3.3 m² 0 1
Gard/Gang U08 4.5 m² 0 2
Sov U09 14.1 m² 1 1

Etasje 1 214.2 m²

Rom Areal Vinduer Dører
Stue 101 27.7 m² 1 1
Sov 102 11.2 m² 1 1
Sov 103 11.2 m² 1 1
Sov 104 11.2 m² 1 1
Sov 105 9.7 m² 1 1
Opphold/kkj 106 20.8 m² 1 1
Sov 107 6.2 m² 1 1
Bad/vask 108 8.1 m² 0 1
Gang/entre 109 5.0 m² 0 2

Fasader

Enebolig

Nord-vest
Materiale
Tre
Taktype
Flatt tak
Høyde
3.6 m
Mønehøyde
5.4 m
Vinduer
4
Dører
1
Synlige etasjer
1
Nord-øst
Materiale
Tre
Taktype
Flatt tak
Høyde
6.6 m
Vinduer
2
Dører
1
Balkonger
1
Synlige etasjer
1
Sør-vest
Materiale
Tre
Taktype
Flatt tak
Høyde
6.6 m
Mønehøyde
56.9 m
Vinduer
5
Dører
2
Balkonger
1
Synlige etasjer
2
Sør-øst
Materiale
Tre
Taktype
Flatt tak
Høyde
6.6 m
Mønehøyde
56.9 m
Vinduer
14
Dører
2
Balkonger
1
Synlige etasjer
2
Sydøst
Materiale
Tre
Taktype
Saltak
Høyde
6.2 m
Mønehøyde
9.0 m
Vinduer
6
Dører
1
Balkonger
1
Synlige etasjer
2
Sydvest
Materiale
Tre
Taktype
Saltak
Høyde
6.2 m
Mønehøyde
9.0 m
Vinduer
4
Dører
1
Balkonger
1
Synlige etasjer
2
Sørvest
Materiale
Tre
Taktype
Saltak
Høyde
6.6 m
Mønehøyde
8.9 m
Vinduer
4
Dører
1
Balkonger
1
Synlige etasjer
2

Hendelser

15.04.2026 31/231 Torstadåsen 39C - Tilsvar mottakskontroll
25.03.2026 31/231 Torstadåsen 39C - Mottakskontroll
20.03.2026 31/231 Torstadåsen 39C - Søknad om rammetillatelse - Oppføring av ny bolig