NewConstruction Ferdigattest Enebolig

Ny enebolig med garasje, terrasse og mur i Torvastadvegen 592, Osnes

📍 Torvastadvegen 592 , 4260 TORVASTAD

Nøkkelinfo

Sakstype
Nybygg
Bygningstype
Enebolig
Bruksareal
189 m²
Boenheter
1
Kommune
Karmøy
Fylke
Rogaland
Gnr / Bnr
140 / 308
Saksnummer
2022/467
Fase
Ferdigattest

Om byggesaken

Ny enebolig på totalt 188,9 m² BRA fordelt på to etasjer med saltak og flatt tak, oppført i tre. Bygget inkluderer en garasje på 32,5 m², terrasse på 42,4 m² og forstøtningsmur i terrenget. Første etasje inneholder vaskerom, bad, entre, stue, gang, tre soverom og garasje. Andre etasje har walk-in-closet, soverom, stor stue med kjøkken, bad og trapp. Bygget har flere vinduer og dører fordelt på fasadene, og terrengmuren er tilpasset tomtens skråning. Bygget er tilknyttet kommunalt vann og avløp, og har installert pipe. Høydefastsetting er utført med topp gulv på kote 12,3 moh. Det er gjennomført uavhengig kontroll og alle nødvendige ansvarsretter er på plass.

Produkter og materialer

Tak Saltak og flatt tak

Saltak på nord og vestfasade, flatt tak på sør og østfasade

Tak med kombinasjon av saltak og flatt tak

Maling Innvendig og utvendig maling

Ikke spesifisert, men vanlig for boligprosjekt

Maling av innvendige og utvendige flater

Bad Membran og flislegging

Membranarbeider og flislegging i våtrom

Vanntetting og flisarbeid i bad og vaskerom

Elektro Elektriske varmekabler og panelovner

Elektriske varmekabler og panelovner for oppvarming

Elektrisk oppvarming i bolig

Grunnarbeid Ringmur og terrengarbeid

Innmålt ringmur med koordinatlister, terrengmur tilpasset tomtens skråning

Grunnarbeid med ringmur og terrengmur for fundamentering og terrengtilpasning

Fasade Trepanel

🧱 Tre

Trepanel på alle fasader (øst, sør, nord, vest)

Utvendig kledning i tre på alle fasader

Vinduer Fasadevindu

🧱 Tre eller annet ikke spesifisert

Antall: 9

Vinduer fordelt på fasader: 2 øst, 3 sør, 2 nord, 1 vest

Fasadevindu i ulike rom, inkludert stue, soverom og kjøkken

Trapper Innvendige trapper

Antall: 2

To trapper i bolig, 5,7 m² hver

Innvendige trapper mellom etasjer

Kjøkken Standard kjøkkeninnredning

Ikke detaljert i dokumenter

Kjøkkeninnredning i stue/kjøkken-område

Pipe Pipe for vedovn/kamin

Antall: 1

Installert pipe for vedovn/kamin

Pipe tilknyttet bolig for ildsted

Mur Forstøtningsmur

🧱 Murmateriale ikke spesifisert

Forstøtningsmur i terreng, høyde justert til 1,0 m

Forstøtningsmur for terrengstøtte rundt bygget

Terrasse Takterrasse

Antall: 1

Takterrasse på 42,4 m² på vestfasade

Stor takterrasse tilknyttet bolig

Gulv Uspesifisert gulvbelegg

Ikke spesifisert i dokumenter

Gulv i bolig, antatt standard materialvalg

Dører Ytterdører og garasjeport

Antall: 9

Dører fordelt på fasader og rom, inkludert garasjeport og terrassedør

Ytterdører til bolig, garasje og terrasse

VVS Rørleggerarbeid

Rørleggerarbeid inkludert bunnledninger og innvendige rørinstallasjoner

Fullt rørleggerarbeid for bolig og våtrom

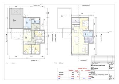
Plantegning

Enebolig 188.9 m²

Etasje 1 110.7 m²

Rom Areal Vinduer Dører
Vask 101 9.4 m² 0 1
Bad 102 5.4 m² 0 1
Entre 103 6.7 m² 0 2
Stue 104 12.6 m² 1 1
Gang 105 7.3 m² 0 2
Sov 106 7.2 m² 1 1
Trapp 107 5.7 m² 0 0
Sov 108 9.7 m² 1 1
Sov 109 9.4 m² 1 1
Garasje 110 32.5 m² 0 1

Etasje 2 78.2 m²

Rom Areal Vinduer Dører
WIC 201 5.9 m² 0 1
Sov 202 11.5 m² 1 1
Stue og kjøkken 203 45.5 m² 1 1
Bad 204 7.2 m² 0 1
Trapp 205 5.7 m² 0 0

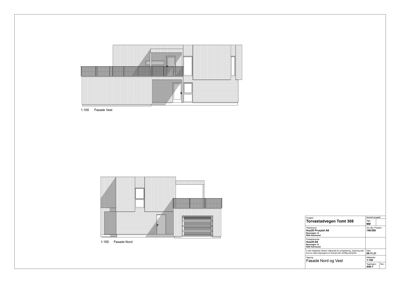
Fasader

Enebolig

Øst
Materiale
Tre
Taktype
Flatt tak
Vinduer
2
Dører
1
Synlige etasjer
2
Sør
Materiale
Tre
Taktype
Flatt tak
Vinduer
3
Dører
2
Synlige etasjer
2
Nord
Materiale
Tre
Taktype
Saltak
Vinduer
2
Dører
1
Synlige etasjer
2
Vest
Materiale
Tre
Taktype
Saltak
Vinduer
1
Dører
1
Balkonger
1
Synlige etasjer
2

Hendelser

17.04.2026 Gnr. 140, bnr. 308 - Søknad om ferdigattest
14.04.2026 Gnr. 140, bnr. 308 - Innmålingsdata
23.03.2026 Gnr. 140, bnr. 308 -Supplering av søknad - Oppdaterte ansvarsretter og gjennomføringsplan
17.03.2025 Gnr. 140, bnr. 308 -Supplering av søknad - endring av ansvarsrett
05.04.2022 Gnr.140, bnr. 308 - Høydefastsetting
16.03.2022 Tillatelse til tiltak - Enebolig med garasje, forstøtningsmur og terrasse - gnr. 140 bnr. 308 - Osnes
15.03.2022 Gnr. 140, bnr. 308 - Tilbakemelding om pipe
08.03.2022 Gnr. 140, bnr. 308 - Supplering av dokumentasjon
31.01.2022 Tilbakemelding om mangler - Enebolig med garasje, forstøtningsmur og terrasse - gnr. 140, bnr. 308 - Osnes
17.01.2022 Gnr. 140, bnr. 308 - Enebolig med garasje, forstøtningsmur og terrasse - Osnes