NewConstruction UnderBehandling Enebolig

Ny enebolig med tilbygg og garasje på Tudalsvegen, Sykkylven

📍 Tudalsvegen 101 , 6220 STRAUMGJERDE

Nøkkelinfo

Sakstype
Nybygg
Bygningstype
Enebolig
Bruksareal
327 m²
Boenheter
1
Kommune
Sykkylven
Fylke
Møre og Romsdal
Gnr / Bnr
29 / 247
Saksnummer
2026/24
Fase
Under behandling

Om byggesaken

Prosjektet omfatter oppføring av en ny enebolig med totalt 326,9 m² BRA fordelt på to etasjer, inkludert flere soverom, bad, vaskerom, kjellerstue, grovinngang, stue/kjøkken, gang, bod, utebod og hagestue. Boligen har en utvendig carport på 55 m² og tilhørende garasje. Bygget har saltak med takstoler i tre, og fasadene er planlagt med trepanel. Det er også planlagt et nytt redskapshus med flatt tak og garasjeporter. Prosjektet inkluderer terrengarbeid, fundamentering med ringmur, og tekniske installasjoner som VVS og elektro. Det er gitt dispensasjon for plassering av veranda nærmere nabogrense og for bruksendringer i industriområde. Adresse er tildelt for eiendommen langs Tudalsvegen.

Produkter og materialer

Grunnarbeid Ringmur og fundament

🧱 Betong og Lecablokker

Ringmur med minimum 250 mm høyde over ferdig gulv, bredde 100-150 mm

Fundamentering for bolig og garasje

Terrasse Veranda

Antall: 1

Veranda på østside av bolig, med dispensasjon for plassering 1 meter fra nabogrense

Veranda tilknyttet bolig

Garasjeport Garasjeport i tre

🧱 Tre

Antall: 1

Garasjeport til garasje og redskapshus

Isolasjon Bygningsisolasjon

Isolasjon i vegger, tak og gulv i bolig

VVS Sanitær og varme

VVS-installasjoner for bad, vaskerom og kjøkken i bolig

Elektro Elektrisk anlegg

Elektriske installasjoner i bolig og tilbygg

Tak Saltak og flatt tak

🧱 Tre takstoler, takstein eller membran

Takstoler i tre, flatt tak på redskapshus og garasje

Taktekking for enebolig med saltak og redskapshus/garasje med flatt tak

Fasade Trepanel

🧱 Tre

Trepanel på fasader for bolig, redskapshus og garasje

Utvendig kledning i trepanel

Annet Adressebevilgning

Tildeling av offisiell adresse langs Tudalsvegen

Adressebevilgning for eiendommer i prosjektområdet

Vinduer Åpningsvinduer

🧱 Tre

Antall: 9

Vinduer i soverom, gjesterom, kjellerstue, stue/kjøkken, utebod og hagestue i enebolig

Gulv Innvendige gulv

Innvendige gulv i bolig, sannsynligvis parkett eller fliser

Dører Ytterdører og innerdører

🧱 Tre

Antall: 17

Ytterdører og innerdører i enebolig og redskapshus

Betong Fundament og plate

🧱 Betong B35

Betongkonstruksjoner for fundament og ringmur

Betongarbeid for fundamentering

Trapper Innvendig trapp

Antall: 1

Innvendig trapp mellom etasjer i enebolig

Maling Innvendig og utvendig maling

Maling av fasader, innvendige vegger og tak

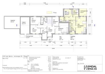
Plantegning

Enebolig 326.9 m²

Etasje 1 326.9 m²

Rom Areal Vinduer Dører
Inngang 101 21.9 m² 0 2
Bad 102 5.7 m² 0 1
Grovinnang 103 9.9 m² 0 1
Soverom 104 12.0 m² 1 1
Soverom 105 11.8 m² 1 1
Gjesterom 106 9.8 m² 1 1
Kjellerstue 107 20.3 m² 1 1
Gang 301 11.3 m² 0 2
Bod 302 2.5 m² 0 1
Bad 303 6.9 m² 0 1
Soverom 304 10.2 m² 1 1
Soverom 305 6.5 m² 1 1
Stue/kjøkken 306 27.4 m² 1 1
Overbygd areal O.A 2.2 m² 0 0
Utebod U01 23.7 m² 1 1
Hagestue U02 30.0 m² 1 1
Vaskerom 108 6.0 m² 0 1

Fasader

Redskapshus

Vest
Materiale
Tre
Taktype
Flatt tak
Høyde
3.1 m
Mønehøyde
3.5 m
Vinduer
0
Dører
1
Synlige etasjer
1
Sør
Materiale
Tre
Taktype
Flatt tak
Høyde
3.1 m
Mønehøyde
3.5 m
Vinduer
3
Dører
0
Synlige etasjer
1
Øst
Materiale
Tre
Taktype
Flatt tak
Høyde
3.1 m
Mønehøyde
3.5 m
Vinduer
1
Dører
0
Synlige etasjer
1
Nord
Materiale
Tre
Taktype
Flatt tak
Høyde
3.1 m
Mønehøyde
3.5 m
Vinduer
0
Dører
0
Synlige etasjer
1

Garasje

Ukjent
Materiale
Tre
Taktype
Flatt tak
Vinduer
0
Dører
1
Synlige etasjer
1

Hendelser

15.04.2026 3/24 - Nabovarsel til kommunal eigedom
09.04.2026 54/21 - Nabovarsel til kommunal eigedom
08.04.2026 54/21 - Nabovarsel til kommunal eigedom
20.03.2026 14/459 - Nabovarsel til kommunal eigedom
19.03.2026 Nabovarsel til kommunal eigedom - 234/4 Volda kommune
17.03.2026 14/43 - Nabovarsel til kommunal eigedom
10.03.2026 43/77 - Nabovarsel til kommunal eigedom
06.03.2026 Vedtak om tildeling av adresse langs Tudalsvegen
05.03.2026 53/2 - Nabovarsel til kommunal eigedom
27.02.2026 54/90 - Nabovarsel til kommunal eigedom
17.02.2026 43/151 - Nabovarsel til kommunal eigedom
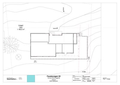
17.02.2026 3/63 - Nabovarsel til kommunal eigedom
13.02.2026 41/1 - Nabovarsel til kommunal eigedom
10.02.2026 61/1 - Nabovarsel til kommunal eigedom
06.02.2026 17/153 - Nabovarsel til kommunal eigedom
30.01.2026 7/114 - Nabovarsel til kommunal eigedom
14.01.2026 54/120 - Nabovarsel til kommunal eigedom
14.01.2026 54/120 - Nabovarsel til kommunal eigedom
05.01.2026 17/403 - Nabovarsel til kommunal eigedom