NewConstruction UnderBehandling Enebolig

Ny enebolig med riving i Tveitan gårdsvei 13, Horten

📍 Tveitan Gårdsvei 13 , 3180 NYKIRKE

Nøkkelinfo

Sakstype
Nybygg
Bygningstype
Enebolig
Bruksareal
231 m²
Boenheter
1
Kommune
Horten
Fylke
Vestfold
Gnr / Bnr
102 / 44
Saksnummer
2025/5252
Fase
Under behandling

Om byggesaken

Ny enebolig på 231 m² BRA oppføres på eiendommen Tveitan gårdsvei 13 i Horten, etter riving av eksisterende enebolig og bryggerhus. Boligen er to etasjer med saltak og tre som fasademateriale, og har en mønehøyde på ca. 7,8 meter. Planløsningen inkluderer blant annet garasje, flere soverom, bad, kjøkken og store verandaer. Terrengarbeider med fylling og støttemur på opptil 2 meter inngår i prosjektet, samt en midlertidig rampe som kan bygges ved behov. Avløpsløsning med biologisk/kjemisk minirenseanlegg er planlagt, med utslippstillatelse fra kommunen. Nybygget plasseres der bryggerhuset stod, med god tilpasning til terreng og naboer. Prosjektet inkluderer dispensasjoner for plankrav, arealformål og nabogrenseavstand for terrengfylling.

Produkter og materialer

Vinduer Fasadevindu

🧱 Tre med 3-lags glass

Antall: 28

Vinduer i tre, fordelt på fasader nord (10), sør (10), øst (5), vest (2)

Fasadevinduer i tre med energiglass for bolig

Gulv Parkett og fliser

🧱 Eikeparkett og fliser

Innvendige gulvflater i bolig med parkett og fliser på bad

Garasjeport Port til integrert garasje

Antall: 1

Garasjeport til integrert garasje på 58,8 m²

Garasjeport til boligens integrerte garasje

Fasade Trepanel

🧱 Tre

Tre som fasademateriale i naturlig fargepalett

Trepanel til fasader for estetisk tilpasning til landskap

Ventilasjon Mekanisk ventilasjon

Ventilasjonsanlegg for bolig iht. TEK

Tak Saltak

🧱 Takstein eller tilsvarende

Antall: 1

Saltak med mønehøyde ca. 7,8 meter, pulttak med forskjøvet gesims

Saltak med takstein eller tilsvarende materiale

Terrasse Veranda

🧱 Tre eller kompositt

Antall: 4

Verandaer på 35 m², 20 m² vinterhage, 11,5 m² og 11,9 m²

Flere verandaer og vinterhage til bolig

Betong Støttemur

🧱 Betong

Støttemur opptil 2 meter høyde i eiendomsgrense

Støttemur for terrengstøtte ved tennisbane

Dører Ytterdører og terrassedører

🧱 Tre

Antall: 8

Ytterdører og terrassedører i tre, inkludert dør i garasje og dør som kan omgjøres fra vindu til dør ved rammesøknad

Ytterdører og terrassedører i tre til bolig og garasje

Elektro Elektrisk anlegg

Elektrisk installasjon i bolig iht. TEK

Grunnarbeid Terrengplanering og fylling

🧱 Massedeponi fra pigging og graving

Antall: 500

Terrengfylling på ca. 500 m² med høyde opp til 2 meter støttemur, planering rundt tennisbane

Terrengarbeider med fylling og støttemur, inkludert nabosamtykke

VVS Minirenseanlegg for avløp

🧱 Biovac Dynamic 1 med vannmettet lecafilter

Antall: 1

Biologisk/kjemisk minirenseanlegg med etterpolering, alarm for høyt vannivå, serviceavtale og slamtømming

Avløpsrenseanlegg for sanitært avløpsvann med utslippstillatelse

Tømrer Innvendige vegger og tak

🧱 Tre og gips

Innvendige konstruksjoner for bolig

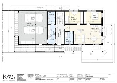
Plantegning

Enebolig 380.4 m²

Etasje 1 180.4 m²

Rom Areal Vinduer Dører
Garasje Garage 58.8 m² 0 1
Stue 101 37.2 m² 2 1
Kjøkken 102 37.2 m² 1 1
Gang 103 18.7 m² 0 3
Bad 104 6.5 m² 0 1
Vaskerom 105 9.2 m² 0 1
Bad 106 5.8 m² 0 1
Soverom 107 13.9 m² 1 1
Soverom 108 14.0 m² 1 1

Etasje 2 200.0 m²

Rom Areal Vinduer Dører
Veranda 201 35.0 m² 0 0
Winter garden 202 20.0 m² 0 0
Veranda 203 11.5 m² 0 0
Veranda 204 11.9 m² 0 0
Kitchen/dining/living 205 70.7 m² 2 1
Hallway 206 6.7 m² 0 1
Guest bed r. 207 12.0 m² 1 1
Walk-in 208 6.2 m² 0 1
Bath r. 209 9.2 m² 0 1
Main bed r. 210 17.8 m² 1 1
Pantry 211 5.9 m² 0 1

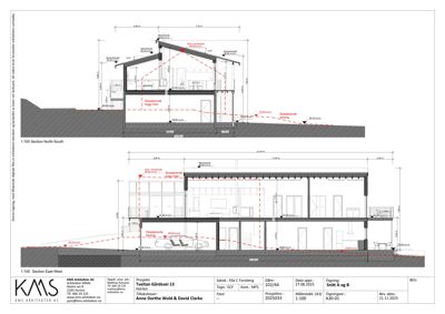
Fasader

Enebolig

Nord
Materiale
Tre
Taktype
Saltak
Høyde
7.8 m
Mønehøyde
86.6 m
Vinduer
10
Dører
0
Balkonger
1
Synlige etasjer
2
Sør
Materiale
Tre
Taktype
Saltak
Høyde
7.8 m
Mønehøyde
86.6 m
Vinduer
10
Dører
1
Balkonger
2
Synlige etasjer
2
Øst
Materiale
Tre
Taktype
Saltak
Høyde
7.8 m
Mønehøyde
8.7 m
Vinduer
5
Dører
1
Balkonger
1
Synlige etasjer
2
Vest
Materiale
Tre
Taktype
Saltak
Høyde
7.8 m
Mønehøyde
8.7 m
Vinduer
2
Dører
1
Balkonger
1
Synlige etasjer
2

Hendelser

16.04.2026 Tveitan gårdsvei 13, 102/44 - rive eksisterende bolig - oppføring av ny enebolig - saksopplysning
30.03.2026 Tveitan gårdsvei 13, 102/44 - supplering av søknad
26.03.2026 Tveitan gårdsvei 13, 102/44 - oversender på nytt
26.03.2026 Tveitan gårdsvei 13, 102/44 - rive eksisterende bolig - oppføring av ny enebolig og terrenginngrep - påbegynt saksbehandling
15.12.2025 Tveitan gårdsvei 13, 102/44 - rive eksisterende bolig - oppføring av ny enebolig - søknad om rammetillatelse
13.05.2025 Tveitan gårdsvei 13, 102/44 - trekker søknad om rammetillatelse