NewConstruction Igangsettingstillatelse Enebolig

Ny enebolig med garasje på Fosnanes, Karmøy

📍 Varanesvegen 146 , 5546 RØYKSUND

Nøkkelinfo

Sakstype
Nybygg
Bygningstype
Enebolig
Bruksareal
177 m²
Boenheter
1
Kommune
Karmøy
Fylke
Rogaland
Gnr / Bnr
106 / 97
Saksnummer
2024/8669
Fase
Igangsettingstillatelse

Om byggesaken

Ny enebolig på totalt 177 m² BRA fordelt på to plan med integrert garasje på 36 m² i underetasjen. Boligen har sportsbod og gang/trapp i underetasjen, og hovedetasje med stue/kjøkken, flere soverom, bad, vaskerom og walk-in. Bygget har pulttak med 12 graders takvinkel og fasader i tre med stående kledning. Det er saltak på taket, og bygningen har pipe og garasjeport. Fasader har til sammen 14 vinduer og 4 ytterdører, samt en balkong. Tomten er kupert med tilpasset terrenginngrep og uteoppholdsareal mot sør med gode solforhold. Bygget er prosjektert med høy isolasjon, balansert ventilasjon og godkjent grunnmursystem. Det er etablert nødvendig infrastruktur med kommunalt vann og avløp, og godkjent vegrett. Prosjektet har full ansvarsrett og er i fase igangsettingstillatelse.

Produkter og materialer

Tømrer Tømrerarbeid, montering og byggeteknikk

🧱 Tre

Utføres av TRAA BYGG AS, inkludert montering av ventilasjonsanlegg og kanaler

Bygging av trekonstruksjoner, takverk og montering av ventilasjon

Elektro Elektriske installasjoner

Elektriske installasjoner i henhold til forskrift

El-installasjoner for bolig

Pipe Installert pipe

Antall: 1

Pipe installert i bolig

Pipe for ildsted

Gulv Eikeparkett og fliser

🧱 Eikeparkett, fliser i våtrom

Gulvbelegg i oppholdsrom og fliser i bad

Innvendige gulvflater med parkett og fliser

Ventilasjon Balansert ventilasjon

Utføres av SYSTEMAIR AS, balansert ventilasjon for enebolig

Ventilasjonsanlegg med balansert luftutveksling

Isolasjon Isolasjon mot grunn

🧱 300 mm isolasjon

Isolasjon mot grunn i henhold til TEK17

Isolasjon for å sikre varmeisolering mot grunn

Tak Saltak med pulttak

🧱 Taktekking ikke spesifisert

Pulttak med 12 graders takvinkel, saltakskonstruksjon

Tak med saltak og pulttakform

Bad Membranarbeider på våtrom

🧱 Membran

Utføres av MURMESTER CHRISTIAN HETLAND AS

Membran og våtromsarbeid i bad og vaskerom

Garasjeport Garasjeport

Antall: 1

Garasjeport i fasade nord-øst

Port for integrert garasje

Trapper Innvendig trapp

Antall: 1

Trapp mellom underetasje og hovedetasje

Innvendig trapp i bolig

Dører Ytterdører og garasjeport

🧱 Tre og glass

Antall: 4

Ytterdører i tre med glass, garasjeport inkludert

Ytterdører og garasjeport for bolig og garasje

VVS Rørleggerarbeid innvendig og utvendig

Utføres av RØRLEGGERANE AS, inkludert prosjektering og utførelse

VVS-installasjoner for bolig

Grunnarbeid Grunnarbeider og landskapsutforming

Utføres av KL MASKINUTLEIE AS, inkludert utarbeidelse av grunndata og fundamentering

Grunnarbeid for fundamentering og landskapsutforming av tomt

Vinduer Fasadevindu

🧱 Tre med 3-lags energiglass

Antall: 14

Vinduer i fasader, inkludert personsikkerhetsglass der angitt

Fasadevindu i tre med energiglass for god isolasjon

Terrasse Veranda/uteoppholdsareal

🧱 Tre

Veranda mot sør med gode solforhold

Uteoppholdsareal for bolig

Betong Grunnmursystem og annet murarbeid

Utføres av SUSORT FORSKALING AS, godkjent grunnmursystem

Grunnmur og murarbeid for bolig

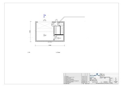
Plantegning

Hovedbygg 7.3 m²

Etasje 1 7.3 m²

Rom Areal Vinduer Dører
Bad 101 7.3 m² 0 1

Enebolig 58.1 m²

Etasje 0 58.1 m²

Rom Areal Vinduer Dører
Garasje U-01 36.0 m² 0 1
Sportsbod U-02 5.8 m² 0 1
Gang/trapp U-03 12.3 m² 0 2

Fasader

Enebolig

Sør-Vest
Materiale
Tre
Taktype
Saltak
Vinduer
3
Dører
2
Synlige etasjer
1
Sør-Øst
Materiale
Tre
Taktype
Saltak
Vinduer
4
Dører
1
Synlige etasjer
1
Nord-Øst
Materiale
Tre
Taktype
Saltak
Vinduer
4
Dører
0
Balkonger
1
Synlige etasjer
2
Nord-Vest
Materiale
Tre
Taktype
Saltak
Vinduer
3
Dører
1
Synlige etasjer
1

Hendelser

14.04.2026 Gnr. 106, bnr. 97 - erklæring om ansvarsrett og oppdatert gjennomføringsplan
13.04.2026 Gnr. 106, bnr. 97 - Søknad om ferdigattest
25.02.2025 Gnr. 106, bnr. 97 - Høydefastsetting
19.12.2024 Vedtak om igangsetting - Enebolig med garasje - gnr. 106 bnr. 97 - Fosnanes
19.12.2024 Vedtak om rammetillatelse - Enebolig med garasje - gnr. 106 bnr. 97 - Fosnanes
18.12.2024 Gnr. 106, bnr. 97 - Søknad om igangsettingstillatelse
06.12.2024 Gnr. 106, bnr. 97 - (kopi) Erklæring om rettighet i fast eiendom - Tinglyst 2021
29.11.2024 Gnr. 106, bnr. 97 - Tegninger, kart, erklæring om rettighet, gjenpart nabovarsel
29.11.2024 Gnr. 106, bnr. 97 - Søknad om endring av gitt tillatelse
06.11.2024 Tilbakemelding om mangler - Enebolig med garasje - gnr. 106, bnr. 97 - Fosnanes
18.10.2024 Gnr. 106, bnr. 97 - Enebolig med garasje - Fosnanes