NewConstruction UnderBehandling Enebolig

Ny enebolig med støyskjerm i Verkensvegen 1, Auli

📍 Verkensvegen 1 , 1929 AULI

Nøkkelinfo

Sakstype
Nybygg
Bygningstype
Enebolig
Bruksareal
106 m²
Boenheter
1
Kommune
Nes
Fylke
Akershus
Gnr / Bnr
199 / 73
Saksnummer
2026/347
Fase
Under behandling

Om byggesaken

Ny enebolig på 106 m² BRA fordelt på to etasjer med saltak og tegltak, plassert på tomt på ca. 865 m² etter fradeling. Boligen har tre soverom, bad, WC, kjøkken, stue, sportsbod og omkledningsrom. Det etableres en frittliggende støyskjerm mot fylkesveg for å sikre tilfredsstillende uteoppholdsareal og støyforhold. Bygget har gesimshøyde ca. 5,8 m og mønehøyde ca. 7,5 m. Det er planlagt parkeringsplass under tak og på terreng. Overvann håndteres lokalt med infiltrasjon og regnbed. Det foreligger dispensasjon for støyskjermens plassering innenfor byggegrense. Eiendommen deles i to matrikkelenheter, og det er krav om dokumentert vegrett og VA-rettigheter. Flere ansvarlige foretak er engasjert for prosjektering og utførelse, inkludert oppmåling, grunnarbeid, betong, tømrer, VA, elektro, akustikk og geoteknikk. Det er også planlagt obligatorisk uavhengig kontroll.

Produkter og materialer

Betong Plasstøpte betongkonstruksjoner

Inkludert radontiltak i plate på mark

Fundamentering og bærende konstruksjoner i betong

Grunnarbeid Oppmåling og matrikkelføring

Oppmålingsforretning og matrikkelføring for fradeling

Oppmåling og matrikkelføring av ny tomt

Isolasjon Isolasjon i vegger og tak

Isolasjon iht. TEK17 krav for energiytelse og lydisolasjon

Isolasjon i konstruksjoner

Dører Ytterdører og innerdører

🧱 Tre

Ytterdører og innerdører iht. boligstandard

Fasade Trekledning

🧱 Tre

Antall: 1

Trekledning på alle fasader

Utvendig kledning i tre

Grunnarbeid Graving, oppfylling og komprimering

Graving for byggegrop, adkomst og utomhusanlegg

Grunnarbeid for fundamentering og terrengtilpasning

VVS Utvendig VA-anlegg

Tilkobling til kommunalt vann- og avløpsnett, overvannshåndtering til terreng

Utvendig vann- og avløpsinstallasjoner

Ventilasjon Montering av ventilasjonssystem

Montering av ventilasjon inkludert i tømrerarbeid

Ventilasjonssystem for bolig

Tak Saltak med teglstein

🧱 Teglstein

Antall: 1

Saltak med takvinkel 30°, gesimshøyde ca. 5,8 m, mønehøyde ca. 7,5 m

Taktekking med teglstein på saltak

Vinduer Lydisolerende vinduer

Antall: 15

Vinduer med lydisolerende egenskaper Rw + Ctr ≥ 32 dB i soverom 1 i plan 1 og kjøkken i plan 2, øvrige vinduer Rw + Ctr ≥ 29 dB

Vinduer med økt lydisolasjon for å tilfredsstille innendørs støynivåkrav

Tømrer Tømrerarbeid og montering av ventilasjon

Alt tømrerarbeid inkludert ventilasjon

Innvendig og utvendig tømrerarbeid

Trapper Innvendig trapp

Antall: 1

Innvendig trapp mellom etasjer

Trapp i bolig

VVS Innvendig sanitær- og VA-anlegg

Sanitærinstallasjoner, montering av vannmåler, tilkobling baderomskabiner

Innvendig vann- og avløpsinstallasjoner

Maling Innvendig og utvendig maling

Maling av innvendige og utvendige flater

Overflatebehandling

Rekkverk Rekkverk på veranda og trapper

🧱 Tre eller metall

Rekkverk iht. byggtekniske krav på verandaer og trapp

Sikkerhetsrekkverk

Terrasse Verandaer

🧱 Tre

Antall: 2

To verandaer på til sammen ca. 44 m²

Uteareal på veranda

Annet Støyskjerm

🧱 Støyskjermkonstruksjon

Antall: 1

Frittliggende støyskjerm mot fylkesveg, høyde 2 meter over terreng, med fundamentering

Støyskjerm for å redusere veitrafikkstøy og sikre uteoppholdsareal

Pipe Pipe og ildsted

Antall: 1

Installering av pipe og ildsted

Pipe og ildsted for bolig

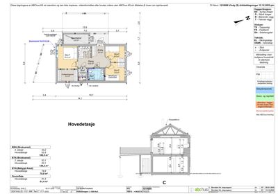
Plantegning

Enebolig 106.0 m²

Etasje 2 53.2 m²

Rom Areal Vinduer Dører
Veranda2 201 30.1 m² 2 0
Veranda1 202 14.1 m² 1 0
Stue 203 27.7 m² 2 1
Kjøkken 204 17.2 m² 1 1
WC 205 2.9 m² 0 1

Etasje 1 52.8 m²

Rom Areal Vinduer Dører
Sov1 101 10.0 m² 1 1
Sov2 102 7.6 m² 1 1
Sov3 103 6.6 m² 1 1
Gang 104 10.8 m² 0 4
Entre 105 2.9 m² 0 1
Bad 106 4.1 m² 0 1
Bod 107 1.8 m² 0 1
Omkledningsrom 108 5.2 m² 0 1
Sportsbod 109 5.6 m² 1 1

Fasader

Enebolig

Nordvest
Materiale
Tre
Taktype
Saltak
Takmat.
Tegl
Høyde
6.8 m
Mønehøyde
8.5 m
Vinduer
4
Dører
1
Balkonger
1
Synlige etasjer
2
Nordøst
Materiale
Tre
Taktype
Saltak
Takmat.
Tegl
Høyde
6.8 m
Mønehøyde
8.5 m
Vinduer
3
Dører
1
Synlige etasjer
2
Sørvest
Materiale
Tre
Taktype
Saltak
Takmat.
Tegl
Høyde
2.8 m
Mønehøyde
7.8 m
Vinduer
3
Dører
0
Synlige etasjer
2
Sør
Materiale
Tre
Taktype
Saltak
Høyde
2.8 m
Mønehøyde
7.8 m
Vinduer
2
Dører
0
Balkonger
1
Synlige etasjer
2
Sørøst
Materiale
Tre
Taktype
Saltak
Høyde
6.5 m
Mønehøyde
8.2 m
Vinduer
2
Dører
1
Balkonger
1
Synlige etasjer
2

Hendelser

16.04.2026 Svar - Nedgravd hydrant - Gbnr 199/73 - Verkensvegen 1 - Oppføring av enebolig og støyskjerm
16.04.2026 Nedgravd hydrant - Gbnr 199/73 - Verkensvegen 1 - Oppføring av enebolig og støyskjerm
05.03.2026 Svar på supplering av søknad og veien videre - Gbnr 199/73 - Verkensvegen 1 - Oppføring av enebolig og støyskjerm
18.02.2026 Supplering av søknad - Gbnr 199/73 - Verkensvegen 1 - Oppføring av enebolig og støyskjerm
03.02.2026 Dispensasjon fra byggegrense - Fv. 175 - Gbnr 199/73 - Verkensvegen 1
30.01.2026 Tilbakemelding om mangler og avklaring i saken - Gbnr 199/73 - Verkensvegen 1 - Oppføring av enebolig og støyskjerm
22.01.2026 Søknad om tillatelse i ett trinn - Gbnr 199/73 - Verkensvegen 1 - Nybygg enebolig - Deling - Støyskjerm