NewConstruction Rammetillatelse Enebolig

Ny enebolig med carport i Vesterveien, Arendal

📍 Vesterveien 199 , 4817 HIS

Nøkkelinfo

Sakstype
Nybygg
Bygningstype
Enebolig
Bruksareal
168 m²
Boenheter
1
Kommune
Arendal
Fylke
Agder
Gnr / Bnr
305 / 714
Saksnummer
2026/8802
Fase
Rammetillatelse

Om byggesaken

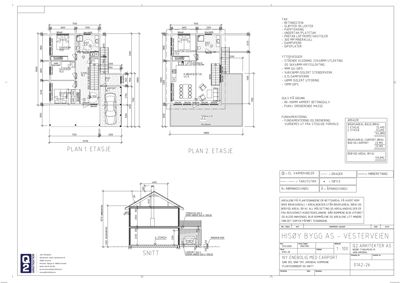
Ny to-etasjes enebolig med saltak og carport på en tomt i Vesterveien, Arendal kommune. Boligen har et bebygd areal på 133 m² og et samlet bruksareal på 167,9 m², inkludert carport og bod på 23,1 m². Bygget har tre soverom i første etasje og flere rom som kjøkken/stue, bad, teknisk rom og bod i begge etasjer. Fasaden er i tre med saltak, og det er pipe og garasjeport. Fundamentering og drenering tilpasses stedlige forhold, med betonggulv på grunn og isolerte yttervegger. Det er planlagt ventilasjonsanlegg, innvendig sanitær, grunn- og terrengarbeider, samt kontroll av lufttetthet og membranarbeid i våtrom. Utearealet har tilstrekkelig parkering og uteoppholdsareal, og tiltaket er plassert med god avstand til VA-ledninger og nabogrense med samtykke.

Produkter og materialer

Tak Saltak med betongstein

🧱 Betongstein, papptekking, sløyfer og lekter, prefab loftromstakstoler, mineralull 300 mm, dampsperre, gipsplater

Tak med saltak, betongstein som taktekking, isolasjon og undertak

Tak med isolasjon og betongstein

Ventilasjon Ventilasjonsanlegg med kanalføringer

Ventilasjonsanlegg for boenheten med kanalføringer, begrenset til branncelle

Ventilasjonsanlegg for bolig

Betong Ringmur og gulv på grunn

🧱 Armert betong

Ringmur og betonggulv på grunn med isolasjon

Betongarbeider for ringmur og gulv

Dører Ytterdører og skyvedører

🧱 Tre eller glassdører, skyvedør i stue

Antall: 7

Ytterdører og skyvedører i bolig, inkludert carportdør

Ytterdører og skyvedører til bolig og carport

Elektro Elektriske installasjoner

El-varmekabler i gulv, elektriske installasjoner ikke detaljert

Elektriske installasjoner i bolig

Fasade Tre kledning

🧱 Tre, stående kledning med utlekting

23x48 mm utlekting og 36x48 mm krysslekting, 9 mm GU-gips, isolert stenderverk med 148x36 mm, dampsperre og isolert utforing

Yttervegger med isolasjon og trepanel

Garasjeport Garasjeport til carport

Antall: 1

Garasjeport til carport på 23,1 m²

Garasjeport for carport

Tømrer Tømrerarbeider

🧱 Treverk for konstruksjon og innredning

Utførelse av tømrerarbeider for bolig og carport

Tømrerarbeider for bygg og carport

Mur Mur- og betongarbeider

🧱 Betong og murmaterialer

Utførelse av mur- og betongarbeider for fundament og ringmur

Mur- og betongarbeider

VVS Innvendig sanitær

Sanitæranlegg for bolig, inkludert bad og teknisk rom

Innvendig sanitærinstallasjoner

Vinduer Fasadevindu

🧱 Tre/alu eller tilsvarende, 3-lags energiglass antatt

Antall: 17

Vinduer fordelt på fasader, totalt 17 stk

Fasadevindu i bolig med energiglass

Rekkverk Rekkverk på terrasse og trapper

🧱 Tre eller annet materiale, ikke spesifisert

Rekkverk iht. byggeforskrifter på terrasse og trapper

Sikkerhetsrekkverk

Trapper Innvendig trapp

🧱 Tre eller betong, ikke spesifisert

Antall: 1

Innvendig trapp mellom etasjer

Innvendig trapp i bolig

Grunnarbeid Fundamentering og drenering

🧱 Betong, pukk, drenerende masse

Fundamentering og drenering tilpasses stedlige forhold, armert betonggulv på grunn

Grunnarbeid med fundamentering og drenering

Isolasjon Mineralull isolasjon

🧱 Mineralull 300 mm i tak, isolasjon i vegger

Isolasjon i tak og vegger iht. tekniske krav

Isolasjon for varme og lyd

Plantegning

Enebolig 144.8 m²

Etasje 1 72.4 m²

Rom Areal Vinduer Dører
Kjøkken/Stue 101 44.9 m² 3 1
Gang 102 18.2 m² 0 3
Bod 103 18.1 m² 1 1
Teknisk rom 104 5.0 m² 0 1
Soverom 105 12.2 m² 1 1
Soverom 106 10.0 m² 1 1
Soverom 107 13.6 m² 1 1
Bad 108 8.9 m² 0 1

Etasje 2 72.4 m²

Rom Areal Vinduer Dører
Kontor/Soverom 201 13.6 m² 1 1
Kjøkken/Stue 202 44.9 m² 3 1
Gang 203 18.2 m² 0 3
Bod 204 18.1 m² 1 1
Teknisk rom 205 5.0 m² 0 1
Soverom 206 12.2 m² 1 1
Soverom 207 10.0 m² 1 1
Bad 208 8.9 m² 0 1

Fasader

Enebolig

Sørvest
Materiale
Tre
Taktype
Saltak
Vinduer
6
Dører
1
Synlige etasjer
2
Sørøst
Materiale
Tre
Taktype
Saltak
Vinduer
5
Dører
1
Balkonger
1
Synlige etasjer
2
Nordøst
Materiale
Tre
Taktype
Saltak
Vinduer
3
Dører
0
Synlige etasjer
2
Nordvest
Materiale
Tre
Taktype
Saltak
Vinduer
3
Dører
1
Synlige etasjer
2

Hendelser

20.04.2026 SVAR PÅ SØKNAD
09.04.2026 Svar på - Ber om tilbakemelding - 305/1191 - Vesterveien - Oppføring av ny bolig - Hisøy Bygg AS
18.03.2026 Vesterveien, melding om mottatt søknad
17.03.2026 Søknad om tillatelse i ett trinn 305/1191