NewConstruction UnderBehandling Enebolig

Ny enebolig med garasje og tilpasninger i Vikanesvegen 85

📍 Vikanesvegen 85 , 5574 SKJOLD

Nøkkelinfo

Sakstype
Nybygg
Bygningstype
Enebolig
Bruksareal
241 m²
Boenheter
1
Kommune
Vindafjord
Fylke
Rogaland
Gnr / Bnr
169 / 57
Saksnummer
2026/918
Fase
Under behandling

Om byggesaken

Ny enebolig på totalt 241 m² BRA fordelt på to etasjer med saltak og trekledning. Boligen inneholder blant annet garasje på 38,3 m², sportsbod, vaskerom, to bad, flere soverom, allrom, kjøkken/stue og walk-in garderobe. Bygget har pipe og flere balkonger. Det er planlagt terrengtilpasninger med forstøtningsmurer, adkomst og parkering integrert i boligen. Bygningen har moderne arkitektur med saltak og tilpasses terrenget og nabolagets karakter. Boligen knyttes til kommunalt vann- og avløpsnett.

Produkter og materialer

Elektro Elektrisk anlegg

Elektrisk installasjon i bolig iht. gjeldende forskrifter

Elektroinstallasjon for enebolig

Vinduer Fasadevindu

🧱 Tre

Antall: 17

Vinduer i trekarm fordelt på fasader, inkludert 3 på nord-vest, 6 på sør-vest, 2 på sør-øst og 1 på nord-øst fasade

Fasadevinduer i trekarm til enebolig

Mur Forstøtningsmur

🧱 Betong eller stein

Forstøtningsmurer utenfor byggegrense mot kommunal veg for terrengtilpasning og sikring av uteområder

Forstøtningsmurer for terrengtilpasning og uteområder

Pipe Pipe og ildsted

Antall: 1

Montering av pipe og ildsted i eneboligen

Pipe og ildsted

Tak Saltak

🧱 Tre og taktekking

Antall: 1

Saltak med tradisjonell trekonstruksjon og taktekking tilpasset nabolagets karakter

Saltak til enebolig

VVS Sanitæranlegg

Innvendig sanitæranlegg med tilknytning til kommunalt vann- og avløpsnett

Sanitæranlegg for enebolig

Maling Innvendig og utvendig maling

Maling av trepanel utvendig og innvendige overflater

Maling av fasade og innvendige flater

Betong Ringmur og gulvstøp

Forskaling og støping av ringmurer, høgmurer og gulv

Betongarbeid for fundament og gulv

Bad Våtromsarbeid

🧱 Membran og fliser

Antall: 2

Våtromsarbeid inkludert membran og flislegging i to bad

Bad med membran og flis

Tømrer Tømrerarbeid

🧱 Tre

Tømrerarbeid inkludert bæring, vegger, takstoler og detaljer, samt energiberegning

Tømrerarbeid for enebolig

Dører Ytterdører og garasjeport

🧱 Tre

Antall: 7

Ytterdører og garasjeport i trekonstruksjon, inkludert 2 dører på nord-vest, 1 dør og garasjeport på sør-vest, 1 dør på sør-øst og 1 dør på nord-øst fasade

Ytterdører og garasjeport til enebolig

Ventilasjon Balansert ventilasjon

Prosjektering og montering av balansert ventilasjonsanlegg med kanalføring og innregulering

Ventilasjonsanlegg for enebolig

Grunnarbeid Graving, drenering og fundamentering

Graving, masseutskifting, drenering, komprimering, fundamentering og legging av VA-ledninger innenfor ringmur

Grunnarbeid for enebolig med fundament og VA-tilknytning

Gulv Innvendige gulv

Gulv i alle rom, inkludert garasje, sportsbod, vaskerom, bad, soverom, allrom, kjøkken/stue og bod

Innvendige gulv i enebolig

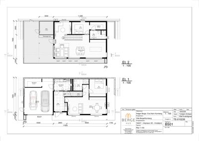
Plantegning

Enebolig 241.0 m²

Etasje 1 120.5 m²

Rom Areal Vinduer Dører
Garasje Garasje 38.3 m² 0 1
Sportsbod Sportsbod 6.4 m² 0 1
Vaskerom Vaskerom 8.5 m² 1 1
Bad Bad 8.1 m² 0 1
Sov Sov 12.9 m² 1 1
Allrom Allrom 32.6 m² 2 1
Hall Hall 12.2 m² 0 1

Etasje 2 120.5 m²

Rom Areal Vinduer Dører
Bod Bod 7.4 m² 0 1
Kjøkken/Stue Kjøkken/Stue 57.0 m² 4 1
Sov Sov 9.3 m² 1 1
Walk-In Walk-In 5.3 m² 0 1
Bad Bad 6.1 m² 0 1

Fasader

Enebolig

Nord-Vest
Materiale
Tre
Taktype
Saltak
Vinduer
3
Dører
2
Balkonger
1
Synlige etasjer
2
Sør-Vest
Materiale
Tre
Taktype
Saltak
Vinduer
6
Dører
1
Balkonger
1
Synlige etasjer
2
Sør-Øst
Materiale
Tre
Taktype
Saltak
Vinduer
2
Dører
1
Balkonger
1
Synlige etasjer
2
Nord-Øst
Materiale
Tre
Taktype
Saltak
Vinduer
1
Dører
1
Synlige etasjer
1

Hendelser

20.04.2026 Mangelbrev- Bustad - Gnr. 169 bnr. 57 - Vikanesvegen 85
07.04.2026 Vikanesvegen 85 Søknad om tillatelse i ett trinn 169/57