NewConstruction Soeknad Enebolig

Ny enebolig med garasje i Vuttuvegen 9, Ålvundfjord

📍 Vuttuvegen 9 , 6622 ÅLVUNDFJORD

Nøkkelinfo

Sakstype
Nybygg
Bygningstype
Enebolig
Bruksareal
269 m²
Boenheter
1
Kommune
Sunndal
Fylke
Møre og Romsdal
Gnr / Bnr
113 / 110
Saksnummer
26/00964
Fase
Søknad

Om byggesaken

Ny enebolig på totalt 269 m² BRA fordelt på to etasjer bygges i Vuttuvegen 9, Ålvundfjord. Bygget har saltak og trekledning, med en underetasje på 148,5 m² og en hovedetasje på 120,5 m². Underetasjen inneholder fire soverom, kjellerstue, bad, vaskerom, bod/teknisk rom og gang, mens hovedetasjen har stue, kjøkken, entre, kontor/gjesterom og bad. Fasadene er i tre med flere vinduer og dører, og det er garasje integrert i bygget med garasjeporter på øst- og vestfasade. Bygget har en trapp og balkonger på nord- og vestfasade. Tomten er på 1218 m² med offentlig vann og avløp tilknyttet, og bygget tilpasses eksisterende terreng.

Produkter og materialer

Trapper Innvendig trapp

Antall: 1

En trapp mellom etasjene

Innvendig trapp for etasjeadkomst

Mur Grunnmur

🧱 Betong

Grunnmur i betong for bolig

Tak Saltak

🧱 Trekonstruksjon med taktekking

Saltak i trekonstruksjon på bolig

Tak med saltakform og trekonstruksjon

Ventilasjon Ventilasjonssystem

Ventilasjon for bolig iht. TEK-krav

VVS Innvendig vann- og avløpsanlegg

Utføres av Gridseth Rør AS, inkludert sanitær og vanninstallasjoner

Vann- og avløpsinstallasjoner innvendig i bolig

Tømrer Innvendige arbeider

Utføres av BYGGSERVICE AS GJØRA

Innvendige tømrerarbeider og montering

Dører Ytterdører og innerdører

🧱 Tre

Antall: 15

Ytterdører og innerdører i tre, totalt 15 stk

Dører for adkomst og romavgrensning i bolig

Gulv Innvendige gulvflater

Innvendige gulv i bolig, materialvalg ikke spesifisert

Tømrer Råbygg og klimaskjerm

🧱 Trekonstruksjoner

Utføres av Bygg-Vest AS

Oppføring av råbygg og klimaskjerm i trekonstruksjon

Garasjeport Garasjeporter

Antall: 2

Garasjeporter på øst- og vestfasade

Porter for garasjeintegrasjon i bolig

Maling Utvendig og innvendig maling

Maling av trefasader og innvendige flater

Isolasjon Isolasjon i vegger og tak

Isolasjon iht. TEK for energikrav

Betong Fundament og grunnmur

🧱 Betong

Fundamentering og grunnmur for eneboligen

Vinduer Fasadevindu

🧱 Tre

Antall: 17

Vinduer i tre på fasader og i rom, fordelt på 17 stk

Vinduer for naturlig lys og ventilasjon i bolig

Elektro Elektriske installasjoner

Elektriske installasjoner for bolig

Grunnarbeid Grunnarbeider og masseflytting

Grunnarbeid utføres av Bredesen Graving og Transport AS

Grunnarbeid og masseflytting for fundamentering og terrengtilpasning

Bad Bad og våtrom

Antall: 2

To bad i bolig, ett i hver etasje

Bad med våtromsstandard

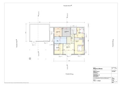
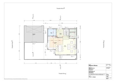
Plantegning

Enebolig 269.0 m²

Etasje 0 148.5 m²

Rom Areal Vinduer Dører
Soverom U01 10.1 m² 1 1
Kjellerstue U02 13.4 m² 2 1
Soverom U03 17.9 m² 1 1
Gang U04 6.9 m² 0 2
Bad U05 9.7 m² 1 1
Vaskerom U06 8.0 m² 1 1
Bod/teknisk U07 8.5 m² 0 1
Soverom U08 9.4 m² 1 1

Etasje 2 120.5 m²

Rom Areal Vinduer Dører
Stue 201 36.1 m² 3 1
Kjøkken 202 19.4 m² 1 1
Entre 203 10.9 m² 0 2
Kontor/gjesterom 204 8.1 m² 1 1
Bad 205 7.0 m² 0 1

Fasader

Enebolig

Nord
Materiale
Tre
Taktype
Saltak
Vinduer
1
Dører
1
Balkonger
1
Synlige etasjer
2
Øst
Materiale
Tre
Taktype
Saltak
Vinduer
3
Dører
1
Synlige etasjer
1
Sør
Materiale
Tre
Vinduer
4
Dører
1
Synlige etasjer
2
Vest
Materiale
Tre
Vinduer
6
Dører
2
Balkonger
1
Synlige etasjer
2

Hendelser

14.04.2026 26/00964-2 113/110, Vettuvegen 9, nytt bygg, endringsmelding
20.03.2026 26/00964-1 113/110, Vuttuvegen 9 - søknad om rammetillatelse