NewConstruction Rammetillatelse Enebolig

Ny enebolig i Wallemsskogen 15, Bergen

📍 Wallemsskogen 15 , 5165 LAKSEVÅG

Nøkkelinfo

Sakstype
Nybygg
Bygningstype
Enebolig
Bruksareal
150 m²
Boenheter
1
Kommune
Bergen
Fylke
Vestland
Gnr / Bnr
146 / 85
Saksnummer
BYGG-2025/18394
Fase
Rammetillatelse

Om byggesaken

Ny frittliggende enebolig på 150 m² BRA fordelt på to etasjer med saltak tekket med rød teglstein, plassert på en 750,7 m² tomt i Wallemsskogen 15, Bergen. Boligen har tradisjonell arkitektur med liggende falset trekledning, kraftig hjørnebelistning og omramming rundt vinduer og dører. Planløsningen inkluderer stue, kjøkken, tre soverom, bad, vaskerom, bod og hall i hver etasje. Det etableres parkeringsplass for fire biler og sykkelparkering for å dekke kommunale krav. Tomten har gode uteoppholdsarealer med hage og terrasse, og tiltaket er tilpasset terrenget med lav plassering for å redusere volumvirkning og bevare sol- og utsiktsforhold. Det er gjennomført nabovarsling med flere merknader, særlig knyttet til adkomst via privat vei, trafikk, innsyn, og uteareal. Tiltaket har fått rammetillatelse og dispensasjon fra eldre reguleringsplan for å tillate to boliger på tomten.

Produkter og materialer

Trapper Innvendig trapp

Antall: 1

Innvendig trapp mellom to etasjer

Trapp for intern kommunikasjon i boligen

Bad Bad og vaskerom

Antall: 2

Bad på 7,5 m² og vaskerom på 1 m² i hver etasje

Sanitærrom med nødvendige installasjoner

Dører Ytterdører og terrassedører

🧱 Ikke spesifisert

Antall: 7

Dører til inngang, vaskerom, bod og terrasser

Ytterdører og dører til utearealer

Parkering Bil- og sykkelparkering

Antall: 4

Parkeringsplass for 4 biler og 8 sykkelplasser i tilknytning til boligene

Parkering i henhold til kommunale krav

Gulv Innvendige gulvflater

Ikke spesifisert i detalj, men boligstandard forventes

Innvendige gulv i bolig

Vinduer Fasadevindu med omramming, blyglassvindu i stue mot sør

🧱 Tre/aluminium ikke spesifisert, blyglass i enkelte vinduer

Antall: 20

Vinduer med omramming, stuevinduer mot sør utføres som blyglass for å skjerme innsyn

Fasadevindu i to etasjer, inkludert spesialvinduer for innsynsskjerming

Maling Utvendig og innvendig maling

Forventet overflatebehandling av treverk og innvendige flater

Maling og overflatebehandling

Tak Saltak med tre takarker

🧱 Uglassert enkelkrummet rød teglstein

Tak med tre takarker som bryter opp takflaten, tekket med rød teglstein

Saltak med teglstein og hvite renner og nedløp

Terrasse Terrasse og uteoppholdsareal

Gode uteoppholdsarealer med hage og terrasse, ca 400 m² uteareal totalt

Utearealer for rekreasjon og lek

Fasade Liggende enkelt falset trekledning med kraftig hjørnebelistning og omramming rundt vinduer og dører

🧱 Tre

Tradisjonell trefasade med kraftig hjørnebelistning

Yttervegger med liggende trekledning i tradisjonell stil

Elektro Elektriske installasjoner

Elektriske installasjoner i henhold til gjeldende forskrifter

El-installasjoner for bolig

Grunnarbeid Tomtearbeid, fundamentering og forstøtningsmurer

🧱 Betong og mur

To nye forstøtningsmurer med høyde opptil 1,5 meter, plassert innenfor tomtegrense

Grunnarbeid med murer for terrengtilpasning og sikkerhet

VVS VA-anlegg med stikkledninger for vann og spillvann, tilbakeslagssikring

Tilkobling til offentlig vann- og avløpsnett, lokal overvannshåndtering, krav til teknisk sluttdokumentasjon

Vann- og avløpsinstallasjoner i henhold til Bergen Vanns krav

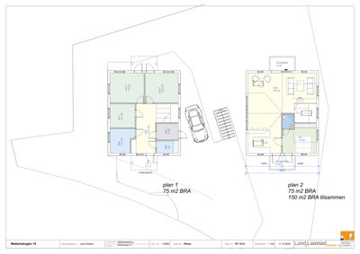
Plantegning

Enebolig 150.0 m²

Etasje 1 75.0 m²

Rom Areal Vinduer Dører
Stue 101 40.0 m² 2 1
Kjøkken 102 15.0 m² 1 1
Sov 1 103 13.0 m² 1 1
Bad 104 7.5 m² 0 1
Vaskerom 105 1.0 m² 0 1
Hall 106 14.5 m² 0 2
Bod 107 5.0 m² 1 1
Sov 2 108 14.0 m² 1 1
Sov 3 109 13.5 m² 1 1

Etasje 2 75.0 m²

Rom Areal Vinduer Dører
Stue 201 40.0 m² 2 1
Kjøkken 202 15.0 m² 1 1
Sov 1 203 13.0 m² 1 1
Bad 204 7.5 m² 0 1
Vaskerom 205 1.0 m² 0 1
Hall 206 14.5 m² 0 2
Bod 207 5.0 m² 1 1
Sov 2 208 14.0 m² 1 1
Sov 3 209 13.5 m² 1 1

Fasader

Enebolig

Vest
Materiale
Tre
Taktype
Saltak
Takmat.
Tegl
Vinduer
5
Dører
1
Balkonger
2
Synlige etasjer
2
Sør
Materiale
Tre
Taktype
Saltak
Takmat.
Tegl
Vinduer
5
Dører
2
Balkonger
1
Synlige etasjer
2
Øst
Materiale
Tre
Taktype
Saltak
Takmat.
Tegl
Vinduer
5
Dører
0
Balkonger
2
Synlige etasjer
2
Nord
Materiale
Tre
Taktype
Saltak
Takmat.
Tegl
Vinduer
5
Dører
1
Balkonger
1
Synlige etasjer
2

Hendelser

14.04.2026 Rammetillatelse. Gnr. 146 bnr. 85. Wallemskogen 13. Nybygg- Enebolig
13.04.2026 Vedtak fra BME- 146/85/0/0 Wallemsskogen 15, nytt bygg - Boligformål
07.04.2026 Wallemsskogen 15 Supplering av søknad 146/85
11.03.2026 Bekreftelse fristutsettelse
10.03.2026 Ber om ny fristutsettelse
09.02.2026 BYGG- 2025/18394. Wallemsskogen 15. Fristutsettelse
06.02.2026 Ber om fristutsettelse- 146/85/0/0 Wallemsskogen 15, nytt bygg - Boligformål
07.01.2026 Behov for tilleggsopplysninger. Gnr. 146 bnr. 85.Wallemsskogen 15.
18.12.2025 Bekreftelse på mottatt søknad
17.12.2025 Wallemsskogen 15 Søknad om rammetillatelse 146/85