NewConstruction Igangsettingstillatelse Enebolig

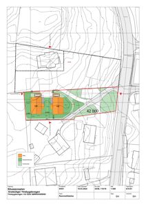
Oppføring av to eneboliger med carport i Ytrebygdsvegen, Bergen

📍 Ytrebygdsvegen 133E , 5252 SØREIDGREND

Nøkkelinfo

Sakstype
Nybygg
Bygningstype
Enebolig
Bruksareal
386 m²
Boenheter
2
Kommune
Bergen
Fylke
Vestland
Gnr / Bnr
115 / 19
Saksnummer
BYGG-2024/14174
Fase
Igangsettingstillatelse

Om byggesaken

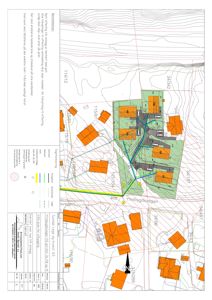
To nye eneboliger på samme tomt i Ytrebygdsvegen, Bergen, med hver bolig på 167 m² BRA, supplert med carport på 18 m² og overbygd areal på 8 m². Byggene har saltak og flatt tak, er i to etasjer med flere soverom, bad, stue, kjøkken og vaskerom. Tomten er på ca. 1323 m², og det planlegges også riving av eksisterende garasje på 55 m². Det etableres støttemur, utenomhusanlegg, VA-ledninger og parkeringsplasser. Overvannshåndtering skjer via sandfangskummer og fordrøyningsmagasiner med infiltrasjon. Byggene har trefasader og pipe. Det er to trapper i hver bolig, og store vindusflater mot naboeiendommer. Prosjektet er i igangsettingsfase med godkjente rammetillatelser og igangsettingstillatelse for deler av tiltaket.

Produkter og materialer

Tak Saltak og flatt tak

🧱 Takstein og membran

Antall: 2

Saltak på deler av bolig, flatt tak på andre deler

Taktekking med takstein og membran

Garasjeport Carport

🧱 Tre og metall

Antall: 2

Carport på 18 m² per bolig

Carport tilknyttet hver bolig

Vinduer Fasadevindu

🧱 Tre med 3-lags energiglass

Antall: 14

Store vindusflater mot naboeiendommer, 3-lags energiglass

Fasadevinduer i tre for stue, soverom og kjøkken

Trapper Innvendige trapper i L-form

🧱 Tre

Antall: 4

To trapper per bolig, innvendig

Innvendige trapper mellom etasjer

Dører Ytterdører og terrassedører

🧱 Tre

Antall: 10

Ytterdører og dører til uteområder/carport

Ytterdører og dører til uteareal/carport

Mur Støttemur

🧱 Betong/murstein

Antall: 1

Støttemur ca. 30 meter lang, høyde 1,26-1,85 m

Støttemur langs eiendomsgrense med gjerde på toppen

Bad Bad og WC innredning

Antall: 4

Bad og WC med sanitærutstyr og fliser

Bad og WC med standard innredning

Terrasse Overbygd uteareal

🧱 Tre

Antall: 2

Overbygd areal på 8 m² per bolig

Overbygd uteareal tilknyttet boligene

Betong Fundament og støttemur

🧱 Betong

Fundament for boliger og støttemur

Betongfundament og støttemur

Grunnarbeid Graving og terrengarbeid

Graving for byggegrop, terrengsenking ca. 1 meter

Grunnarbeider for fundamentering og terrengtilpasning

VVS Sanitærinstallasjoner og VA-ledninger

Utvendig VA-anlegg inkl. tilkobling til kommunalt nett, overvannshåndtering med sandfangskummer og fordrøyningsmagasiner

Vann- og avløpsinstallasjoner, overvannshåndtering

Rekkverk Rekkverk på overbygg og trapper

🧱 Tre/metall

Rekkverk iht. forskriftskrav på overbygg og trapper

Sikkerhetsrekkverk

Elektro Elektrisk installasjon

Elektriske installasjoner iht. TEK17

Elektrisk anlegg i boligene

Gulv Innvendige gulv

🧱 Eikeparkett og fliser

Eikeparkett i oppholdsrom, fliser på bad og WC

Innvendige gulvflater

Maling Utvendig og innvendig maling

Maling av trepanel utvendig og innvendige overflater

Maling og overflatebehandling

Isolasjon Bygningsisolasjon

Isolasjon i vegger, tak og gulv iht. TEK17

Isolasjon for energikrav

Kjøkken Kjøkkeninnredning

Antall: 2

Kjøkkeninnredning med hvitevarer

Kjøkkeninnredning i hver bolig

Fasade Trepanel

🧱 Tre

Antall: 2

Trepanel på alle fasader

Trepanel som fasadekledning

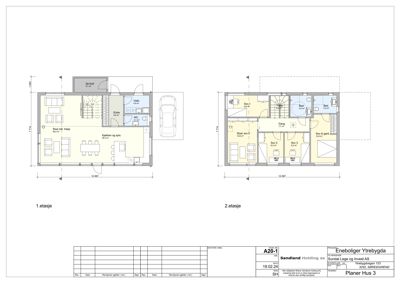
Plantegning

Enebolig 241.0 m²

Etasje 1 120.5 m²

Rom Areal Vinduer Dører
Stue inkl. trapp 101 38.2 m² 3 1
Kjøkken og spis. 102 26.3 m² 1 1
Entre 103 6.8 m² 0 2
Vask. 104 4.9 m² 0 1
WC 105 3.1 m² 0 1
Sp.bod 106 5.1 m² 0 1

Etasje 2 120.5 m²

Rom Areal Vinduer Dører
Sov.1 201 9.8 m² 1 1
Stue/sov.5 202 14.6 m² 1 1
Sov 2 203 8.3 m² 1 1
Sov 3 204 8.3 m² 1 1
Sov.4/gard. 205 13.6 m² 1 1
Gang 206 7.7 m² 0 2
Bad 207 5.0 m² 0 1
Bad 208 4.5 m² 0 1

Fasader

Enebolig

Sør
Materiale
Tre
Taktype
Saltak
Høyde
6.2 m
Mønehøyde
68.0 m
Vinduer
4
Dører
2
Synlige etasjer
2
Vest
Materiale
Tre
Taktype
Flatt tak
Høyde
6.2 m
Mønehøyde
68.0 m
Vinduer
6
Dører
1
Synlige etasjer
2
Nord
Materiale
Tre
Taktype
Saltak
Høyde
6.2 m
Mønehøyde
68.0 m
Vinduer
2
Dører
1
Synlige etasjer
2
Øst
Materiale
Tre
Taktype
Flatt tak
Høyde
6.2 m
Mønehøyde
68.0 m
Vinduer
4
Dører
2
Synlige etasjer
2

Mur Hus4

Sør
Materiale
Tre
Taktype
Saltak
Høyde
4.0 m
Mønehøyde
6.0 m
Vinduer
1
Dører
1
Synlige etasjer
2

Hendelser

15.01.2026 Igangsettingstillatelse for deler av tiltaket (1), 115/19, Ytrebygdsvegen
15.01.2026 Supplering av søknad 115/19
07.01.2026 Søknad om igangsettingstillatelse 115/19
24.01.2025 Svar på spørsmål om nabovarsling
29.12.2024 Spørsmål om nabovarsel - 115/19/0/0 Ytrebygdsvegen, nytt bygg - Boligformål
20.12.2024 Fakturagrunnlag
20.12.2024 ubw ordre 20658559
12.12.2024 Rammetillatelse, 115/19, Ytrebygdsvegen
09.12.2024 Reviderte tegninger- 115/19/0/0 Ytrebygdsvegen, nytt bygg - Boligformål
05.12.2024 Søknad om endring av gitt tillatelse eller godkjenning 115/19
27.11.2024 Vedrørende utforming av felles veg - 115/19/0/0 Ytrebygdsvegen, nytt bygg - Boligformål
27.11.2024 Om utforming av felles veg - 115/19/0/0 Ytrebygdsvegen, nytt bygg - Boligformål
26.11.2024 Vedrørende felles vei- 115/19/0/0 Ytrebygdsvegen, nytt bygg - Boligformål
30.10.2024 Ber om at sak gjenopptas - 115/19/0/0 Ytrebygdsvegen, nytt bygg - Boligformål
28.10.2024 Intern høring - Naturforvaltning- Svar fra Bymiljøetaten
28.10.2024 Ber om at saken gjenopptas - saken stilles i bero - 115/19/0/0 Ytrebygdsvegen, nytt bygg - Boligformål
28.10.2024 Orientering i sak- 115/19/0/0 Ytrebygdsvegen, nytt bygg - Boligformål
14.10.2024 Saken stilles i bero, 115/19/0/0 Ytrebygdsvegen, nytt bygg - Boligformål
09.10.2024 Må legge sak i bero - 115/19/0/0 Ytrebygdsvegen, nytt bygg - Boligformål
04.10.2024 Ber om at sak settes på vent- 115/19/0/0 Ytrebygdsvegen, nytt bygg - Boligformål
02.10.2024 Sak settes i bero- 115/19/0/0 Ytrebygdsvegen, nytt bygg - Boligformål
01.10.2024 Nabomerknad- 115/19/0/0 Ytrebygdsvegen, nytt bygg - Boligformål
26.09.2024 Merknad til nabovarsel - 115/19/0/0 Ytrebygdsvegen, nytt bygg - Boligformål
20.09.2024 Uttale til dispensasjonssøknad - oppføring av 2 eneboliger - fv. 557 - gnr. 115 bnr. 19 - Bergen kommune
13.09.2024 Ytrebygdsvegen, anmodning om uttalelse - Statsforvalteren i Vestland, Vestland Fylkeskommune
13.09.2024 Intern høring - Naturforvaltning
06.09.2024 Tilleggsopplysninger - 115/19/0/0 Ytrebygdsvegen, nytt bygg - Boligformål
03.09.2024 Viser til telefonsamtale - ber om 3 uker utsatt frist på å sende inn tilleggsopplysninger - 115/19/0/0 Ytrebygdsvegen, nytt bygg - Boligformål
29.08.2024 Tilleggsopplysninger - 115/19/0/0 Ytrebygdsvegen, nytt bygg - Boligformål
02.08.2024 Bekreftelse på mottatt søknad - Behov for tilleggsopplysninger, 115/19/0/0 Ytrebygdsvegen, nytt bygg - boligformål
29.07.2024 Vedrørende tilbakekall av nabosamtykke- 115/19/0/0 Ytrebygdsvegen, nytt bygg - Boligformål
29.07.2024 Kopi - vedrørende tilbaketrekking nabosamtykke - 115/19/0/0 Ytrebygdsvegen, nytt bygg - Boligformål
19.06.2024 Vedrørende tilbakekall av nabosamtykke- 115/19/0/0 Ytrebygdsvegen, nytt bygg - Boligformål
13.06.2024 Bekreftelse på mottatt søknad
12.06.2024 Søknad om rammetillatelse 115/19