Other Soeknad Enebolig

Innvendig gjenoppbygging i enebolig med utleie, Brekkaveien 9

📍 Brekkaveien 9 , 8402 SORTLAND

Nøkkelinfo

Sakstype
Other
Bygningstype
Enebolig
Bruksareal
56 m²
Boenheter
2
Kommune
Sortland - Suortá
Fylke
Nordland - Nordlánnda
Gnr / Bnr
15 / 244
Saksnummer
2026/197
Fase
Søknad

Om byggesaken

Prosjektet omfatter gjenoppbygging av en utleieleilighet i en enebolig på Brekkaveien 9, Sortland, etter brannskader og påviste avvik i bærekonstruksjoner. Tiltaket inkluderer riving av innvendige vegger, himlinger og sanitærutstyr, samt reparasjon og oppføring av innvendige konstruksjoner med tilsvarende planløsning som før brannen. Fasader, byggets ytre rammer og utearealer berøres ikke. Bygget er en eldre trekonstruksjon med betongvegger i underetasjen, seksjonert som to boenheter. Prosjektet omfatter også oppgradering av sanitærinstallasjoner og uavhengig kontroll av våtrom.

Produkter og materialer

Grunnarbeid Ingen endring

Ingen endring i grunnarbeid eller utearealer

Utearealer og grunnarbeid berøres ikke

Mur Betongvegger underetasje

🧱 betong

Eksisterende betongvegger i underetasje berøres ikke, men inngår i bygningskonstruksjonen

Bygningskonstruksjonens underetasje i betong

Kontroll Uavhengig kontroll våtrom

Obligatorisk uavhengig kontroll av fuktsikring ved bygging av våtrom

Kontroll av våtrom i forbindelse med rehabilitering

Fasade Trepanel

🧱 tre

Fasader endres ikke som følge av tiltaket

Eksisterende trepanel på fasade øst beholdes

Gulv Innvendige gulv

Reparasjon av gulv i leilighet etter brannskade

Gjenoppbygging av gulv i leilighet

VVS Sanitærinstallasjoner

Oppgradering og reparasjon av sanitærutstyr i våtrom

Sanitærinstallasjoner i leilighet som skal gjenoppbygges

Vinduer Fasadevindu

🧱 tre

Antall: 3

3 vinduer i stue/kjøkken i leilighet, fasadevinduer i tre

Vinduer i leilighet som ikke endres, men inngår i bygningsstruktur

Tømrer Innvendige bærekonstruksjoner

🧱 treverk

Reparasjon og montering av trekonstruksjoner i leilighet etter brannskade

Riving og gjenoppbygging av innvendige vegger og himlinger i leilighet

Dører Innvendige dører

Antall: 7

Innvendige dører i leilighet, totalt 7 dører ifølge plantegning

Nye eller reparerte innvendige dører i leilighet

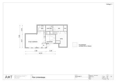
Plantegning

Hovedleilighet 56.4 m²

Etasje 0 56.4 m²

Rom Areal Vinduer Dører
STUE/KJØKKEN 001 34.0 m² 3 1
SOVEROM 002 11.5 m² 0 1
BAD 003 4.5 m² 0 1
vask/tekn. 004 2.5 m² 0 1
gang 005 4.4 m² 0 2
bad 006 3.5 m² 0 1
bod 007 2.0 m² 0 1

Fasader

Leilighet

Øst
Materiale
Tre
Taktype
Saltak
Vinduer
10
Dører
1
Balkonger
1
Synlige etasjer
3

Enebolig

Øst
Materiale
Tre
Taktype
Saltak
Vinduer
10
Dører
1
Balkonger
1
Synlige etasjer
2

Hendelser

15.04.2026 Purring på søknad
23.03.2026 Purring – Brekkavegen 9 - Gnr/Bnr 15/244
23.02.2026 Purring på søknad
19.01.2026 Søknad om tillatelse i ett trinn