Other Ferdigattest Enebolig

Ny isolert stålpipe på Støylavegen 7, Leinøy

📍 Støylavegen 7 , 6094 LEINØY

Nøkkelinfo

Sakstype
Other
Bygningstype
Enebolig
Boenheter
1
Kommune
Herøy (Møre og Romsdal)
Fylke
Møre og Romsdal
Gnr / Bnr
26 / 62
Saksnummer
2025/8169
Fase
Ferdigattest

Om byggesaken

Ny isolert stålpipe med dimensjon 130/230 mm fra Nordpeis AS montert på en eksisterende enebolig i Støylavegen 7, Leinøy. Pipa leveres i svart som standard, med mulighet for rød eller sølvgrå farge, og inkluderer takhatt, gjennomføringsisolasjon, diffusjonssperre og teleskopisk opphengsmodul for fleksibel montering. Tiltaket omfatter kun byggteknisk installasjon uten endring i byggets fasade eller bruk. Arbeidet er utført av Bullmann AS som ansvarlig prosjekterende og utførende, og ferdigattest er gitt.

Produkter og materialer

Tømrer Montering og tilpasning

Montering av isolert stålpipe på eksisterende bygg, inkludert tilpasning til tak og gjennomføringer

Utførelse av montering av stålpipe med nødvendig tilpasninger i byggets konstruksjon

Teknisk Sertifisert montør og kontrollør

Montasje utført av sertifisert montør med Nivå 3 sertifikat for søknadspliktig arbeid

Sikrer korrekt og lovlig montering og kontroll av ildsted og skorstein i henhold til gjeldende regelverk

Pipe Isolert stålpipe 130/230 mm

🧱 Stål

Antall: 1

Nordpeis stålpipe i en dimensjon hele veien, inkludert takhatt, gjennomføringsisolasjon, diffusjonssperre, teleskopisk opphengsmodul, dekkplate og startmodul med overgang fra Ø150 til Ø130

Ny isolert stålpipe for montering på eksisterende enebolig, komplett med nødvendige moduler og tilbehør for sikker og forskriftsmessig installasjon.

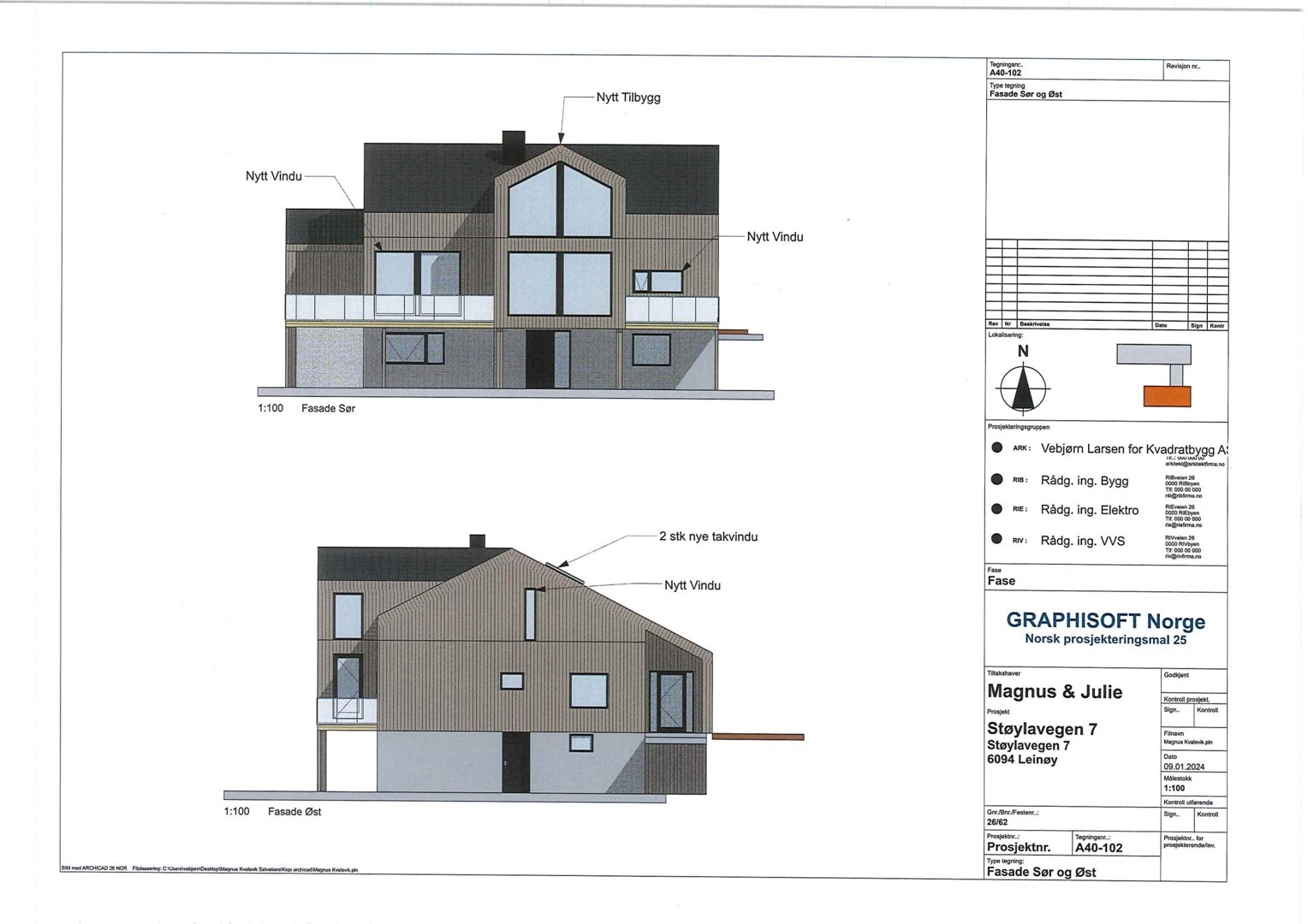
Fasader

Enebolig

Sør
Materiale
Tre
Taktype
Saltak
Vinduer
6
Dører
1
Balkonger
2
Synlige etasjer
2
Øst
Materiale
Tre
Taktype
Saltak
Vinduer
4
Dører
1
Balkonger
1
Synlige etasjer
2

Hendelser

23.04.2026 Ferdigattest - Byggteknisk installasjon - Støylavegen 7 - gnr 26 bnr 62
09.04.2026 Søknad om ferdigattest 26/62 ferdigattest
11.12.2025 Løyve til tiltak - Byggteknisk installasjon - Støylavegen 7 - gnr 26 bnr 62
09.12.2025 Støylavegen 7 - Søknad om løyve i eit trinn - gnr 26 bnr 62 søknad