VerticalExtension Rammetillatelse Enebolig

Påbygg, fasadeendring og bruksendring på enebolig i Anchersens vei 99

📍 Anchersens vei 99 , 3043 DRAMMEN

Nøkkelinfo

Sakstype
Påbygg
Bygningstype
Enebolig
Bruksareal
120 m²
Boenheter
2
Kommune
Drammen
Fylke
Buskerud
Gnr / Bnr
20 / 361
Saksnummer
25/16676
Fase
Rammetillatelse

Om byggesaken

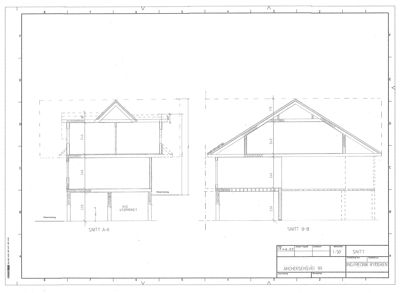
Prosjektet omfatter påbygg av en ark på en eksisterende enebolig med to boenheter i Anchersens vei 99. Det inkluderer bruksendring av kjellerrom fra tilleggsdel til hoveddel, samt fasadeendringer i sokkel med innsetting av nye vinduer og en dør. Påbygget ark er prosjektert med saltak og tilpasset boligens karakter, og det er utført tilstandsvurdering som bekrefter god kvalitet og samsvar med gjeldende krav. Tiltaket berører i liten grad byggets visuelle kvaliteter og styrker boligens arkitektoniske uttrykk. Arbeidene inkluderer endringer i bærende konstruksjoner for innsetting av vinduer, og det benyttes ansvarlige foretak for prosjektering, utførelse og kontroll.

Produkter og materialer

Fasade Dør i sokkel

🧱 Tre/isolerglass

Antall: 1

Ny dør i kjellerfasade øst

Innsetting av ny dør i sokkelmur for fasadeendring

Tømrer Montering av trekonstruksjoner

🧱 Tre

Utførelse av tømrerarbeid og montering av trekonstruksjoner for påbygg og fasadeendring

Tømrerarbeid knyttet til påbygg og fasadeendring

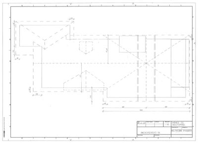
Tak Påbygg ark med saltak

🧱 Trekonstruksjon med takstein

Antall: 1

Påbygg av ark med saltak på boligens vestside, høyere gesimshøyde enn tidligere

Påbygg av ark med trekonstruksjon og saltak, tilpasset eksisterende bolig

Isolasjon Isolasjon rundt nye vinduer og dør

🧱 Isolasjon

Isolasjon for å sikre energikrav ved nye vinduer og dør i sokkel

Isolasjon rundt nye bygningsåpninger

Grunnarbeid Hulltaking i lecamur

🧱 Leca

Innsetting av vinduer og dør krever hulltaking i lecamur i sokkel

Arbeid med hulltaking i mur for innsetting av vinduer og dør

Maling Utvendig maling av fasade

🧱 Maling

Maling av nye og berørte fasadeflater i treverk

Overflatebehandling av fasade etter påbygg og fasadeendring

Fasade Vinduer i sokkel

🧱 Tre/isolerglass

Antall: 4

Nye vinduer i kjellerfasade øst og nord, inkludert 3 vinduer og 1 dør i sokkelmur

Innsetting av nye vinduer og dør i sokkelmur for fasadeendring og bruksendring

Elektro Elektrisk installasjon for nye vinduer og dør

Elektrisk arbeid for belysning og eventuelle brytere ved nye vinduer og dør

Elektroinstallasjon knyttet til fasadeendring

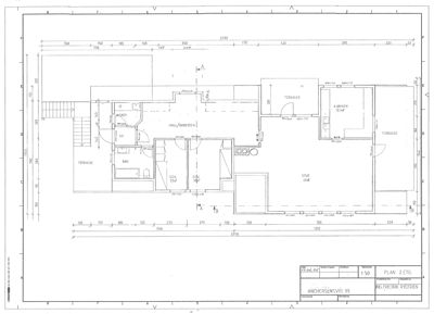
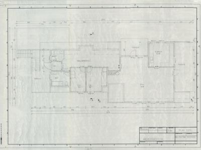
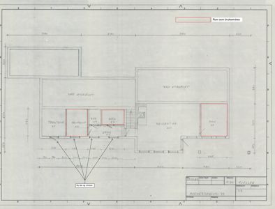
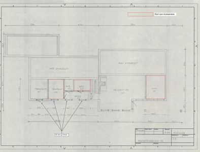
Plantegning

Enebolig 120.5 m²

Etasje 2 120.5 m²

Rom Areal Vinduer Dører
Stue 201 43.0 m² 3 1
Kjøkken 202 12.6 m² 1 1
Sov 203 10.0 m² 1 1
Sov 204 7.5 m² 1 1
Bad 205 0.0 m² 0 1
Vaskerom 206 0.0 m² 0 1
Hall/Arbeidsrom 207 0.0 m² 0 2

Takutspring 0.0 m²

Etasje 0 0.0 m²

Rom Areal Vinduer Dører

Villa Roth og Erik Rødøyren 200.0 m²

Etasje 1 200.0 m²

Rom Areal Vinduer Dører
Stue 101 50.0 m² 1 2
Kjøkken 102 10.0 m² 3 1
Vaskerom 103 4.0 m² 0 1
Garderobe 104 2.0 m² 0 1
Bad 105 6.0 m² 0 1
Soverom 1 106 11.0 m² 1 1
Soverom 2 107 6.0 m² 1 1
Soverom 3 108 6.0 m² 1 1
Gang 109 10.0 m² 0 4
Garasje 110 24.0 m² 1 1
Bod 111 8.0 m² 1 1

Kjeller 106.2 m²

Etasje 0 106.2 m²

Rom Areal Vinduer Dører
Tekn.rom 001 6.4 m² 0 1
Trimrom 002 5.8 m² 0 1
Bod 003 1.7 m² 0 1
BHD 004 3.3 m² 0 1
Gang 005 4.0 m² 0 2
Peisestue 006 21.0 m² 3 1
Sov. 007 8.7 m² 1 1

Fasader

Enebolig

Øst
Materiale
Tre
Taktype
Saltak
Vinduer
5
Dører
1
Balkonger
1
Synlige etasjer
2
Nord
Materiale
Tre
Taktype
Saltak
Vinduer
16
Dører
1
Balkonger
1
Synlige etasjer
2

Generasjonsbolig

Øst
Materiale
Tre
Taktype
Saltak
Vinduer
5
Dører
1
Synlige etasjer
2
Sør
Materiale
Tre
Taktype
Saltak
Vinduer
11
Dører
1
Balkonger
1
Synlige etasjer
2

Hendelser

13.04.2026 Anchersens vei 99, supplering av søknad
29.08.2025 Anchersens vei 99, tillatelse til bruksendring fra tilleggsdel til hoveddel, påbygg og fasadeendring
07.07.2025 Anchersens vei 99 Supplering av søknad 20/361
06.06.2025 Anchersens vei 99, vi trenger flere opplysninger for å behandle søknaden din
05.05.2025 Anchersens vei 99 Søknad om tillatelse i ett trinn 20/361