VerticalExtension Soeknad Enebolig

Påbygg, tilbygg og garasje på Bakkevei 18, Tvedestrand

📍 Bakkevei 18 , 4900 TVEDESTRAND

Nøkkelinfo

Sakstype
Påbygg
Bygningstype
Enebolig
Bruksareal
260 m²
Boenheter
1
Kommune
Tvedestrand
Fylke
Agder
Gnr / Bnr
29 / 33
Saksnummer
2026/1601
Fase
Søknad

Om byggesaken

Ny påbygg over hele boligens grunnplan med én ny etasje på 132,8 m² BRA, samt et mindre tilbygg/utestue på 15,7 m². Det oppføres en dobbel garasje med bod på totalt 63 m² BRA med tilhørende ny innkjørsel og terrengoppfylling. Terrengarbeider inkluderer oppfylling for garasje og innkjørsel, samt forstøtningsmurer i naturstein med høyde opptil 1,5 meter. Boligen får ny terrasse ut fra 2. etasje med bro til utestue, og overbygd inngangsparti med søylegang. Takvinkelen endres fra ca. 20 til 25 grader, og materialbruk viderefører eksisterende mørke trepanel og detaljer. Prosjektet inkluderer også forbedret drenering rundt boligen for å sikre tørre forhold i kjeller. Garasjen har flatt pulttak og samme material- og fargebruk som boligen. Terrenginngrepene er planlagt innenfor regulerte rammer og med hensyn til naboforhold og skredfare.

Produkter og materialer

VVS Sanitærinstallasjoner for våtrom

Oppgradering og endring av våtrom i bolig

Sanitærarbeid i eksisterende og nye våtrom

Grunnarbeid Terrengoppfylling og drenering

Oppfylling med masser for garasje og innkjørsel, forbedret drenering rundt bolig, forstøtningsmurer i naturstein opptil 1,5 m høyde

Terrengarbeider for garasje, innkjørsel og drenering

Elektro Ventilasjonssystem

Skap for balansert ventilasjon plassert i grovkjøkkenområde

Ventilasjon for bolig

Pipe Ny pipe/peis

Antall: 1

Ny pipe vist i snitttegninger

Peis og pipe i bolig

Tak Saltak og pulttak

Takvinkel endres fra ca. 20 til 25 grader på bolig, garasje med flatt pulttak

Nytt tak på påbygg og garasje

Garasjeport Dobbel garasjeport

Antall: 1

Garasjeport til dobbel garasje

Mur Forstøtningsmur i naturstein

🧱 Naturstein

Murer opptil 1,5 meter høyde, delvis nær nabogrense

Forstøtningsmurer for terrengoppfylling

Rekkverk Rekkverk ved terrenghøyder over 0,5 m

Rekkverk ved oppfylling og terrenghøyder over 0,5 meter

Sikkerhetsrekkverk ved terrengendringer

Tømrer Trekonstruksjoner for påbygg og tilbygg

🧱 Tre

Påbygg over eksisterende bolig, tilbygg utestue, overbygd inngangsparti med søylegang

Tømrerarbeid for påbygg, tilbygg og inngangsparti

Fasade Trepanel kledning

🧱 Malt tre, mørk farge

Eksisterende mørk farge videreføres på kledning, lister, gesimser, beslag og nedløp

Fasade kledning og detaljer for påbygg og tilbygg

Dører Ytterdører og terrassedør

Antall: 9

Dører til bolig, utestue, bod og garasje

Terrasse Terrasse med bro og utebod under

Antall: 1

Terrasse ut fra 2. etasje med bro til utestue, utebod under terrasse

Ny terrasse med tilhørende utebod

Vinduer Fasadevindu

🧱 Trelags glass, trekarmer

Antall: 14

Nye og eksisterende vinduer i boligets 2 etasjer

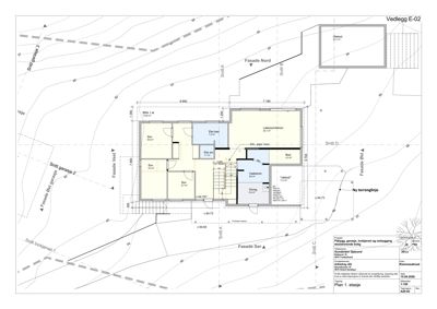
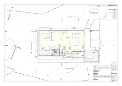
Plantegning

Enebolig 259.8 m²

Etasje 1 110.8 m²

Rom Areal Vinduer Dører
Lekerom/Allrom 101 24.1 m² 2 1
Bod 102 4.3 m² 0 1
Vaskerom 103 8.6 m² 0 1
Grovg. 104 6.4 m² 0 1
Utebod 105 11.3 m² 0 1
Eks bad 106 7.2 m² 0 1
Eks wc 107 1.7 m² 0 1
Sov 108 9.9 m² 1 1
Sov 109 9.3 m² 1 1
Sov 110 6.7 m² 1 1

Etasje 2 149.0 m²

Rom Areal Vinduer Dører
Tv-stue 201 16.2 m² 1 1
Stue/spis 202 54.5 m² 1 1
Soverom 203 15.8 m² 1 1
Bad 204 5.9 m² 0 1
Kjøkken 205 15.9 m² 1 1
Kontor 206 4.2 m² 1 1
Matbod 207 6.8 m² 1 1

Fasader

Eksisterende bolig

Sør
Materiale
Tre
Taktype
Saltak
Vinduer
2
Dører
2
Synlige etasjer
1
Øst
Materiale
Tre
Taktype
Saltak
Vinduer
1
Dører
0
Synlige etasjer
1

Enebolig

Nord
Materiale
Tre
Taktype
Saltak
Høyde
6.5 m
Mønehøyde
7.2 m
Vinduer
5
Dører
1
Balkonger
1
Synlige etasjer
2
Sør
Materiale
Tre
Taktype
Saltak
Høyde
6.5 m
Mønehøyde
7.2 m
Vinduer
3
Dører
1
Synlige etasjer
2

Garasje

Ukjent
Materiale
Tre
Taktype
Flatt tak
Høyde
2.6 m
Vinduer
0
Dører
1
Synlige etasjer
1

Hendelser

20.04.2026 Bakkevei 18 - Søknad om rammetillatelse til ombygging, påbygg, terrengarbeider og garasje