VerticalExtension Soeknad Enebolig

Påbygg og fasadeendring på enebolig i Dalavikvegen 93

📍 Dalavikvegen 93 , 5574 SKJOLD

Nøkkelinfo

Sakstype
Påbygg
Bygningstype
Enebolig
Bruksareal
245 m²
Boenheter
1
Kommune
Vindafjord
Fylke
Rogaland
Gnr / Bnr
160 / 13
Saksnummer
2026/1015
Fase
Søknad

Om byggesaken

Påbygg av ny etasje på eksisterende enebolig i Dalavikvegen 93 med tilhørende fasadeendringer. Bygget får en total grunnflate på ca. 245 m² og består av to etasjer med saltak og trekledning. Prosjektet inkluderer utvidelse av stue- og lekeareal, tilbygg under eksisterende terrasse, og tilpasning av fasader med nye vinduer og dører. Det er planlagt en ny ringmur og dekke, samt montering av trekonstruksjoner. Fasadene får flere balkonger og garasjeporter, og det er lagt vekt på estetisk tilpasning til eksisterende bygg og omgivelser. Bygget inneholder blant annet stue/kjøkken, flere soverom, bad, vaskerom, kino, grovkjøkken, carport og uteplass.

Produkter og materialer

Gulv Innvendige gulv

Innvendige gulv i påbygg, materialvalg ikke spesifisert

Trapper Innvendig trapp

🧱 Tre

Antall: 1

Innvendig trapp mellom etasjer

Trapp for adkomst til ny etasje

Vinduer Fasadevindu

🧱 Tre eller aluminium, 3-lags energiglass

Antall: 28

Nye vinduer i fasader, antall ca. 28 fordelt på alle fasader

Vinduer til fasader i ny etasje og påbygg, energiglass

Elektro Elektrisk anlegg

Elektriske installasjoner i påbygg

VVS Vann og avløp

Ingen ny innlagt vann, men tilpasning til eksisterende anlegg

VVS-installasjoner til påbygg

Fasade Trekledning

🧱 Tre

Fasader i tre med saltak, tilpasset eksisterende bygg

Kledning av fasader med treverk, tilpasning til eksisterende fasadeuttrykk

Dører Ytterdører og balkongdører

🧱 Tre eller aluminium med glass

Antall: 7

Ytterdører og balkongdører i fasader, inkludert skyvedør til terrasse

Dører til fasader og balkonger i påbygg

Terrasse Takterrasse og platting

🧱 Tre

Antall: 2

Takterrasse på ca. 30 m² og plattinger på uteareal

Utendørs terrassearealer i tilknytning til påbygg

Betong Ringmur og dekke

🧱 Betong

Oppføring av ringmur og dekke for ny etasje

Fundamentering og dekke for påbygg

Tak Saltak

🧱 Tre og taktekking

Saltak på ny etasje, tilpasset eksisterende takform

Taktekking og konstruksjon for ny etasje med saltak

Bad Sanitærinstallasjoner

Bad i påbygg med nødvendige VVS-installasjoner

Garasjeport Garasjeport

Antall: 2

Garasjeporter på fasade nordøst og sørvest

Porter til carport/garasje

Tømrer Trekonstruksjon

🧱 Tre

Montering av trekonstruksjoner for påbygg

Bærende trekonstruksjoner for ny etasje

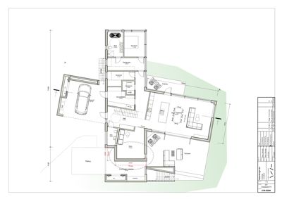
Plantegning

Enebolig 156.6 m²

Etasje 1 156.6 m²

Rom Areal Vinduer Dører
Stue / Kjøkken 101 53.2 m² 2 1
Platting 102 0.0 m² 1 1
Terrasse 103 0.0 m² 0 0
Hall 104 15.4 m² 0 3
Kino 105 17.8 m² 0 1
WC 106 3.5 m² 0 1
Grovkjøkken 107 10.3 m² 0 1
Vaskerom 108 3.2 m² 0 1
Soverom 109 7.1 m² 1 1
Garderobe 110 10.4 m² 0 2
Soverom 111 11.1 m² 1 1
Bad 112 8.7 m² 0 1
Carport 113 36.1 m² 0 1
Bod 114 0.0 m² 0 1
Bod 115 0.0 m² 0 1
Utekjøkken 116 0.0 m² 0 0
Overbygget uteplass 117 15.1 m² 0 0

Fasader

Enebolig

Sør
Materiale
Tre
Taktype
Saltak
Vinduer
5
Dører
1
Balkonger
1
Synlige etasjer
2
Vest
Materiale
Tre
Vinduer
4
Dører
1
Balkonger
1
Synlige etasjer
2
Nordøst
Materiale
Tre
Taktype
Saltak
Vinduer
6
Dører
1
Synlige etasjer
2
Sørøst
Materiale
Tre
Vinduer
6
Dører
2
Balkonger
1
Synlige etasjer
2
Sørvest
Materiale
Tre
Taktype
Saltak
Vinduer
5
Dører
1
Balkonger
1
Synlige etasjer
2
Nordvest
Materiale
Tre
Vinduer
4
Dører
1
Balkonger
1
Synlige etasjer
2

Hendelser

16.04.2026 Dalavikvegen 93 Søknad om tillatelse i ett trinn 160/13