VerticalExtension Ferdigattest Enebolig

Påbygg og bruksendring i enebolig, Dalveien 68, Vollen

📍 Dalveien 68 , 1391 VOLLEN

Nøkkelinfo

Sakstype
Påbygg
Bygningstype
Enebolig
Bruksareal
188 m²
Boenheter
1
Kommune
Asker
Fylke
Akershus
Gnr / Bnr
70 / 80
Saksnummer
20/4010
Fase
Ferdigattest

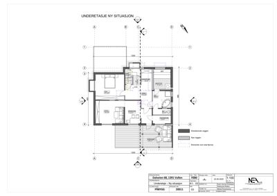
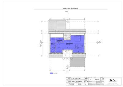
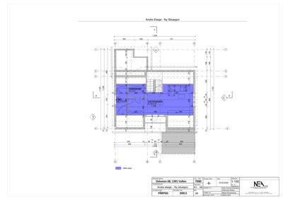
Om byggesaken

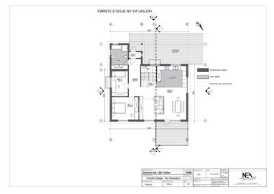
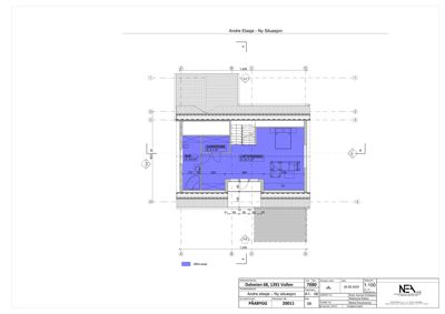
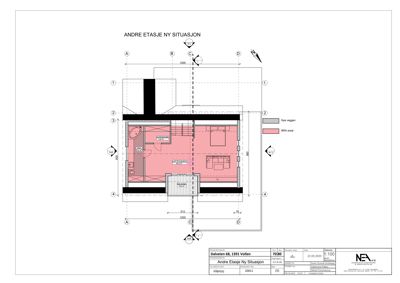
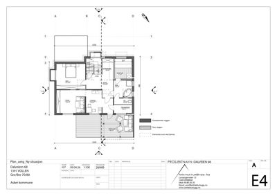
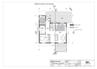
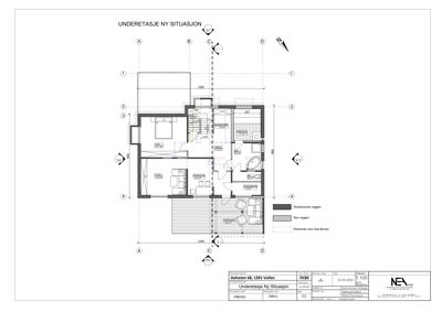
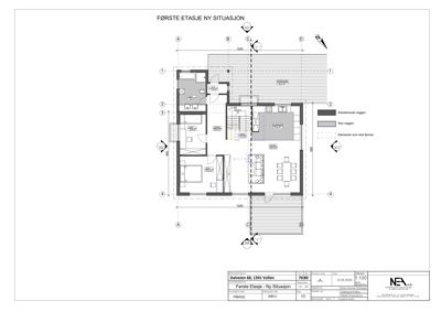
Enebolig på Dalveien 68 i Vollen med totalt 188 m² BRA over to plan og underetasje. Prosjektet omfatter påbygg med ny 2. etasje med økt takvinkel til 40 grader, innredet loftstue og soverom, samt bruksendring av underetasje fra tilleggsdel til hoveddel boligformål. Bygget har saltak tekket med takstein, fasader i tre med malt mur, og omfattende terrasser på ca. 108 m² i 1. etasje og 29 m² i underetasje. Underetasjen inneholder blant annet bad, badstue, teknisk rom, garderobe, bod, og utleiedel med egen inngang, kjøkken og bad. Det er etablert dobbelgarasje fra 2016 med saltak og kledning i tre. Bygget har elektrisk oppvarming med varmekabler, peisovn og varmepumpe. Prosjektet er ferdig prosjektert, med ansvarlig søker og prosjekterende, og det er søkt om midlertidig brukstillatelse og ferdigattest. Det foreligger tilstandsrapport som beskriver byggets tekniske tilstand og behov for modernisering, samt dokumentasjon på ansvarsrett og godkjenninger. Det er registrert mindre endringer i fasader og vinduer som er dokumentert og godkjent. Eiendommen ligger i et etablert boligområde med gode sol- og utsiktsforhold, nærhet til skole og offentlig kommunikasjon.

Arbeidsomfang

- Endring av dør/vindu i 1. etasje mot øst på grunn av konflikt med eksisterende bæringer (dør flyttet sørover, vinduskonfigurasjon endret).

Produkter og materialer

Fasade Tre kledning og malt mur

🧱 Tre og malt mur

Fasader i tre med malt mur, mindre endringer i vinduer og dører dokumentert

Fasadeendringer i forbindelse med påbygg og bruksendring

Trapper Innvendig trapp i tre med håndløper

🧱 Tre

Antall: 1

Innvendig trapp med furu trappefornyer og hvitmalt håndløper, mangler håndløper på en side

Innvendig trapp mellom etasjer

Gulv Parkett, laminat, fliser med varmekabler

🧱 Parkett, laminat, fliser

3-stavs parkett, laminat i underetasje og utleiedel, fliser med varmekabler i entre og bad

Innvendige gulvflater med varmekabler på bad og entre

Elektro Sikringsskap og elektrisk anlegg

Sikringsskap med automatsikringer, oppgradert i 2016/2017, installert ny kurs til garasje og utelys

Elektrisk anlegg i bolig og garasje

Pipe Peisovn og pipe med stålrør

Antall: 1

Peisovn Jøtul 2015 med gnistplate, nytt stålrør i pipe fra 2015

Ildsted og pipe i stue

Varme Elektrisk oppvarming, peisovn og varmepumpe

Elektrisk oppvarming med varmekabler i entre og bad, peisovn fra 2015, varmepumpe montert i stue

Oppvarmingsløsninger i boligen

Tak Saltak

🧱 Tegl takstein

Takvinkel 40 grader, takstein skiftet i 2001, takstoler nykonstruert for innredet loft

Nytt saltak med takstein, økt takvinkel for innredet loft

VVS Sanitærinstallasjoner og varmtvannsbereder

Varmtvannsbereder fra 2003, vann- og avløpsrør i kobber og støpejern, nyere sanitærinstallasjoner i bad

VVS-installasjoner i bolig og utleiedel

Garderobe Skyvedørsgarderobe og garderoberom

Skyvedørsgarderobe montert i hovedsoverom, garderoberom i underetasje og 2. etasje

Innvendige garderobeløsninger

Garasje Dobbelgarasje med saltak og kledning i tre

🧱 Tre, saltak med takstein

Antall: 1

Dobbelgarasje oppført i 2016 med støpt såle, isolert port med elektrisk åpner

Frittstående dobbelgarasje på eiendommen

Dører Ytterdører og terrassedører i tre med glassfelt

🧱 Tre med glassfelt

Antall: 7

Ytterdører og skyvedører til terrasser, inkludert utleiedel

Dører til hoveddel og utleiedel

Vinduer Isolerglassvinduer i trekarmer

🧱 Trekarmer, 2- og 3-lags isolerglass

Antall: 14

Vinduer fra 1977/85/94 med 3-lags isolerglass, nyere vinduer fra 2012 og 2014 med 2-lags isolerglass, punktert vindu i utleiedel

Vinduer i hoved- og underetasje, inkludert utleiedel

Bad Bad med fliser, varmekabler, dusjkabinett og baderomsinnredning

🧱 Fliser, varmekabler, baderomsinnredning

Antall: 3

Bad i 1. etasje pusset opp i 2012, bad i underetasje eldre type med oppgradert innredning fra 2014/2017, bad i utleiedel med dusjkabinett og eldre støpejernsluk

Bad i hoveddel, underetasje og utleiedel med varierende standard

Terrasse Terrasse med terrassebord og rekkverk i tre

🧱 Tre

Antall: 2

Terrasse på ca. 108 m² i 1. etasje og terrasse på ca. 29 m² i underetasje, delvis overbygget med benker og bord

Utendørs terrassearealer tilknyttet bolig og utleiedel

Fasader

Enebolig

Sør-Vest
Materiale
Tre
Taktype
Saltak
Takmat.
Tegl
Høyde
4.8 m
Mønehøyde
8.7 m
Vinduer
3
Dører
1
Synlige etasjer
1
Sør-Øst
Materiale
Tre
Taktype
Saltak
Takmat.
Tegl
Høyde
4.8 m
Mønehøyde
8.9 m
Vinduer
3
Dører
1
Balkonger
1
Synlige etasjer
2
Nord-Øst
Taktype
Saltak
Takmat.
Tegl
Høyde
4.7 m
Mønehøyde
8.0 m
Vinduer
6
Dører
1
Balkonger
1
Synlige etasjer
2
Nord-Vest
Materiale
Tre
Taktype
Saltak
Høyde
5.0 m
Mønehøyde
8.9 m
Vinduer
4
Dører
1
Balkonger
1
Synlige etasjer
2
Sørvest
Materiale
Tre
Taktype
Saltak
Vinduer
3
Dører
0
Synlige etasjer
1
Nordøst
Materiale
Tre
Taktype
Saltak
Vinduer
1
Dører
0
Synlige etasjer
1
Nordvest
Materiale
Tre
Taktype
Saltak
Vinduer
2
Dører
1
Synlige etasjer
1

Garasje

Sør-Vest
Materiale
Tre
Taktype
Valmtak
Høyde
3.5 m
Vinduer
0
Dører
0
Synlige etasjer
1

Hendelser

15.04.2026 70/80 Dalveien 68 - Søknad om midlertidig brukstillatelse
08.04.2026 70/80 Dalveien 68 - Supplering av søknad dispensasjon
25.03.2026 70/80 Påbygg og bruksendring fra tilleggsdel til hoveddel i underetasje - Manglende ferdigattest eller midlertidig brukstillatelse ferdigattest
27.11.2020 70/80 Ufullstendig søknad - Mer dokumentasjon - Påbygg og bruksendring fra tilleggsdel til hoveddel i underetasje søknad
27.11.2020 70/80 Tillatelse - Påbygg og bruksendring fra tilleggsdel til hoveddel i underetasje
13.11.2020 70/80 Svar på mangelbrev - Påbygg og bruksendring fra tilleggsdel til hoveddel i underetasje
22.10.2020 70/80 Mangler tredje gang - Påbygg og bruksendring fra tilleggsdel til hoveddel i underetasje
25.09.2020 70/80 Manglende dokumentasjon - Påbygg og bruksendring fra tilleggsdel til hoveddel i underetasje
10.09.2020 70/70 Supplerende dokumentasjon - Påbygg og bruksendring fra tilleggsdel til hoveddel i underetasje
27.08.2020 70/80 Svarbrev ufullstendig søknad - Påbygg og bruksendring søknad
17.07.2020 70/80 Fremdeles ufullstendig søknad - Påbygg og bruksendring fra tilleggsdel til hoveddel i underetasje søknad
14.07.2020 70/80 Ufullstendig søknad - Påbygg og bruksendring fra tilleggsdel til hoveddel i underetasje søknad
02.06.2020 70/80 Kvitteringsbrev - Bruksendring fra tilleggsdel til hoveddel underetasje
29.05.2020 70/80 Søknad om bruksendring fra tilleggsdel til hoveddel underetasje - del 1 av 2 søknad
29.05.2020 70/80 Søknad om bruksendring fra tilleggsdel til hoveddel underetasje - del 2 av 2 søknad