VerticalExtension Soeknad Enebolig

Påbygg og tilbygg på enebolig i Finholtvegen 23

📍 Finholtvegen 23 , 2067 JESSHEIM

Nøkkelinfo

Sakstype
Påbygg
Bygningstype
Enebolig
Bruksareal
452 m²
Boenheter
1
Kommune
Ullensaker
Fylke
Akershus
Gnr / Bnr
136 / 106
Saksnummer
2026/3625
Fase
Søknad

Om byggesaken

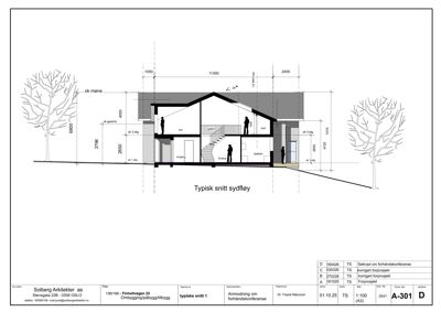
Eksisterende enebolig på Finholtvegen 23 utvides med et tilbygg på 83 m² i grunnflate, som øker bebygd areal (BYA) til 235 m². I tillegg bygges det på en ny etasje over tilbygget, noe som gir totalt 451,7 m² BRA fordelt på kjeller, 1. og 2. etasje. Bygget har saltak og trekledning, med gesims- og mønehøyder på henholdsvis 2,4 m og 4,5 m. Planløsningen inkluderer flere soverom, bad, stuer, kjøkken, teknisk rom og bodarealer. Det planlegges også flytting av eksisterende garasje på 65 m². Eiendommen ligger i LNF-område med byggeforbud, og tiltaket krever dispensasjon. Bygget har en trapp og flere vinduer og dører fordelt på fasadene.

Produkter og materialer

Isolasjon Vegger og tak

Isolasjon i vegger og tak for ny bygningsmasse

Isolasjon for varme- og lydisolering

Maling Innvendig og utvendig maling

Overflatebehandling av treverk og innvendige flater

Maling og overflatebehandling av fasade og innvendige flater

VVS Sanitær og varme

Bad og vaskerom i planløsning, inkludert dusj/WC og vaskerom

VVS-installasjoner for sanitær og varme

Trapper Innvendig trapp

Antall: 1

En trapp mellom etasjer

Innvendig trapp for etasjeadkomst

Vinduer Fasadevindu

Antall: 14

Vinduer fordelt på fasader: 1 vest, 1 sør, 4 øst, 5 nord, samt flere i etasjer

Fasadevinduer i tre eller annet materiale iht tegninger

Tak Saltak

Saltak på hele bygget

Saltak som takkonstruksjon

Elektro Elektrisk anlegg

Elektriske installasjoner i hele bygget

Elektroinstallasjoner for belysning, strøm og tekniske systemer

Dører Ytterdører

Antall: 5

Dører på alle fasader og etasjer, totalt 5 ytterdører

Ytterdører tilpasset fasade og planløsning

Pipe Peisovn og pipe

Antall: 1

Peisovn i kjeller og stue, pipe på fasade

Pipe og peisovn for oppvarming

Grunnarbeid Fundamentering og grunnmur

Grunnarbeid for tilbygg og påbygg, inkludert flytting av garasje

Fundamentering og grunnarbeid for ny bygningsmasse og garasjeplassering

Terrasse Terrasse

Antall: 1

Terrasse på 28 m² i 1. etasje

Utendørs terrasseareal

Fasade Trekledning

🧱 Tre

Fasader i tre med saltak, gesims 2,4 m, møne 4,5 m

Trekledning på alle fasader med saltak

Betong Kjeller og fundament

Betongkonstruksjoner i kjeller og fundament

Betongarbeid for kjeller og fundament

Garasjeport Garasjeport

Antall: 1

Eksisterende garasje på 65 m² flyttes på tomten

Garasjeport for biloppstilling

Tømrer Bærekonstruksjon og innvendig arbeid

🧱 Tre

Tømrerarbeid for påbygg og tilbygg i tre

Tømrerarbeid for bærekonstruksjon, vegger, tak og innvendige arbeider

Plantegning

Enebolig 451.7 m²

Etasje 0 167.6 m²

Rom Areal Vinduer Dører
Hobbyrom 001 15.4 m² 0 1
Ved 002 0.0 m² 0 1
Kjølerom 003 5.1 m² 0 1
Hush. bod 004 6.7 m² 0 1
Dusj/WC 005 4.3 m² 0 1
Vaskerom 006 7.4 m² 0 1
Gjesterom 007 12.1 m² 1 1
Klesbod 008 10.9 m² 0 1
Hall 009 17.2 m² 0 3
Peisestue 010 40.6 m² 0 1

Etasje 1 139.1 m²

Rom Areal Vinduer Dører
STUE 101 36.0 m² 1 1
KJØKKEN 102 11.9 m² 1 1
SPISESTUE 103 12.0 m² 1 1
SOVEROM 104 9.5 m² 1 1
SOVEROM 105 11.6 m² 1 1
SOVEROM 106 9.9 m² 1 1
BAD 107 6.6 m² 0 1
WC 108 2.1 m² 0 1
HALL 109 13.5 m² 0 2
GANG 110 4.7 m² 0 1
V.F. 111 3.0 m² 0 1

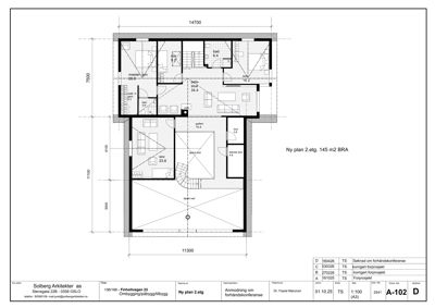
Etasje 2 145.0 m²

Rom Areal Vinduer Dører
Master soverom 201 26.8 m² 1 1
Walk-in gard 202 6.3 m² 1 1
Bad 203 2.8 m² 0 1
Soverom 204 9.2 m² 1 1
Pesis-stue 205 34.4 m² 2 1
Soverom 206 16.2 m² 1 1
Bad 207 6.4 m² 0 1
Galleri 208 16.8 m² 0 0
Soverom 209 23.8 m² 1 1
Bod 210 3.8 m² 0 1
Teknisk bod 211 4.8 m² 0 1

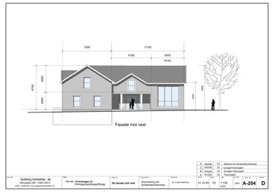
Fasader

Enebolig

Vest
Materiale
Tre
Taktype
Saltak
Høyde
2.4 m
Mønehøyde
4.5 m
Vinduer
1
Dører
1
Synlige etasjer
1
Sør
Materiale
Tre
Taktype
Saltak
Høyde
2.4 m
Mønehøyde
4.5 m
Vinduer
1
Dører
1
Synlige etasjer
1
Øst
Materiale
Tre
Taktype
Saltak
Høyde
2.4 m
Mønehøyde
4.5 m
Vinduer
4
Dører
1
Synlige etasjer
1
Nord
Materiale
Tre
Taktype
Saltak
Høyde
2.4 m
Mønehøyde
4.5 m
Vinduer
5
Dører
1
Synlige etasjer
1

Hendelser

17.04.2026 Anmodning om forhåndskonferanse - Gnr 136 bnr 106 - Finholtvegen 23 - Påbygg og tilygg - Forhåndskonferanse