VerticalExtension UnderBehandling Enebolig

Påbygg og fasadeendring på enebolig i Gamle Bordalsvegen 89, Voss

📍 Gamle Bordalsvegen 89 , 5700 VOSS

Nøkkelinfo

Sakstype
Påbygg
Bygningstype
Enebolig
Bruksareal
48 m²
Boenheter
1
Kommune
Voss
Fylke
Vestland
Gnr / Bnr
197 / 11
Saksnummer
2026/3733
Fase
Under behandling

Om byggesaken

Ny etasje på 48 m² bygges på eksisterende enebolig i Gamle Bordalsvegen 89, med fire nye soverom og et bodareal. Påbygget øker mønehøyden med 1 meter til totalt 7,2 meter og tilpasses eksisterende bygningskropp med saltak og trekledning. Det etableres også en ny terrasse ca. 2 meter over bakkenivå foran boligen. Fasadeendringer inkluderer justering av vindusplasseringer for bedre lysforhold og funksjonalitet. Bygget har to etasjer i dag, og påbygget vil gi en tredje etasje på deler av huset. Materialvalg og utførelse følger lokal byggeskikk.

Produkter og materialer

VVS Vann og avløp

Forberedelse for fremtidig bad i ny etasje (rommet brukes som bod foreløpig)

VVS-installasjon for fremtidig bad, ikke ferdigstilt nå

Tak Saltak

🧱 Tre med taktekking

Saltak med økt mønehøyde fra 6,2 til 7,2 meter

Nytt saltak på påbygg

Vinduer Fasadevindu

Antall: 14

Justert plassering av vinduer i ny etasje og fasadeendringer

Nye og flyttede vinduer for bedre lys og funksjon

Dører Ytterdører

Antall: 3

Dører i fasader sør, øst og vest

Nye ytterdører i forbindelse med påbygg og fasadeendring

Tømrer Trekonstruksjoner

🧱 Tre

Montering av trekonstruksjoner for påbygg

Tømrerarbeid for påbygg og terrasse

Terrasse Åpen terrasse

🧱 Tre

Antall: 1

Terrasse ca. 2 meter over bakkenivå, plassert foran boligen

Ny terrasse som uteoppholdsareal

Fasade Trekledning

🧱 Tre

Tilpasses eksisterende bygningskropp og lokal byggeskikk

Ny trekledning på påbygg og fasadeendringer

Trapper Innvendig trapp

Antall: 1

Trapp til ny etasje

Innvendig trapp for adkomst til påbygg

Elektro Elektrisk installasjon

Elektrisk anlegg i ny etasje og terrasse

Elektrisk installasjon for belysning og stikkontakter

Maling Utvendig og innvendig maling

Maling tilpasset eksisterende byggeskikk

Overflatebehandling av fasade og innvendige flater

Isolasjon Bygningsisolasjon

Isolasjon i vegger og tak i ny etasje

Isolasjon for energieffektivitet og komfort

Grunnarbeid Fundamentering og grunnmur

Fundamentering for påbygg og terrasse, hensyn til vannrør og byggegrense

Grunnarbeid for påbygg og terrasse, inkludert fjerning av platting nær husvegg

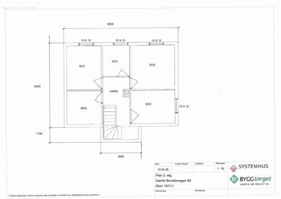
Plantegning

Enebolig 48.0 m²

Etasje 2 48.0 m²

Rom Areal Vinduer Dører
SOV 201 12.0 m² 1 1
SOV 202 12.0 m² 1 1
SOV 203 12.0 m² 1 1
SOV 204 12.0 m² 1 1
BOD 205 12.0 m² 0 1
GANG 206 0.0 m² 0 0

Fasader

Enebolig

Sør
Materiale
Tre
Taktype
Saltak
Vinduer
2
Dører
1
Synlige etasjer
2
Nord
Materiale
Tre
Taktype
Saltak
Vinduer
3
Dører
0
Balkonger
1
Synlige etasjer
2
Øst
Materiale
Tre
Taktype
Saltak
Vinduer
4
Dører
1
Synlige etasjer
2
Vest
Materiale
Tre
Taktype
Saltak
Vinduer
6
Dører
1
Balkonger
1
Synlige etasjer
3

Hendelser

20.04.2026 Tilbakemeldinger om manglar - Endring av bygg - fasade - påbygg - gbnr. 197/11 - Gamle Bordalsvegen 89
14.04.2026 Søknad om løyve - endring av bygg - fasade - påbygg - gbnr. 197/11 - Gamle Bordalsvegen 89
13.04.2026 Stadfesting av motteken søknad - endring av bygg - fasade - påbygg - gbnr. 197/11 - Gamle Bordalsvegen 89