VerticalExtension Igangsettingstillatelse Enebolig

Påbygg og takvinkelendring på enebolig i Husafjellbakken 2, Ålgård

📍 Husafjellbakken 2 , 4331 ÅLGÅRD

Nøkkelinfo

Sakstype
Påbygg
Bygningstype
Enebolig
Bruksareal
106 m²
Boenheter
1
Kommune
Gjesdal
Fylke
Rogaland
Gnr / Bnr
7 / 577
Saksnummer
25/00996
Fase
Igangsettingstillatelse

Om byggesaken

Ny påbygging av loftet på en eksisterende enebolig i Husafjellbakken 2, Ålgård, med endring av takvinkel fra 35 til 10 grader for å øke arealet med full takhøyde. Loftet utvides mot sørøst på eksisterende søyler over terrasse, uten økning i fotavtrykk. Mønehøyden forblir uendret, mens gesimshøyden økes. Bygget får nye vinduer i hele loftsetasjen. Påbygget har et bruksareal på ca. 106 m², opp fra ca. 63 m². Materialer inkluderer papptekking på tak og liggende trekledning på fasader. Prosjektet omfatter også oppgradering av konstruksjonssikkerhet, membran i våtrom og rørarbeid. Hovedetasje og kjeller endres ikke.

Produkter og materialer

Grunnarbeid Fundamentering

Påbygg på eksisterende søyler, ingen nytt fundament oppgitt

Bruk av eksisterende søyler som fundament for påbygg

Gulv Innvendige gulv

Ikke spesifisert, men nødvendig for nytt loft og påbygg

Innvendige gulv i påbygg og loft

Tak Taktekking

🧱 Papp

Takvinkel endres fra 35 til 10 grader, papptekking på nytt tak

Taktekking med papp på nytt påbygg og endret takvinkel

Membran Membran i våtrom

Membranarbeid i våtrom utført av selvbygger

Membran i bad i påbygg

Elektro Elektrisk installasjon

Ikke spesifisert, men nødvendig for nytt påbygg

Elektriske installasjoner i påbygg

Trapper Innvendig trapp

Antall: 1

Eksisterende trapp beholdes, ingen endring oppgitt

Ingen ny trapp, eksisterende trapp i bolig

Dører Ytterdører

Antall: 3

Ytterdører i påbygg og fasade, standard dimensjoner 90x210 cm

Ytterdører til påbygg og fasadeendring

Fasade Kledning

🧱 Tre, liggende panel

Liggende trekledning på fasader, ny fasade mot nord og sør

Ny trekledning på påbygg og fasadeendring

VVS Sanitærinstallasjoner

Rørarbeid og sanitær i påbygg utført av selvbygger og Skårland Bygg AS

Sanitærinstallasjoner i påbygg

Isolasjon Tak- og veggisolasjon

Isolasjon i nytt loft og påbygg for energikrav

Isolasjon i tak og vegger i påbygg

Vinduer Fasadevindu

Antall: 10

Nye vinduer i hele loftsetasjen, størrelser fra 600x1200 til 1220x1220 mm

Nye fasadevinduer i påbygget loft

Tømrer Trekonstruksjoner

🧱 Tre

Påbygg på eksisterende søyler over terrasse, trekonstruksjoner utført av Skårland Bygg AS

Trekonstruksjoner for påbygg og takendring

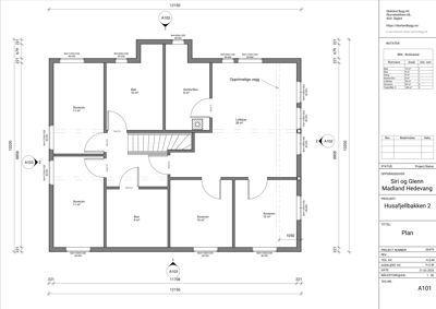
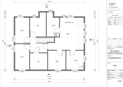
Plantegning

Enebolig 85.4 m²

Etasje 1 85.4 m²

Rom Areal Vinduer Dører
Stue 101 32.6 m² 2 1
Gang 102 8.5 m² 0 3
Kjøkken 103 14.2 m² 1 1
Bad 104 6.8 m² 0 1
Toalett 105 2.4 m² 0 1
Bod 106 9.0 m² 1 1
Soverom 107 10.0 m² 1 1
Soverom 108 10.0 m² 1 1
Bod 109 9.0 m² 1 1

Fasader

Enebolig

Nord-Vest
Materiale
Tre
Taktype
Flatt tak
Takmat.
Papp
Høyde
5.2 m
Vinduer
7
Dører
1
Balkonger
1
Synlige etasjer
2
Nord-Øst
Materiale
Tre
Taktype
Saltak
Høyde
5.2 m
Vinduer
6
Dører
2
Balkonger
1
Synlige etasjer
2
Sør-Øst
Materiale
Tre
Taktype
Saltak
Vinduer
3
Dører
1
Synlige etasjer
2
Sør-Vest
Materiale
Tre
Taktype
Saltak
Vinduer
3
Dører
1
Balkonger
1
Synlige etasjer
2

Hendelser

13.04.2026 25/00996-6 GODKJENT - søknad fra Glenn Hedevang om igangsettingstillatelse for påbygg til bolig, gnr. 7, bnr. 577, Husafjellbakken 2, Ålgård
10.04.2026 25/00996-15 Tilskudd fra fond til opphjelp av fisk - dekning av fiskeoppsyn 2025-2026, refusjon av oppsynsbåt og anskaffelse av drone
16.03.2026 25/00996-14 Søknad om tilskudd fra fond til opphjelp av fisk - dekning av fiskeoppsyn 2025-2026, refusjon av oppsynsbåt og anskaffelse av drone
16.02.2026 25/00996-13 Vedtekter for tilskudd fra fond til opphjelp av fisk i Kvina: Informasjon om justering av årlig beløp
12.02.2026 25/00996-12 Saksutskrift - Sira-Kvina konsesjonen: Fastsetting av vedtekter for fond til opphjelp av fisk
12.02.2026 25/00996-11 Saksprotokoll KST, 11022026, Sak 4/26, Sira-Kvina konsesjonen: Fastsetting av vedtekter for fond til opphjelp av fisk
28.01.2026 25/00996-10 Saksprotokoll F, 28012026, Sak 5/26, Sira-Kvina konsesjonen: Fastsetting av vedtekter for fond til opphjelp av fisk
19.12.2025 25/00996-9 Foreløpig svar - Søknad om tilskudd til fiskeoppsyn i Kvina
17.12.2025 25/00996-7 Søknad om tilskudd til fiskeoppsyn i Kvina
03.12.2025 25/00996-5 Høringssvar: Sira-Kvina konsesjonen - bruk av kr 50 000 til opphjelp av fisk
14.05.2025 25/00996-2 GODKJENT - søknad fra Glenn Hedevang om rammetillatelse for påbygg til bolig, gnr. 7, bnr. 577, Husafjellbakken 2, Ålgård
05.05.2025 25/00996-1 Søknad fra Glenn Hedevang om rammetillatelse for endring av takvinkel og utvidelse av areal på loft på gnr. 7, bnr. 577, Husafjellbakken 2, Ålgård