VerticalExtension Soeknad Enebolig

Påbygg vinterhage, bod og svalgang i Jenny Linds vei 5C, Bergen

📍 Jenny Linds vei 5A , 5146 FYLLINGSDALEN

Nøkkelinfo

Sakstype
Påbygg
Bygningstype
Enebolig
Bruksareal
32 m²
Boenheter
1
Kommune
Bergen
Fylke
Vestland
Gnr / Bnr
25 / 110
Saksnummer
BYGG-2026/12500
Fase
Søknad

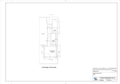
Om byggesaken

Ny påbygging av en vinterhage på 17,2 m², en bod på 6,1 m² og en svalgang på eksisterende terrasse ved enebolig i Jenny Linds vei 5C. Vinterhagen får skyvedør, og tiltaket innebærer en økning i bruksareal (BRA) på 32 m². Bygget er i to etasjer med totalt 252 m² boligareal, og påbygget plasseres på en eksisterende terrasse uten økning i areal som samler overvann. Bygget vil ha betongfundamenter og trefasade, og det er planlagt naturlig ventilasjon i boden uten mekanisk avtrekk. Tiltaket er i faresone for skred, og det foreligger skredfarevurdering. Sameiet har godkjent tiltaket, og det er søkt dispensasjon fra plankravet i kommuneplanen.

Produkter og materialer

Betong Terrasse og rampe

🧱 Betong

Eksisterende terrasse i betong som påbygget plasseres på

Betongterrasse som underlag for vinterhage, bod og svalgang

Tømrer Påbygg konstruksjon

🧱 Tre

Konstruksjon av påbygg vinterhage, bod og svalgang i tre

Tømrerarbeid for oppføring av påbygg i tre

Grunnarbeid Fundamentering og drenering

Fundamentering på eksisterende terrasse, drenering skal detaljprosjekteres før igangsetting

Grunnarbeid for påbygg på eksisterende terrasse, inkludert drenering og fundamentering

Ventilasjon Naturlig ventilasjon i bod

Ventilasjonsåpninger for naturlig gjennomlufting i bod, uten mekanisk avtrekk

Ventilasjonsløsning for bod med naturlig luftgjennomstrømning

Vinduer Skyvedør til vinterhage

Antall: 1

Skyvedør til vinterhage

Skyvedør for vinterhage som inngang og utgang

Tak Tak på vinterhage og svalgang

Tak på vinterhage og svalgang, håndtering av overvann via eksisterende drenering

Nytt tak på vinterhage og svalgang med avrenning til eksisterende terrasse og dreneringssystem

Fasade Trefasade

🧱 Tre

Fasade på vinterhage og bod i tre, tilpasset eksisterende bolig

Kledning av ny vinterhage, bod og svalgang i tre for å matche eksisterende bolig

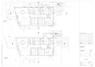
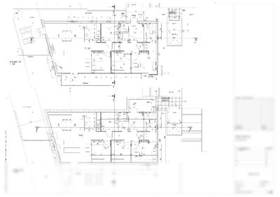
Plantegning

Enebolig 252.0 m²

Etasje 1 126.0 m²

Rom Areal Vinduer Dører
Stue 101 35.0 m² 1 1
Kjøkken 102 10.0 m² 0 0
Bad 103 8.5 m² 0 1
Gang 104 6.7 m² 0 2
Sove 1 105 13.0 m² 1 1
Sove 2 106 9.1 m² 1 1
Sove 3 107 11.8 m² 1 1
Entré 108 6.7 m² 0 1
Vaskerom 109 2.3 m² 0 1
Toalett 110 2.4 m² 0 1
Terrasse 111 55.3 m² 0 1

Etasje 2 126.0 m²

Rom Areal Vinduer Dører
Stue 201 35.0 m² 1 1
Kjøkken 202 10.0 m² 0 0
Bad 203 8.5 m² 0 1
Gang 204 6.7 m² 0 2
Sove 1 205 13.0 m² 1 1
Sove 2 206 9.1 m² 1 1
Sove 3 207 11.8 m² 1 1
Entré 208 6.7 m² 0 1
Vaskerom 209 2.3 m² 0 1
Toalett 210 2.4 m² 0 1
Terrasse 211 55.3 m² 0 1

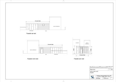
Fasader

Heis og trappehus

Sør-øst
Materiale
Betong
Taktype
Flatt tak
Vinduer
0
Dører
0
Synlige etasjer
1
Nord-vest
Materiale
Betong
Taktype
Flatt tak
Vinduer
0
Dører
0
Synlige etasjer
1
Sør-vest
Materiale
Betong
Vinduer
0
Dører
0
Synlige etasjer
0

Leilighet

Sør-vest
Materiale
Tre
Taktype
Flatt tak
Høyde
2.7 m
Vinduer
0
Dører
1
Synlige etasjer
1

Hendelser

14.04.2026 Jenny Linds vei 5C Søknad om rammetillatelse 25/110