Rendering
3D-visualisering av en planlagt hytte med mørk fasade, terrasse og omgivelser.
1 / 19
VerticalExtension
Igangsettingstillatelse
Enebolig
Påbygg og fasadeendring på enebolig i Knappenveien 43, Bergen
📍 Knappenveien 43 , 5151 STRAUMSGREND
Nøkkelinfo
- Sakstype
- Påbygg
- Bygningstype
- Enebolig
- Bruksareal
- 109 m²
- Boenheter
- 1
- Kommune
- Bergen
- Fylke
- Vestland
- Gnr / Bnr
- 28 / 56
- Saksnummer
- BYGG-2024/15893
- Fase
- Igangsettingstillatelse
Om byggesaken
Påbygg og takoppløft på eksisterende enebolig i Knappenveien 43, Bergen, med en total utvidelse av loftsarealet til 57,9 m². Påbygget inkluderer to takopplett som ikke overstiger dagens mønehøyde, med endret møneretning og økt mønehøyde på ca. 90 cm. Fasadeendringer omfatter justering av vinduer og dører på fasadene mot nord og vest, inkludert fjerning av en fransk dør og innsnevring av baderomsvindu. Bygget har saltak med teglstein og trekledning, og består av to etasjer med totalt ca. 109 m² BRA. Prosjektet inkluderer også endringer i innvendige rom som soverom, bad og loftsstue. Det er én trapp i bygget, og fasadene har flere vinduer og dører i treverk. Tak og vegger på påbygget er tekket med båndtekking i metall.
Produkter og materialer
Mur
Grunnmur
Grunnmur for påbygg
Isolasjon
Isolasjon i vegger og tak
Isolasjon for påbygg og takoppløft for å oppnå TEK17 krav
Gulv
Innvendige gulv
Gulv i påbygg og loftsstue, sannsynligvis parkett eller tilsvarende
Tømrer
Påbygg og takoppløft konstruksjon
🧱 Tre
Tømrerarbeid for påbygg og takoppløft
Fasade
Vinduer og dører
🧱 Tre
Endring av vinduer og dører på fasade mot nord og vest, inkludert fjerning av fransk dør og innsnevring av baderomsvindu
Fasadeendringer med nye vinduer og dører i treverk
VVS
Bad og vaskerom
VVS-installasjoner for nytt bad og vaskerom i påbygg
Elektro
Elektriske installasjoner
Elektriske installasjoner i påbygg og endrede rom
Tak
Båndtekking
🧱 Metall
Tak og vegger på påbygg tekket med båndtekking i metall
Taktekking for påbygg og takoppløft
Trapper
Innvendig trapp
Antall: 1
Innvendig trapp mellom etasjer
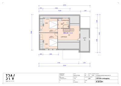
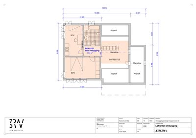
Plantegning
Enebolig 108.9 m²
Etasje 2 57.9 m²
| Rom | Areal | Vinduer | Dører |
|---|---|---|---|
| Sov 201 | 16.5 m² | 3 | 1 |
| Sov 202 | 16.5 m² | 3 | 1 |
| Bad 203 | 9.0 m² | 0 | 1 |
| Loftsstue 204 | 16.5 m² | 0 | 1 |
| Kryp 205 | 5.0 m² | 0 | 0 |
| Kryp 206 | 5.0 m² | 0 | 0 |
| Kryp 207 | 5.0 m² | 0 | 0 |
Etasje 0 51.0 m²
| Rom | Areal | Vinduer | Dører |
|---|---|---|---|
| LOFTSTUE 001 | 18.0 m² | 0 | 1 |
| SOV 002 | 14.3 m² | 1 | 1 |
| SOV 003 | 16.7 m² | 1 | 1 |
| BAD 004 | 6.2 m² | 0 | 1 |
| KOTT 005 | 11.4 m² | 1 | 1 |
Fasader
Enebolig
Øst
- Materiale
- Tre
- Taktype
- Saltak
- Takmat.
- Tegl
- Høyde
- 5.6 m
- Mønehøyde
- 56.5 m
- Vinduer
- 5
- Dører
- 2
- Balkonger
- 1
- Synlige etasjer
- 2
Nord
- Materiale
- Tre
- Taktype
- Saltak
- Takmat.
- Tegl
- Høyde
- 6.6 m
- Mønehøyde
- 57.4 m
- Vinduer
- 4
- Dører
- 0
- Synlige etasjer
- 2
Sør
- Materiale
- Tre
- Taktype
- Saltak
- Takmat.
- Tegl
- Høyde
- 5.6 m
- Mønehøyde
- 7.1 m
- Vinduer
- 6
- Dører
- 1
- Balkonger
- 2
- Synlige etasjer
- 2
Vest
- Materiale
- Tre
- Taktype
- Saltak
- Takmat.
- Tegl
- Høyde
- 5.0 m
- Mønehøyde
- 55.8 m
- Vinduer
- 4
- Dører
- 1
- Balkonger
- 1
- Synlige etasjer
- 2
Hendelser
06.02.2026
Tillatelse til endring - Omgjøring internt, 28/56, Knappenveien 43
20.11.2025
Fakturagrunnlag
20.11.2025
ubw ordre 20682168/avslag
13.11.2025
Avslag på søknad om endring
13.11.2025
Avslag på søknad om ferdigattest.
11.11.2025
Tillegsopplysninger - 28/56/0/0 Knappenveien 43, påbygg bolig
11.11.2025
Knappenveien 43 Søknad om ferdigattest 28/56
13.02.2025
Igangsettingstillatelse nr. 1 28/56 Knappenveien 43. Påbygg bolig
12.02.2025
Knappenveien 43 Supplering av søknad 28/56
12.02.2025
Behov for tilleggsopplysninger
12.02.2025
Knappenveien 43 Søknad om igangsettingstillatelse 28/56
12.11.2024
Fakturagrunnlag
12.11.2024
Ubw ordre 20654456
11.11.2024
Rammetillatelse.
08.11.2024
Revidert tegninger - 28/56// Knappenveien 43, påbygg bolig
06.11.2024
Ny frist - 28/56// Knappenveien 43, påbygg bolig
05.11.2024
Ber om ny frist- 28/56// Knappenveien 43, påbygg bolig
22.10.2024
Revidert tegninger - 28/56// Knappenveien 43, påbygg bolig
03.10.2024
Spørsmål til sak - 28/56// Knappenveien 43, påbygg bolig
03.10.2024
Status i saksbehandling - 28/56// Knappenveien 43, påbygg bolig
27.09.2024
Revidering av søknad for rammetillatelse - 28/56// Knappenveien 43, påbygg bolig
12.09.2024
Fakturagrunnlag
avslag
12.09.2024
Ubw ordre 20650716
05.09.2024
Avslag på søknad.
03.09.2024
Planinfo.pdf
02.09.2024
Bekreftelse på mottatt søknad - 28/56// Knappenveien 43, påbygg bolig
30.08.2024
Knappenveien 43 Søknad om rammetillatelse 28/56
—