VerticalExtension UnderBehandling Enebolig

Påbygg og ombygging av enebolig på Lefdal 28, Kjølsdalen

📍 Lefdal 28 , 6776 KJØLSDALEN

Nøkkelinfo

Sakstype
Påbygg
Bygningstype
Enebolig
Bruksareal
144 m²
Boenheter
1
Kommune
Stad
Fylke
Vestland
Gnr / Bnr
102 / 1
Saksnummer
2026/130
Fase
Under behandling

Om byggesaken

Påbygg og begrenset ombygging av eksisterende enebolig på Lefdal 28 i Kjølsdalen. Prosjektet omfatter påbygg av ark mot nord og utviding av ark mot sør, samt ny altan over store deler av fasaden mot nord. Taket skiftes ut og værhud oppgraderes for å sikre bygningen mot videre forfall og fuktskader. Loftet gjøres om til oppholdsareal med tilstrekkelig ståhøyde, og takutspringet økes for å ivareta byggets sveitserstil. Eksisterende vindus- og døråpninger beholdes i opprinnelig form, plassering og dimensjon, inkludert viktige kulturhistoriske detaljer som diamantvinduer i 2. etasje. Byggets opprinnelige konstruksjon og laftkasse bevares uendret. Arealet økes fra ca. 138,6 m² til ca. 143,9 m² i 1. og 2. etasje, med en økning i bebygd areal fra 153,7 m² til 171,3 m², hvor takutvidelse ikke regnes som BYA. Tiltaket er tilpasset kulturminnevern og tekniske krav, og dokumentert med LiDAR-skanning.

Produkter og materialer

Maling Utvendig og innvendig maling

Maling av fasade og innvendige flater for å bevare og oppgradere byggets uttrykk

Overflatebehandling for beskyttelse og estetikk

Vinduer Vindu i sveitserstil med diamantmønster i 2. etasje

🧱 Tre, 2-lags energiglass

Bevaring av eksisterende vindusform og plassering, inkludert skråstilte diamantvinduer

Vinduer med opprinnelig form og detaljer for å bevare byggets karakter

Fasade Påbygg av ark mot nord og utviding av ark mot sør

🧱 Trespiler og kledning tilpasset eksisterende sveitserstil

Antall: 2

Ark på nord- og sørsiden, fasadeendringer med bevaring av vindusplassering og dimensjon

Påbygg av ark og fasadeendringer som ivaretar byggets kulturhistoriske uttrykk

Elektro Oppgradering av elektrisk anlegg

Elektrisk oppgradering i forbindelse med ombygging og påbygg

Elektriske installasjoner tilpasset ny bruk og forskriftskrav

Tak Nytt tak med økt takutspring

Antall: 1

Takvinkel 35 grader, takutspring økt fra 30 cm til 40 cm, nytt taktekking

Nytt tak med større takutspring for å ivareta sveitserstil og sikre bygget mot fuktskader

Dører Ytterdører i opprinnelig stil

🧱 Tre

Bevaring av eksisterende døråpninger i opprinnelig form og dimensjon

Dører som bevarer byggets opprinnelige uttrykk

Gulv Oppgradering av loft til oppholdsareal

Tilpasning for ståhøyde og funksjonelt oppholdsrom i loftsetasje

Gulv og innvendige overflater tilpasset ny bruk av loftet

VVS Oppgradering av våtrom

Oppgradering av bad og toalett i forbindelse med ombygging

VVS-installasjoner tilpasset ny planløsning og oppgradering

Terrasse Ny altan på fasade mot nord

🧱 Tre

Antall: 1

Altan over store deler av nordfasaden, tilpasset byggets stil

Utendørs oppholdsareal i tilknytning til påbygg

Grunnarbeid Ingen endring i grunnmur eller fundament

Eksisterende grunnmur beholdes, ingen økning i bebygd areal som følge av påbygg

Ingen nye grunnarbeider, eksisterende fundament benyttes

Tømrer Påbygg og ombygging av laftet konstruksjon

🧱 Tre

Bevaring av original laftkasse, påbygg i tre med ark og takutvidelse

Tømrerarbeid for påbygg og ombygging med fokus på bevaring av opprinnelig konstruksjon

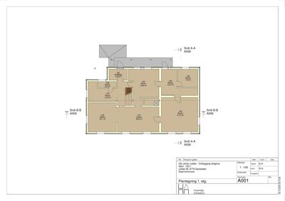
Plantegning

Enebolig 138.6 m²

Etasje 1 138.6 m²

Rom Areal Vinduer Dører
Gang 100 18.1 m² 0 2
Stue 101 22.6 m² 2 1
Kjøkken 102 27.3 m² 1 1
Bad 103 12.3 m² 0 1
Toalett 104 7.9 m² 0 1
Sove 105 18.9 m² 1 1
Vaskerom 106 2.5 m² 0 1
Gang 107 17.6 m² 0 1
Vindfang 122 4.4 m² 0 1

Hendelser

20.04.2026 Ber om tilleggsopplysingar
24.03.2026 Kopi til Stad kommune - Uttale - Nabovarsel - endring av bygg - gnr. 102 bnr. 1 - Lefdal 28 - Stad kommune
18.03.2026 Lefdal 28 Supplering av søknad 102/1
03.03.2026 Ber om tilleggsopplysingar
03.03.2026 Oversending av fråsegn til uttale
27.02.2026 Kulturminnefagleg fråsegn- dispensasjon - påbygg - gnr. 102 bnr. 1 - Stad kommune
20.02.2026 Infrastruktur og veg sin uttale - dispensasjon - rammeløyve påbygg - gnr. 102 bnr. 1 - Stad kommune
16.02.2026 Oversending av søknad om løyve til tiltak til uttale
13.01.2026 Lefdal 28 Søknad om rammetillatelse 102/1