VerticalExtension Soeknad Enebolig

Påbygg og bruksendring på enebolig i Løtveitveien 3, Bergen

📍 Løtveitveien 3 , 5151 STRAUMSGREND

Nøkkelinfo

Sakstype
Påbygg
Bygningstype
Enebolig
Bruksareal
46 m²
Boenheter
1
Kommune
Bergen
Fylke
Vestland
Gnr / Bnr
21 / 681
Saksnummer
BYGG-2026/00872
Fase
Søknad

Om byggesaken

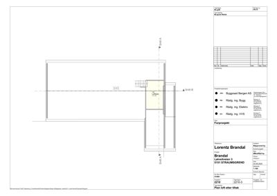
Ny påbygg over eksisterende garasje med gang, bad og soverom, med tak som forlengelse av eksisterende saltak. Utvidelse av terrasse og endring av trappeløsning mellom etasjene. Bruksendring i 1. etasje hvor hobbyrom på ca. 10 m² endres fra tilleggsdel til hoveddel, og i 2. etasje hvor to boder på ca. 5 m² innlemmes i vaskerommet. Legaliserer innredet loftstue på ca. 11 m² med nye vinduer i sørfasade. Eksisterende enebolig i tre med saltak, totalt ca. 140 m², får endret planløsning og fasade mot øst og sør.

Produkter og materialer

Bad Bad med sanitærutstyr

Antall: 1

Nytt bad i påbygg over garasje

Bad med nødvendig sanitærutstyr i påbygg

Isolasjon Bygningsisolasjon

Isolasjon i nye vegger, tak og gulv i påbygg

Isolasjon for varme- og lydisolering i påbygg

Trapper Innvendig trapp

Antall: 1

Endret trappeløsning mellom etasjer i bolig

Trappeløsning som endres i forbindelse med påbygg og bruksendring

Elektro Elektrisk anlegg

Elektriske installasjoner i påbygg og endrede rom

Elektrisk anlegg for belysning, stikkontakter og varme

VVS Sanitær og vanninstallasjoner

VVS-installasjoner til nytt bad og vaskerom

VVS for bad, vaskerom og øvrige våtrom

Terrasse Utvidet terrasse

Utvidelse av eksisterende terrasse i tilknytning til påbygg

Materialer og arbeid for terrasseutvidelse

Dører Ytterdører

Antall: 7

Dører i fasader og til garasje iht. plantegninger

Ytterdører for påbygg og eksisterende bygg

Gulv Innvendige gulv

Gulv i nye rom som gang, bad og soverom i påbygg

Innvendige gulv i påbygg og endrede rom

Fasade Trepanel

🧱 Tre

Fasade i tre mot nord, sør, øst og vest med saltak og tegl takmateriale

Trepanel til fasadeendringer og påbygg, inkludert ny fasade mot øst og sør

Mur Grunnmur og fundament

Grunnmur for påbygg over garasje

Murarbeid for fundamentering av påbygg

Tak Saltak med teglstein

🧱 Teglstein

Forlengelse av eksisterende saltak over påbygg

Taktekking med teglstein på nytt påbygg over garasje

Tømrer Innvendige vegger og konstruksjoner

🧱 Tre

Tømrerarbeid for påbygg, innvendige vegger og endret planløsning

Tømrerarbeid i påbygg og bruksendring

Betong Fundament og dekke over garasje

Betongdekke over eksisterende garasje som fjernes og erstattes med påbygg

Betongarbeid for påbygg over garasje

Vinduer Fasadevindu

Antall: 7

Nye vinduer i fasade mot sør på loftstue, totalt 7 vinduer i bygget

Vinduer til fasadeendring og legalisering av loftstue

Plantegning

Enebolig 140.0 m²

Etasje 1 100.0 m²

Rom Areal Vinduer Dører
Stue 101 35.0 m² 2 1
Kjøkken 102 12.0 m² 1 1
Vaskerom 103 6.0 m² 0 1
Soverom 104 12.0 m² 1 1
Gang 105 10.0 m² 0 2
Bad 106 5.0 m² 0 1

Etasje 0 40.0 m²

Rom Areal Vinduer Dører
Garasje 001 20.0 m² 1 1
Teknisk rom 002 20.0 m² 0 1

Fasader

Enebolig

Nord
Materiale
Tre
Taktype
Saltak
Vinduer
2
Dører
1
Balkonger
1
Synlige etasjer
1
Sør
Materiale
Tre
Taktype
Saltak
Vinduer
2
Dører
1
Synlige etasjer
1
Øst
Materiale
Tre
Taktype
Saltak
Takmat.
Tegl
Vinduer
2
Dører
1
Synlige etasjer
1
Vest
Materiale
Tre
Taktype
Saltak
Vinduer
2
Dører
1
Synlige etasjer
1

Uthus

Nord
Materiale
Tre
Taktype
Saltak
Vinduer
0
Dører
1
Synlige etasjer
1

Hendelser

09.02.2026 Bekreftelse på mottatt søknad
06.02.2026 Løtveitveien 3 Søknad om rammetillatelse 21/681