Photo
Fotografi av en eksisterende bygning med en markert vinterhage på taket.
Påbygg med vinterhage på takterrasse i Møllendalsveien 65B, Bergen
📍 Møllendalsveien 65A , 5009 BERGEN
Nøkkelinfo
- Sakstype
- Påbygg
- Bygningstype
- Enebolig
- Bruksareal
- 17 m²
- Boenheter
- 1
- Kommune
- Bergen
- Fylke
- Vestland
- Gnr / Bnr
- 163 / 17
- Saksnummer
- BYGG-2026/12556
- Fase
- Søknad
Om byggesaken
Produkter og materialer
🧱 Glass og aluminium
Antall: 1
Dør i vinterhage, tilpasset glass/aluminium fasade
Dør for adkomst til vinterhage på takterrasse
🧱 Glass med aluminium ramme
Antall: 3
3 vinduer i vinterhage, glass med hvit aluminium ramme
Vinduer i innglasset vinterhage for lys og utsyn
Fundamentering og tilpasning for påbygg på eksisterende takterrasse
Arbeid for å sikre stabilitet og integrasjon av påbygg med eksisterende konstruksjon
🧱 Aluminium og glass
Konstruksjon av påbygg vinterhage med aluminium og glass
Bygging av påbygg vinterhage med rammeverk i aluminium og glassfasader
🧱 Glass med hvit aluminiumskonstruksjon
Antall: 1
Vinterhage på ca. 17,3 m² med glassfasader og hvit aluminium, tak med ca. 7° fall, høyde front ca. 2,1 m
Innglasset vinterhage som påbygg over takterrasse, tilpasset eksisterende bygg og naboens tilsvarende tiltak
🧱 Tilpasset eksisterende takkonstruksjon
Antall: 1
Påbygg på eksisterende takterrasse i 7. etasje, takhøyde og fall tilpasses eksisterende konstruksjon
Tak på vinterhage med ca. 7° fall, integrert med eksisterende takterrasse
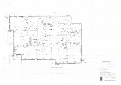
Plantegning
Enebolig 553.8 m²
Etasje 7 184.3 m²
| Rom | Areal | Vinduer | Dører |
|---|---|---|---|
| Stue/kjøkken 701 | 45.0 m² | 1 | 1 |
| Stue/kjøkken 702 | 102.0 m² | 1 | 1 |
| Sov 703 | 11.0 m² | 1 | 1 |
| Sov 704 | 9.5 m² | 1 | 1 |
| Sov 705 | 9.0 m² | 1 | 1 |
| Sov 706 | 7.5 m² | 1 | 1 |
| Sov 707 | 12.0 m² | 1 | 1 |
| Bad 708 | 8.0 m² | 0 | 1 |
| Bad 709 | 5.0 m² | 0 | 1 |
| Vaskerom 710 | 3.0 m² | 0 | 1 |
| Bod 711 | 2.8 m² | 0 | 1 |
| Bod 712 | 3.0 m² | 0 | 1 |
| Entré 713 | 5.5 m² | 0 | 1 |
| Hall 714 | 6.0 m² | 0 | 1 |
| Gard 715 | 0.0 m² | 0 | 0 |
| Vinterhage 716 | 17.3 m² | 3 | 1 |
| Terrasse 717 | 50.0 m² | 0 | 0 |
| Balkong 718 | 15.0 m² | 0 | 1 |
| Heis 719 | 0.0 m² | 0 | 0 |
Etasje 1 369.5 m²
| Rom | Areal | Vinduer | Dører |
|---|---|---|---|
| Stue 101 | 35.2 m² | 3 | 2 |
| Kjøkken 102 | 12.0 m² | 1 | 1 |
| Bad 103 | 6.0 m² | 0 | 1 |
| Sov 104 | 12.0 m² | 1 | 1 |
| Gang 105 | 10.0 m² | 0 | 3 |
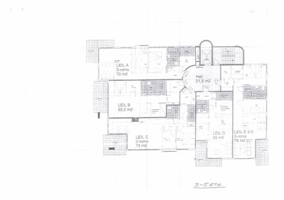
| 3-roms A301 | 82.5 m² | 2 | 2 |
| Stue A302 | 56.0 m² | 1 | 1 |
| 3-roms A303 | 74.0 m² | 2 | 2 |
| Stue A304 | 60.0 m² | 1 | 1 |
| 3-roms A305 | 70.5 m² | 2 | 2 |
| Hall Hall | 21.5 m² | 0 | 5 |
Bolig-etasje 184.0 m²
Etasje 1 184.0 m²
| Rom | Areal | Vinduer | Dører |
|---|---|---|---|
| 3-roms A 701 | 82.0 m² | 3 | 2 |
| 4-roms A 702 | 102.0 m² | 3 | 2 |
| 3-roms B 701 | 82.0 m² | 3 | 2 |
| 4-roms B 702 | 102.0 m² | 3 | 2 |
Fleretasjesbygg 162.0 m²
Etasje 5 162.0 m²
| Rom | Areal | Vinduer | Dører |
|---|---|---|---|
| Stue A501-1 | 18.5 m² | 2 | 1 |
| Soverom 1 A501-2 | 12.0 m² | 1 | 1 |
| Soverom 2 A501-3 | 12.0 m² | 1 | 1 |
| Bad A501-4 | 6.0 m² | 0 | 1 |
| Gang A501-5 | 4.5 m² | 0 | 2 |
| Stue A502-1 | 18.5 m² | 2 | 1 |
| Soverom 1 A502-2 | 12.0 m² | 1 | 1 |
| Soverom 2 A502-3 | 12.0 m² | 1 | 1 |
| Bad A502-4 | 6.0 m² | 0 | 1 |
| Gang A502-5 | 4.5 m² | 0 | 2 |
| Stue A503-1 | 18.5 m² | 2 | 1 |
| Soverom 1 A503-2 | 12.0 m² | 1 | 1 |
| Soverom 2 A503-3 | 12.0 m² | 1 | 1 |
| Bad A503-4 | 6.0 m² | 0 | 1 |
| Gang A503-5 | 4.5 m² | 0 | 2 |
| Teknisk rom TEK-1 | 3.0 m² | 0 | 1 |
Leilighet 407.0 m²
Etasje 1 231.0 m²
| Rom | Areal | Vinduer | Dører |
|---|---|---|---|
| Stue A6 | 13.0 m² | 1 | 1 |
| Kjøkken A6 | 10.0 m² | 0 | 0 |
| Sove A6 | 11.0 m² | 1 | 1 |
| Bad A6 | 4.0 m² | 0 | 1 |
| Gang A6 | 15.0 m² | 0 | 2 |
| Stue B6 | 39.0 m² | 1 | 1 |
| Kjøkken B6 | 11.5 m² | 0 | 0 |
| Sove B6 | 11.0 m² | 1 | 1 |
| Bad B6 | 4.5 m² | 0 | 1 |
| Gang B6 | 15.0 m² | 0 | 2 |
| Stue C6 | 39.0 m² | 1 | 1 |
| Kjøkken C6 | 11.5 m² | 0 | 0 |
| Sove C6 | 11.0 m² | 1 | 1 |
| Bad C6 | 4.5 m² | 0 | 1 |
| Gang C6 | 15.0 m² | 0 | 2 |
| Hall Hall | 15.0 m² | 0 | 2 |
| Takterrasse Takterrasse | 75.0 m² | 0 | 0 |
| Takterrasse Takterrasse | 44.0 m² | 0 | 0 |
| Stue A 801 | 45.0 m² | 2 | 1 |
| Sove A 802 | 14.5 m² | 1 | 1 |
| Sove A 803 | 12.0 m² | 1 | 1 |
| Bad A 804 | 8.5 m² | 0 | 1 |
| Kjøkken A 805 | 10.0 m² | 1 | 1 |
| Gang A 806 | 5.0 m² | 0 | 0 |
| Vaskerom A 807 | 4.5 m² | 0 | 1 |
| Teknisk A 808 | 3.0 m² | 0 | 1 |
Etasje 7 176.0 m²
| Rom | Areal | Vinduer | Dører |
|---|---|---|---|
| Hall Hall | 14.0 m² | 0 | 2 |
| Stue 101 | 35.0 m² | 2 | 1 |
| Kjøkken 102 | 12.0 m² | 0 | 1 |
| Gang 103 | 8.0 m² | 0 | 2 |
| Bad 104 | 6.0 m² | 0 | 1 |
| Toalett 105 | 2.0 m² | 0 | 1 |
| Vaskerom 106 | 4.0 m² | 0 | 1 |
| Soverom 1 201 | 12.0 m² | 1 | 1 |
| Soverom 2 202 | 10.0 m² | 1 | 1 |
| Soverom 3 203 | 11.0 m² | 1 | 1 |
| Stue 301 | 30.0 m² | 2 | 1 |
| Kjøkken 302 | 10.0 m² | 0 | 1 |
| Gang 303 | 6.0 m² | 0 | 2 |
| Bad 304 | 5.0 m² | 0 | 1 |
| Toalett 305 | 2.0 m² | 0 | 1 |
| Vaskerom 306 | 3.0 m² | 0 | 1 |
| Soverom 1 401 | 10.0 m² | 1 | 1 |
| Soverom 2 402 | 9.0 m² | 1 | 1 |
| Soverom 3 403 | 10.0 m² | 1 | 1 |
Fasader
Hovedbygg
- Materiale
- Betong
- Taktype
- Flatt tak
- Vinduer
- 32
- Dører
- 1
- Balkonger
- 10
- Synlige etasjer
- 5
- Materiale
- Betong
- Vinduer
- 18
- Dører
- 1
- Balkonger
- 12
- Synlige etasjer
- 6
- Materiale
- Betong
- Taktype
- Flatt tak
- Vinduer
- 12
- Dører
- 1
- Balkonger
- 4
- Synlige etasjer
- 4
- Materiale
- Betong
- Vinduer
- 24
- Dører
- 2
- Balkonger
- 12
- Synlige etasjer
- 5
Enebolig
- Materiale
- Betong
- Taktype
- Flatt tak
- Vinduer
- 22
- Dører
- 1
- Balkonger
- 10
- Synlige etasjer
- 7
Forretningsbygg
- Materiale
- Betong
- Vinduer
- 24
- Dører
- 1
- Balkonger
- 12
- Synlige etasjer
- 7
Hus B
- Materiale
- Betong
- Vinduer
- 28
- Dører
- 1
- Balkonger
- 4
- Synlige etasjer
- 7