VerticalExtension Igangsettingstillatelse Enebolig

Påbygg, fasadeendring og bruksendring i enebolig, Nils Klims gate 7, Bergen

📍 Nils Klims gate 7 , 5031 BERGEN

Nøkkelinfo

Sakstype
Påbygg
Bygningstype
Enebolig
Bruksareal
127 m²
Boenheter
1
Kommune
Bergen
Fylke
Vestland
Gnr / Bnr
167 / 1173
Saksnummer
BYGG-2025/18521
Fase
Igangsettingstillatelse

Om byggesaken

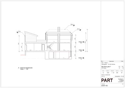
Ny påbygg på eksisterende enebolig i Nils Klims gate 7, Bergen, med tilhørende fasadeendringer og bruksendring fra tilleggsdel til hoveddel i kjeller. Påbygget inkluderer en utvidelse i 2. etasje med takterrasse, nye vinduer og dører, samt endringer i fasadens materialbruk med stående kledning og takstein som matcher eksisterende. Det etableres også utvendige ramper og løfteplattform for universell utforming. Innvendig ombygging omfatter nye baderom, kjøkken/stue, og tekniske installasjoner som varmepumpe, brannalarmanlegg og ventilasjon. Bygget har saltak med teglstein, og det er planlagt montering av peis og stålpipe. Overvannshåndtering og fundamentering er tilpasset gjeldende krav. Totalt areal er ca. 127 m² fordelt på kjeller, 1. og 2. etasje.

Produkter og materialer

Trapper Utvendig trapp og rampe

🧱 Betong og tre

Antall: 1

Utvendige ramper og trapp i henhold til universell utforming, inkludert løfteplattform

Tilrettelegging for universell adkomst med ramper og løfteplattform

Grunnarbeid Drenering og overvannshåndtering

Overvannshåndtering i henhold til VA-norm og drenering rundt bygg

Grunnarbeid for drenering og overvannshåndtering

Ventilasjon Avtrekk på bad og kjøkken

Ventilasjonssystem med avtrekk på bad og kjøkken i henhold til prosjektering

Ventilasjon for fukt- og luftkvalitetskontroll i våtrom og kjøkken

Maling Utvendig og innvendig maling

Maling av fasade og innvendige overflater

Overflatebehandling for beskyttelse og estetikk

Elektro Brannalarmanlegg og belysning

Prosjektering av seriekoblede brannmeldere og elektriske installasjoner i henhold til brannkonsept

Elektriske installasjoner for brannsikkerhet og generell elektro

Isolasjon Bygningsisolasjon

Isolasjon i vegger, tak og gulv i henhold til energikrav

Isolasjon for energieffektivitet og komfort

Vinduer Fasadevindu og takvindu

🧱 Tre/aluminium, 3-lags energiglass

Antall: 10

Vinduer i fasade, inkludert ombygging av dør til vindu i nordfasade

Nye vinduer i påbygg og fasadeendringer, tilpasset universell utforming og estetikk

Gulv Betongdekke og membran

🧱 Membran og betong

Støping av dekke i kjeller med membran for fuktsikring

Gulvkonstruksjon i kjeller med membran og betongdekke

Tømrer Trekonstruksjoner og montering

🧱 Tre og ståldragere

Montering av trekonstruksjoner, ståldragere, takarbeider og kledning

Tømrerarbeid for påbygg og fasadeendringer

VVS Varmepumpe og sanitærinstallasjoner

Prosjektering og installasjon av varmepumpe, sanitærinstallasjoner i bad og kjøkken

Tekniske installasjoner for varme og sanitær i påbygg og ombygde arealer

Mur Membran og murarbeid i kjeller

🧱 Membran og murmaterialer

Murarbeid inkludert legging av membran i kjeller

Fuktsikring og murarbeid i kjeller

Pipe Stålpipe og peis

🧱 Stål

Antall: 1

Prosjektering og montering av peis og stålpipe

Varmeinstallasjon med peis og stålpipe

Dører Ytterdører og dør i fasade

🧱 Tre/glasstypisk

Antall: 4

Dører i inngangsparti, utgang til takterrasse og erstatning av dør med vindu i fasade

Nye ytterdører og døråpninger i påbygg og fasadeendringer

Tak Saltak med teglstein

🧱 Teglstein

Takstein tilsvarende eksisterende, med sløys og beslag i overgang mellom nytt og gammelt tak

Taktekking med teglstein som matcher eksisterende tak, inkludert detaljer for overgang mellom bygg

Fasade Stående kledning

🧱 Tre og profilert stålkledning

Profilert stående stålplatekledning i farge tilsvarende takstein, og hvit liggende kledning i overbygget del

Fasadeendring med kombinasjon av tre- og stålplatekledning for å tydeliggjøre møtet mellom nytt og gammelt bygg

Plantegning

Enebolig 127.0 m²

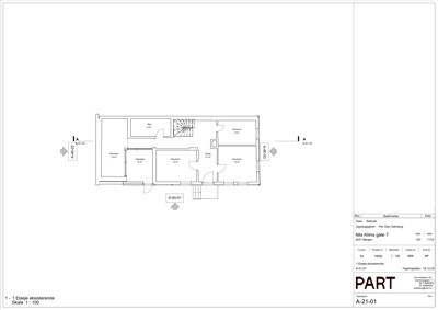
Etasje 1 0.0 m²

Rom Areal Vinduer Dører
Inngangsparti 101 0.0 m² 0 1
Bad 102 6.0 m² 0 1
Soverom 103 9.0 m² 1 1
Soverom 104 13.0 m² 1 1
Soverom 105 12.0 m² 1 1
Gang 106 21.0 m² 0 0
Utendørs 107 8.0 m² 1 1

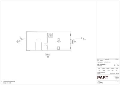
Etasje 2 85.0 m²

Rom Areal Vinduer Dører
Takterrasse 201 39.0 m² 0 1
Kjøkken / Stue 202 46.0 m² 2 1

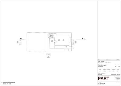
Etasje 0 42.0 m²

Rom Areal Vinduer Dører
Gang 001 6.0 m² 0 1
Bad 002 6.0 m² 0 1
Bod 003 20.0 m² 0 1

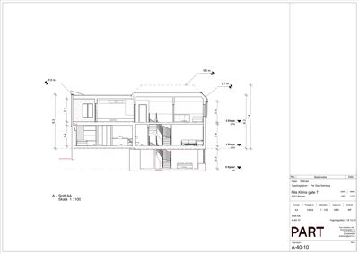
Fasader

Enebolig

Sør-Vest
Materiale
Tre
Taktype
Saltak
Høyde
3.0 m
Vinduer
10
Dører
1
Synlige etasjer
2
Nord-Vest
Materiale
Tre
Taktype
Saltak
Takmat.
Tegl
Høyde
3.0 m
Vinduer
6
Dører
2
Synlige etasjer
2

Hendelser

20.04.2026 Vedrørende pågående byggearbeider – anmodning om redegjørelse
16.04.2026 Behov for tilleggsopplysninger - purring
12.03.2026 Behov for tilleggsopplysninger, 167/1173, Nils Klims gate 7
11.03.2026 Nils Klims gate 7 Søknad om endring av gitt tillatelse eller godkjenning 167/1173
09.03.2026 Igangsettingstillatelse for deler av tiltaket, 167/1173, Nils Klims gate 7
09.03.2026 Nils Klims gate 7 Søknad om igangsettingstillatelse 167/1173
17.02.2026 Igangsettingstillatelse for deler av tiltaket, 167/1173, Nils Klims gate 7
16.02.2026 Nils Klims gate 7 Søknad om igangsettingstillatelse 167/1173
10.02.2026 Fakturagrunnlag 2025
10.02.2026 Ubw ordre 20688596
04.02.2026 Rammetillatelse på vilkår, 167/1173, Nils Klims gate 7
03.02.2026 Bergenhus. Gnr 167 bnr 1173, Nils Klims gate. Søknad om dispensasjon fra byggegrense langs kommunal veg. Vedtak fra Bymiljøetaten.
28.01.2026 Tilbakemelding fra Vestland fylkeskommune
23.01.2026 Byantikvarens tilbakemelding 2025/287439 167/1173/0/0 Nils Klims gate 7, påbygg, fasadeendring og bruksendring bolig
30.12.2025 Bekreftelse på mottatt søknad
23.12.2025 Nils Klims gate 7 Søknad om rammetillatelse 167/1173