VerticalExtension UnderBehandling Enebolig

Påbygg med våtrom og fasadeendring på Nord i Enga 9

📍 Nord i enga 9 , 1684 VESTERØY

Nøkkelinfo

Sakstype
Påbygg
Bygningstype
Enebolig
Bruksareal
105 m²
Boenheter
1
Kommune
Hvaler
Fylke
Østfold
Gnr / Bnr
47 / 44
Saksnummer
2023/1575
Fase
Under behandling

Om byggesaken

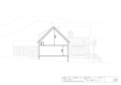
På Nord i Enga 9 utføres et påbygg på en eksisterende enebolig med totalt 105 m² grunnflate. Prosjektet inkluderer økning av takhøyde med 50 cm for bedre takhøyde i første og andre etasje, samt oppføring av nye våtrom. Fasadeendringer omfatter justeringer på alle fire fasader med tre som fasademateriale og saltak. Innvendig ombygging inkluderer blant annet større bod, nye bad og endret planløsning med kjøkken, stue og vaskerom. Bygget har to etasjer, ett trapperom, og flere vinduer og dører fordelt på fasadene. Prosjektet innebærer riving av eksisterende tak og nytt tak over hele bygget.

Produkter og materialer

Dører Ytterdører

Antall: 3

Ytterdører i fasaden, totalt 3 stk

Trapper Innvendig trapp

Antall: 1

Innvendig trapp mellom etasjene

VVS Sanitærinstallasjoner

Sanitærinstallasjoner for to nye bad

Planlegging og utførelse av sanitærinstallasjoner i nye våtrom

Tømrer Tømrerarbeider

Tømrerarbeider for påbygg, ombygging og fasadeendringer

Tømrerarbeider knyttet til påbygg og fasadeendringer

Grunnarbeid Fundamentering og grunnarbeid

Grunnarbeid for påbygg og ombygging

Mur Murarbeider

Ombygging av eksisterende murarbeider

Murarbeider i forbindelse med ombygging og påbygg

Bad Våtrom

Antall: 2

To nye bad med sanitærinstallasjoner

Nye våtrom med komplett sanitærinstallasjon

Fasade Trepanel

🧱 Tre

Tre som fasademateriale på alle fasader

Fasadeendringer med trepanel på alle sider av bygget

Vinduer Fasadevindu

Antall: 14

Vinduer fordelt på fasadene, totalt 14 stk

Tak Saltak

Saltak med økt høyde på 50 cm over hele bygget

Nytt saltak som erstatter eksisterende tak, med økt takhøyde

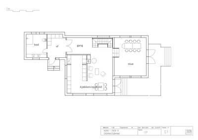
Plantegning

Enebolig 105.0 m²

Etasje 1 105.0 m²

Rom Areal Vinduer Dører
Stue 101 35.0 m² 3 2
Kjøkken/opphold 102 25.0 m² 2 1
Gang 103 12.0 m² 0 3
Vaskerom 104 8.0 m² 0 2
Bad 105 10.0 m² 0 1

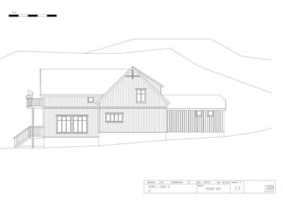
Fasader

Enebolig

Vest
Materiale
Tre
Taktype
Saltak
Vinduer
7
Dører
1
Balkonger
2
Synlige etasjer
2
Øst
Materiale
Tre
Taktype
Saltak
Vinduer
5
Dører
0
Balkonger
1
Synlige etasjer
2

Hendelser

15.04.2026 Ny søknad om endring av gitt tillatelse - våtrom, påbygg, fasade - 47/44 - Nord i enga 9
15.04.2026 Søknad om endring av gitt tillatelse - våtrom, påbygg, fasade - 47/44 - Nord i enga 9
15.04.2026 Spørsmål endringssøknad - søknad om endring av gitt tillatelse - våtrom, påbygg, fasade - 47/44 - Nord i enga 9
03.03.2026 Søknad om endring av gitt tillatelse - våtrom, påbygg, fasade - 47/44 - Nord i enga 9
03.03.2026 Søknad om igangsettingstillatelse - våtrom, påbygg, fasade - 47/44 - Nord i enga 9