Photo
Fotografi av en innendørs terrasse eller balkong med møbler og grill.
1 / 28
VerticalExtension
UnderBehandling
Enebolig
Påbygg med markise på takterrasse, Øvre Sund 10, Drammen
📍 Øvre Sund 10 , 3018 DRAMMEN
Nøkkelinfo
- Sakstype
- Påbygg
- Bygningstype
- Enebolig
- Bruksareal
- 8 m²
- Boenheter
- 2
- Kommune
- Drammen
- Fylke
- Buskerud
- Gnr / Bnr
- 114 / 1460
- Saksnummer
- 25/38003
- Fase
- Under behandling
Om byggesaken
Ny fastmontert markise på eksisterende takterrasse i 4. etasje på en verneverdig enebolig i Øvre Sund 10, Drammen. Markisen har pulverlakkert aluminiumskonstruksjon i antrasittgrå med to søyler i front og motorisert duk i skinner. Mellom søylene monteres glass med frostet folie som vindskjerming for å ivareta nabointeresser. Markisen er plassert på en 7,9 m² takterrasse vendt mot bakgård og Drammenselva, og er tilbaketrukket fra fasadelivet. Tiltaket er slankt og funksjonelt, med mindre brudd i takvinkel, og vurderes som estetisk forsvarlig uten å forringe byggets arkitektoniske uttrykk eller verneverdi. Markisen vil skjerme mot vind og vær, forlenge utesesongen og øke bokvaliteten. Tiltaket krever dispensasjon fra reguleringsplanens bestemmelser om gesimshøyde, utforming og byggegrenser mot vassdrag, og er under behandling med innhentede uttalelser fra kulturminnemyndigheter.
Produkter og materialer
Fasade
Markise med understøtte
🧱 Pulverlakkert aluminium, antrasittgrå
Antall: 1
Motorisert markise ført i skinner med to søyler i front, glass mellom søylene med frostet folie som vindskjerming
Fastmontert markise på takterrasse for vind- og værbeskyttelse, med glass som vindskjerming for å redusere innsyn
Glass
Vindskjerming med frostet folie
🧱 Glass med frostet findusfolie
Glass montert mellom markisens søyler med frostet folie for innsynsbeskyttelse
Vindskjerming på takterrasse for å ivareta nabointeresser
Grunnarbeid
Fundamentering for markise
Fundamentering for to søyler i front av markisen
Grunnarbeid for å sikre stabil montering av markise
Tømrer
Montering av markise og glass
Utførelse av montering av markise og glass på takterrasse
Utførelse av påbygg med markise og glassvindskjerming
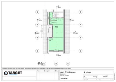
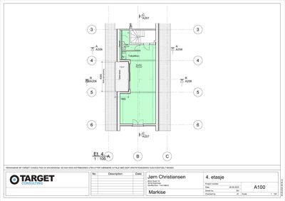
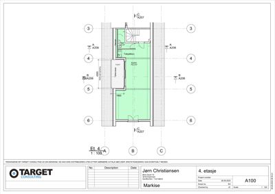
Plantegning
Markise 151.9 m²
Etasje 4 151.9 m²
| Rom | Areal | Vinduer | Dører |
|---|---|---|---|
| Tekjøkken 401 | 70.3 m² | 0 | 1 |
| Kontor 402 | 70.3 m² | 0 | 1 |
| Takterrasse 403 | 7.9 m² | 0 | 0 |
| Bad 404 | 4.5 m² | 0 | 0 |
| Teknisk 405 | 0.0 m² | 0 | 0 |
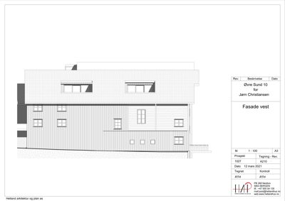
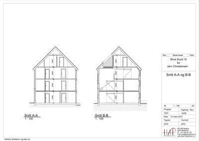
Fasader
Markise
Sør
- Materiale
- Tre
- Taktype
- Saltak
- Vinduer
- 4
- Dører
- 1
- Balkonger
- 1
- Synlige etasjer
- 3
Vest
- Materiale
- Tre
- Taktype
- Saltak
- Vinduer
- 10
- Dører
- 0
- Synlige etasjer
- 2
Hendelser
10.04.2026
Øvre Sund 10, anmodning om uttalelse fra Statsforvalteren
10.04.2026
Øvre Sund 10, anmodning om uttalelse fra Buskerud fylkeskommune
10.04.2026
Øvre Sund 10, anmodning om kulturminnefaglig uttalelse fra Buskerud fylkeskommune
10.04.2026
Øvre sund 10, BYGG-25/01825 supplering
20.03.2026
Øvre sund 10, BYGG-25/01825
17.03.2026
Øvre Sund 10 Supplering av søknad 114/1460
10.03.2026
Øvre Sund 10 Supplering av søknad 114/1460
03.03.2026
Øvre Sund 10, bekreftelse på fristutsettelse
04.02.2026
Øvre sund 10, anmodning om fristutsettelse og innvilget fristutsettelse
06.01.2026
Øvre Sund 10, svar på nabovarsel
02.01.2026
Øvre Sund 10, svar på vurdering om å avslå søknaden
08.12.2025
Øvre Sund 10, vi vurderer å avslå søknaden din
23.10.2025
Øvre Sund 10 Søknad om tillatelse i ett trinn 114/1460