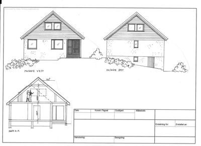
Facade
Fasadetegning som viser bygningens utsyn mot nord og sør.
1 / 8
VerticalExtension
Ferdigattest
Enebolig
Påbygg med nye vinduer på enebolig i Smøråsvegen 69A
📍 Smøråsvegen 69A , 5238 RÅDAL
Nøkkelinfo
- Sakstype
- Påbygg
- Bygningstype
- Enebolig
- Bruksareal
- 6 m²
- Boenheter
- 1
- Kommune
- Bergen
- Fylke
- Vestland
- Gnr / Bnr
- 48 / 28
- Saksnummer
- BYGG-2025/14335
- Fase
- Ferdigattest
Om byggesaken
Påbygg på enebolig i Smøråsvegen 69A med et nytt areal på 6 m² BRA i andre etasje, hvor taket løftes mot vest for å få lik takhøyde over hele huset. Påbygget inkluderer to nye vinduer i gavl mot vest. Taket beholder eksisterende skifertak. Det er også et overbygget areal på 7 m². Bygningen har saltak og trekledning, og fasadene består av flere vinduer og dører fordelt på alle sider. Prosjektet omfatter konstruksjonssikkerhet og tømrerarbeid med montering av trekonstruksjoner.
Produkter og materialer
Dører
Ytterdør
🧱 Tre
Antall: 1
Dør i fasade vest
Eksisterende ytterdør i fasade vest, sannsynligvis berørt av påbygg.
Grunnarbeid
Fundamentering
Fundamentering for påbygg
Grunnarbeid og fundamentering for påbygg av eksisterende enebolig.
Tak
Skifertak
🧱 Skifer
Eksisterende skifertak beholdes på hele taket
Takbelegg av skifer opprettholdes på hele taket etter påbygg.
Tømrer
Trekonstruksjoner
🧱 Tre
Montering av trekonstruksjoner for påbygg
Tømrerarbeid og montering av trekonstruksjoner for påbygg av tak og vegger.
Gulv
Innvendig gulv
Nytt gulv i påbygget areal
Gulv i påbygget del av eneboligen, sannsynligvis parkett eller tilsvarende.
Fasade
Vinduer i gavl
🧱 Tre med 3-lags glass
Antall: 2
Nye vinduer i gavl mot vest
To nye vinduer monteres i gavl på påbygget del av eneboligen.
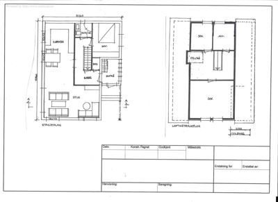
Plantegning
Enebolig 0.0 m²
Etasje 1 0.0 m²
| Rom | Areal | Vinduer | Dører |
|---|---|---|---|
| Stue 101 | 0.0 m² | 1 | 1 |
| Kjøkken 102 | 0.0 m² | 0 | 1 |
| Gang 103 | 0.0 m² | 0 | 2 |
| Entré 104 | 0.0 m² | 0 | 1 |
| Bod 105 | 0.0 m² | 0 | 1 |
| Dusj/WC 106 | 0.0 m² | 0 | 1 |
| Sov. 107 | 0.0 m² | 0 | 1 |
| Vindfang 108 | 10.0 m² | 1 | 1 |
| Soverom Soverom | 0.0 m² | 0 | 0 |
| Sk Sk | 0.0 m² | 0 | 0 |
| Turkeloft TURKELOFT | 0.0 m² | 0 | 0 |
| Bulle-og styrkerom BULLE-OG STYRKEROM | 0.0 m² | 0 | 0 |
Etasje 2 0.0 m²
| Rom | Areal | Vinduer | Dører |
|---|---|---|---|
| Sov. 201 | 0.0 m² | 0 | 1 |
| Sov. 202 | 0.0 m² | 0 | 1 |
| Sov. 203 | 0.0 m² | 0 | 1 |
Etasje 0 0.0 m²
| Rom | Areal | Vinduer | Dører |
|---|---|---|---|
| Vedbod VEDBOD | 0.0 m² | 0 | 0 |
| Matbod MATBOD | 0.0 m² | 0 | 0 |
| Bad BAD | 0.0 m² | 0 | 0 |
| Ikke utgravet IKKE UTGRAVET | 0.0 m² | 0 | 0 |
| Ikke IKKE | 0.0 m² | 0 | 0 |
| Utgravet UTGRAVET | 0.0 m² | 0 | 0 |
Fasader
Enebolig
Sør
- Materiale
- Tre
- Taktype
- Saltak
- Vinduer
- 2
- Dører
- 1
- Synlige etasjer
- 1
Nord
- Materiale
- Tre
- Taktype
- Saltak
- Vinduer
- 5
- Dører
- 0
- Synlige etasjer
- 2
Vest
- Materiale
- Tre
- Taktype
- Saltak
- Vinduer
- 3
- Dører
- 1
- Synlige etasjer
- 1
Øst
- Materiale
- Tre
- Taktype
- Saltak
- Vinduer
- 2
- Dører
- 1
- Synlige etasjer
- 1
Hendelser
11.12.2025
Ferdigattest, 48/28, Smøråsvegen 69A
11.12.2025
Revidert søknad om ferdigattest
02.12.2025
Behov for tilleggsopplysninger, 48/28, Smøråsvegen 69A
01.12.2025
Søknad om ferdigattest - 48/28/0/0 Smøråsvegen 69A, endring av bygg - utvendig - Påbygg
05.08.2025
Fakturagrunnlag
05.08.2025
ubw ordre 20674325
08.07.2025
Tillatelse til tiltak med ansvarsrett, 48/28, Smøråsvegen 69A
07.07.2025
Tillegsopplysninger
04.07.2025
Bekreftelse på mottatt søknad - Behov for tilleggsopplysninger, 48/28, Smøråsvegen 69A
02.07.2025
Smøråsvegen 69A Søknad om tillatelse i ett trinn 48/28
—