VerticalExtension UnderBehandling Enebolig

Påbygg og fasadeendring på enebolig i Sørehavnveien 71, Bergen

📍 Sørehavnveien 71 , 5179 GODVIK

Nøkkelinfo

Sakstype
Påbygg
Bygningstype
Enebolig
Bruksareal
358 m²
Boenheter
1
Kommune
Bergen
Fylke
Vestland
Gnr / Bnr
131 / 13
Saksnummer
BYGG-2025/16030
Fase
Under behandling

Om byggesaken

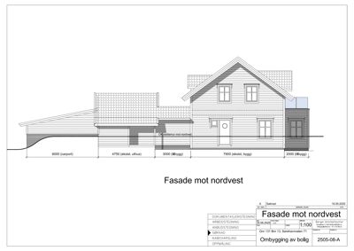
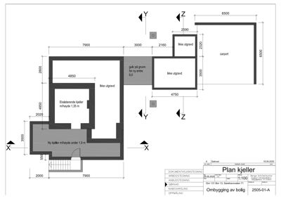
Prosjektet omfatter påbygg og fasadeendring på en eldre enebolig i Sørehavnveien 71, Bergen. Bygningen er en tømmerkonstruksjon med liggende trekledning og saltak tekket med takpanner. Påbygget innebærer økning av mønehøyde fra ca. 19,2 til 21,4 meter, endring av møneretning med 90 grader, og heving av etasjehøyder. Det planlegges også tilbygg mellom bolig og uthus, carport, og støttemurer. Fasadeendringene inkluderer endringer i vindus- og dørplassering, blant annet reduksjon av store dørfelt i sørvestfasaden. Boligen har et samlet bruksareal på ca. 358,5 m² fordelt på kjeller, 1. og 2. etasje. Tilstandsrapporten viser omfattende behov for rehabilitering, inkludert råteskader i kledning, eldre vinduer og dører, samt oppgradering av våtrom og tekniske installasjoner. Det søkes om unntak fra enkelte krav i TEK17 på grunn av bygningens alder og vernestatus. Byantikvaren fraråder omfattende endringer som vil svekke bygningens kulturhistoriske verdi, og anbefaler forsiktig oppgradering.

Produkter og materialer

Dører Ytterdører og terrassedører i tre

🧱 Tre

Antall: 8

Fukt- og råteskader på enkelte dører, store dørfelt i sørvestfasade vurderes endret

Utskifting og justering av ytterdører og terrassedører

Terrasse Terrasse med steinheller og trevirke

🧱 Stein og tre

Utgang til terrasse fra stue, rekkverk ca. 83 cm, åpninger større enn dagens krav

Oppgradering av terrasse og rekkverk

Tak Saltak med takpanner

🧱 Takpanner, lekter, takduk, undertak (taktro)

Mønehøyde økes, møneretning snus 90 grader, taktekking må utbedres/skiftes

Påbygg med endret takform og ny taktekking

VVS Varmtvannstank

Antall: 1

CTC Ferroterm 194 liter fra 2003, uten lekkasjesikring

Varmtvannstank med oppgradering av sikkerhetsutstyr

Vinduer Trekarmer med koblet glass

🧱 Tre

Antall: 22

Mange vinduer med punkterte glass, slitte karmer, noen vanskelig å åpne

Utskifting av vinduer med energiglass og tilpasset utforming

Tømrer Bygningskonstruksjon og etasjeskiller

🧱 Tømmer og tre

Oppgradering av bjelkelag, etasjeskiller og tømmerkonstruksjon med råteskader

Rehabilitering av bærende konstruksjoner

Bad Våtromsrenovering

Antall: 2

Bad i loftsetasje og hovedetasje med behov for totalrenovering, inkl. membran, tettesjikt og ventilasjon

Oppgradering av bad til dagens standard

Grunnarbeid Drenering

Usikkerhet om drenering, overvåkning anbefalt, mulig utskifting på sikt

Drenering og fuktsikring rundt grunnmur

Elektro Sikringsskap og el-anlegg

Antall: 1

Ny innmat i sikringsskap, automatsikringer med jordfeilbryter, anbefalt utvidet elkontroll

Oppgradering av elektrisk anlegg og sikringsskap

Mur Forstøtningsmurer

🧱 Mur

Murte forstøtningsmurer uten rekkverk, behov for sikring

Montering av rekkverk eller annen sikring på forstøtningsmurer

Gulv Parkett, laminat, keramiske fliser

Parkett i stue, laminat i gang, keramiske fliser på bad og kjøkken

Oppgradering og utbedring av gulvflater

VVS Varmepumpe

Antall: 1

Daikin varmepumpe montert i stue, nyere modell

Moderne varmepumpe for oppvarming

Fasade Trekledning

🧱 Enkelfalset liggende trekledning

Råteskader i kledning, behov for demontering og utbedring, ny vindsperre og lekter

Ny trekledning og utbedring av eksisterende råteskader på fasade

Trapper Innvendig malt tretrapp

🧱 Tre

Antall: 1

Bratt trapp med rekkverk under dagens krav, håndløper delvis montert

Oppgradering av innvendig trapp og rekkverk

Plantegning

Enebolig 358.5 m²

Etasje 1 136.5 m²

Rom Areal Vinduer Dører
Stue 101 0.0 m² 0 0
Kjøkken 102 0.0 m² 0 0
Sov-1 103 12.0 m² 0 0
Entre 104 0.0 m² 0 0
Vaskerom 105 8.5 m² 0 0
WC/Dusj 106 3.5 m² 0 0
Bod 107 4.6 m² 0 0
Carport 108 40.0 m² 0 0

Etasje 0 108.0 m²

Rom Areal Vinduer Dører
Kjeller 001 108.0 m² 0 1
Vaskerom 002 8.2 m² 0 1
Teknisk rom 003 6.5 m² 0 1
Bod 004 14.8 m² 1 1
Kjellerstue 005 35.2 m² 2 1
Kjellerstue 006 31.2 m² 1 1

Etasje 2 114.0 m²

Rom Areal Vinduer Dører
Soverom 201 38.0 m² 1 1
Bad 202 15.0 m² 0 1
Soverom 203 16.0 m² 1 1
Soverom 204 13.0 m² 1 1
Bad 205 4.0 m² 0 1
Gang 206 16.0 m² 0 0
Bod 207 3.0 m² 0 1

Fasader

Enebolig

Nordvest
Materiale
Tre
Taktype
Saltak
Vinduer
4
Dører
1
Synlige etasjer
2
Nordøst
Materiale
Tre
Taktype
Saltak
Takmat.
Tegl
Vinduer
5
Dører
1
Synlige etasjer
2
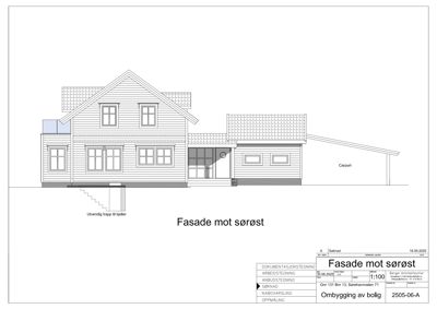
Sørøst
Materiale
Tre
Taktype
Saltak
Vinduer
7
Dører
1
Synlige etasjer
2
Vest
Materiale
Tre
Taktype
Saltak
Høyde
6.5 m
Mønehøyde
8.2 m
Vinduer
5
Dører
1
Balkonger
1
Synlige etasjer
2
Nord
Materiale
Tre
Taktype
Saltak
Høyde
6.5 m
Mønehøyde
8.2 m
Vinduer
4
Dører
1
Synlige etasjer
2
Øst
Materiale
Tre
Taktype
Saltak
Høyde
6.5 m
Mønehøyde
8.2 m
Vinduer
4
Dører
1
Balkonger
1
Synlige etasjer
2
Sør
Materiale
Tre
Taktype
Saltak
Høyde
6.5 m
Mønehøyde
8.2 m
Vinduer
4
Dører
1
Synlige etasjer
2

Garasje

Øst
Materiale
Tre
Taktype
Flatt tak
Høyde
3.5 m
Vinduer
0
Dører
2
Synlige etasjer
1

Hendelser

10.04.2026 Vedrørende gjennomføringsplan og samtykkeerklæring
09.04.2026 Mangler - 131/13/0/0 Sørehavnveien 71, påbygg bolig mm
07.04.2026 Ber om ny gjennomføringsplan
07.04.2026 Oversender oppdatert tegnesett for prosjektet
19.11.2025 Vedr. møte med Byantikvaren - 131/13/0/0 Sørehavnveien 71, påbygg bolig mm
30.10.2025 Vedrørende møte- 131/13/0/0 Sørehavnveien 71, påbygg bolig mm
30.10.2025 Uttalelse fra Byantikvaren - 131/13/0/0 Sørehavnveien 71, påbygg bolig mm
28.10.2025 Kulturmiljøfagleg fråsegn - 131/13/0/0 Sørehavnveien 71, påbygg bolig mm
28.10.2025 Byantikvarens uttalelse. Sørehavnveien 71, gnr 131/ bnr 13, påbygg, fasadeendring m.m. BYGG-2025/16030
27.10.2025 Byantikvaren ber om utsatt frist for uttalelse - bekreftelse
23.10.2025 Tegninger - 131/13/0/0 Sørehavnveien 71, påbygg bolig mm
30.09.2025 Til orientering
29.09.2025 Sørehavnveien 71, anmodning om uttalelse
29.09.2025 Intern høring, Sørehavnveien 71, påbygg bolig mm
23.09.2025 Svar på spørsmål - 131/13/0/0 Sørehavnveien 71, påbygg bolig mm
23.09.2025 Spørsmål om saksbehandlingstid m.m. 131/13/0/0 Sørehavnveien 71, påbygg bolig mm
23.09.2025 Bekreftelse på mottatt søknad
19.09.2025 Sørehavnveien 71 Søknad om tillatelse i ett trinn 131/13