VerticalExtension UnderBehandling Enebolig

Påbygg og tilbygg på enebolig i Storgata 2, Hammerfest

📍 Storgata 2 , 9600 HAMMERFEST

Nøkkelinfo

Sakstype
Påbygg
Bygningstype
Enebolig
Bruksareal
523 m²
Boenheter
12
Kommune
Hammerfest - Hámmerfeasta
Fylke
Finnmark - Finnmárku - Finmarkku
Gnr / Bnr
25 / 230
Saksnummer
2024/11850
Fase
Under behandling

Om byggesaken

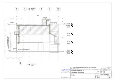
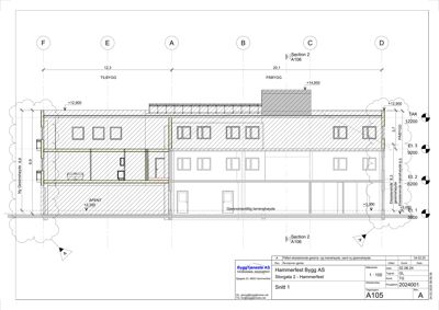
Prosjektet omfatter påbygg av en ekstra etasje på eksisterende enebolig med endring av takform fra valmtak til flatt tak, samt oppføring av et to-etasjers tilbygg med boliger over en åpen underetasje som benyttes til parkeringsareal for taxi. Eksisterende loft ombygges til fullverdig boligetasje, og det installeres heis med forlengelse av eksisterende heissjakt. Totalt vil antall boenheter økes fra 3 til 12. Bygget får balkonger tilknyttet hver boenhet, og felles uteoppholdsareal etableres på takterrasse. Tiltaket krever dispensasjon fra regulert byggehøyde og avstandskrav til nabogrense og vei. Det er gjennomført vurderinger av naturfare som stormflo og kvikkleire, og tiltaket planlegges med tilknytning til offentlig vann- og avløpsnett. Prosjektet er lokalisert i et område med hensynssone for bevaring av kulturmiljø, og det er lagt vekt på estetisk tilpasning til nabobebyggelse.

Produkter og materialer

Grunnarbeid VA-tilknytning

Tilknytning til offentlig vann- og avløpsnett, VA-skjema signert

VA-installasjoner for prosjektet

Terrasse Takterrasse

Antall: 1

Felles uteoppholdsareal på takterrasse, utvidet for å oppnå krav til areal

Felles uteareal for beboere på takterrasse

Dører Balkongdører

Balkonger med dører tilknyttet hver boenhet, delvis inntrukket og utkraget 0,5 m

Dører til balkonger for hver boenhet

Elektro Heisinstallasjon

Antall: 1

Personheis installeres med forlengelse av eksisterende heissjakt

Heis for tilgjengelighet til nye etasjer

Trapper Trappehus og heissjakt

Antall: 1

Utvidelse av trappehus og forlengelse av heissjakt opp til takterrasse

Tilgang til takterrasse og heisinstallasjon

Fasade Fasadeendring

Tilbygg og påbygg med fasadeendringer tilpasset eksisterende bebyggelse og kulturmiljø

Fasadeendringer for estetisk tilpasning og nye balkonger

Maling Innvendig og utvendig maling

Maling av nye og endrede bygningsflater

Overflatebehandling av nye konstruksjoner

Grunnarbeid Fundamentering

Eksisterende fundamentering dimensjonert for påbygg av ekstra etasje

Grunnarbeid og fundamentering for påbygg

VVS Sanitæranlegg

Prosjektering av sanitæranlegg ikke ferdig, normal utførelse for bolig

Sanitærinstallasjoner for nye boenheter

Betong Åpen underetasje for parkering

Åpen underetasje i tilbygg for parkeringsareal for taxi-virksomhet

Betongkonstruksjon for parkeringsareal

Isolasjon Bygningsisolasjon

Isolasjon iht. TEK17 for påbygg og tilbygg

Isolasjon for nye bygningsdeler

Vinduer Fasadevindu

Ekstra vinduer i fasade for leiligheter i 2. og 3. etasje for å oppnå lyskrav

Nye og ekstra vinduer i påbygg og tilbygg

Ventilasjon Ventilasjonsanlegg

Ventilasjon for nye boenheter og påbygg

Ventilasjonsløsninger iht. TEK17

Tak Flatt tak

Antall: 1

Endring fra valmtak til flatt tak med innvendig avløp

Ny takkonstruksjon for påbygg og tilbygg

Hendelser

21.04.2026 25/230- Storgata 2- Behov for tilleggsopplysninger
11.03.2026 Storgata 2 Supplering av søknad 25/230
26.02.2026 25/230 - Storgata 2 - Manglende dokumentasjon
05.02.2026 Manglende dokumentasjon
30.01.2026 25/230 - Storgata 2 - Manglende dokumentasjon
06.01.2026 Storgata 2 Supplering av søknad 25/230
25.09.2025 Svar på spørsmål om utsettelse av svarfristen
23.09.2025 Behov for tilleggsdokumentasjon
23.09.2025 Jeg må be om utsettelse av svarfristen til 3. november
03.07.2025 Midlertidig svar - gbnr 25/230 - tilbygg og påbygg
02.07.2025 Ny frist for å komplettere søknaden
02.07.2025 E-post korrespondanse
28.06.2025 Storgata 2 Supplering av søknad 25/230
25.02.2025 Storgata 2 Søknad om rammetillatelse 25/230
25.02.2025 Supplering av søknad
04.02.2025 Tilbakemelding om mangler ved søknaden