VerticalExtension UnderBehandling Enebolig

Påbygg av enebolig med nytt inngangsparti på Svingen 22

📍 Svingen 22 , 1482 NITTEDAL

Nøkkelinfo

Sakstype
Påbygg
Bygningstype
Enebolig
Bruksareal
225 m²
Boenheter
1
Kommune
Nittedal
Fylke
Akershus
Gnr / Bnr
15 / 209
Saksnummer
26/01357
Fase
Under behandling

Om byggesaken

Eksisterende enebolig på Svingen 22 med grunnflate på ca. 138 m² får påbygg med en ny 2. etasje over den delen av boligen som har lav himling. Påbygget øker boligens bruksareal (BRA) med ca. 80 m² uten å øke grunnflaten (BYA). Det planlegges også et nytt inngangsparti/-overbygg som gir en økning i BYA på ca. 6 m². Bygningen har saltak og trekledning, og påbygget tilpasses eksisterende takform og materialbruk. Maksimal mønehøyde etter påbygg blir ca. 7,8 meter, og gesimshøyden ca. 6,36 meter. Det er en eksisterende frittliggende garasje på eiendommen, men denne inngår ikke i påbygget. Prosjektet inkluderer fasadetegninger, plantegninger og snitt, og vurderer estetikk, byggeskikk og reguleringsplanbestemmelser.

Produkter og materialer

Rekkverk Balkongrekkverk

Antall: 1

Rekkverk på balkong i påbygget

Sikkerhetsrekkverk på balkong i ny etasje

Fasade Trekledning

🧱 Tre

Tilpasning til eksisterende fasade med god form og materialbruk i henhold til PBL §29-2

Fasade med trekledning som matcher eksisterende bygg

Dører Ytterdører

Antall: 3

Ytterdører i tre, inkludert inngangsparti/-overbygg

Nye ytterdører i påbygg og nytt inngangsparti

Maling Utvendig og innvendig maling

Maling av fasade og innvendige flater i påbygget

Overflatebehandling av nye konstruksjoner

Tak Saltak med takstein

🧱 Takstein

Endring fra torvtak til takstein, mulighet for solcellepaneler

Nytt saltak med takstein som erstatter eksisterende torvtak, mulighet for solcellepaneler

VVS Sanitæranlegg

Oppdatering/tilpasning av sanitæranlegg i påbygget, tilknytning til vann og kloakk

VVS-installasjoner for nytt bad og vaskerom i påbygget

Gulv Innvendige gulv

Gulv i påbygget, sannsynligvis parkett eller tilsvarende

Innvendige gulv i ny etasje og inngangsparti

Vinduer Fasadevindu

Antall: 5

Vinduer i trekarm, tilpasset eksisterende vindusform

Nye og eventuelt utskiftede vinduer i påbygget og første etasje

Grunnarbeid Fundamentering og grunnmur

Fundamentering for påbygg og nytt inngangsparti

Grunnarbeid for påbygg og inngangsparti

Elektro Elektriske installasjoner

Elektriske installasjoner i påbygg og nytt inngangsparti

Elektroarbeid for belysning, strøm og eventuelle solcellepaneler

Tømrer Påbygg konstruksjon

🧱 Tre

Konstruksjon av ny 2. etasje over eksisterende boligdel

Tømrerarbeid for påbygg av ny etasje

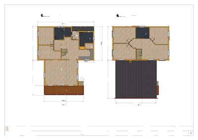
Plantegning

Enebolig 224.6 m²

Etasje 1 138.2 m²

Rom Areal Vinduer Dører
Soverom 101 52.6 m² 1 1
Kjøkken 102 29.1 m² 1 1
Stue 103 38.9 m² 3 1
Veranda 104 13.0 m² 1 1
Overbygning ved inngang 105 4.7 m² 0 1
Stue STUE 42.0 m² 3 1
Sov 1 SOV 1 14.0 m² 1 1
Sov 2 SOV 2 14.0 m² 1 1
Bad BAD 6.0 m² 0 1
Badstu BADSTU 4.0 m² 0 1
Vaskerom VF 4.0 m² 0 1
Vask VASK 4.0 m² 0 1
Kjølerom KJØL 2.0 m² 0 1
Kjøkken KJØKKEN 10.0 m² 1 1
Gang GANG 6.0 m² 0 0
Hall HALL 10.0 m² 0 0
Veranda VERANDA 16.8 m² 0 0
Vaskerom 106 6.0 m² 1 1

Etasje 2 86.4 m²

Rom Areal Vinduer Dører
Soverom 201 35.0 m² 1 1
Soverom 202 35.0 m² 1 1
Bad 203 16.4 m² 0 1

Fasader

Enebolig

Nord
Materiale
Tre
Taktype
Saltak
Høyde
6.5 m
Mønehøyde
8.2 m
Vinduer
5
Dører
1
Balkonger
1
Synlige etasjer
1
Sør
Materiale
Tre
Taktype
Saltak
Høyde
6.5 m
Mønehøyde
8.2 m
Vinduer
4
Dører
1
Balkonger
1
Synlige etasjer
1
Vest
Materiale
Tre
Taktype
Saltak
Høyde
2.5 m
Mønehøyde
3.0 m
Vinduer
5
Dører
1
Balkonger
1
Synlige etasjer
2
Øst
Materiale
Tre
Taktype
Saltak
Vinduer
3
Dører
1
Synlige etasjer
2

Hendelser

23.04.2026 26/01357-3 Referat fra forhåndskonferanse - 15/209 - Svingen 22 - Påbygg
07.04.2026 26/01357-4 Bekreftelse forhåndskonferanse - 15/209
05.04.2026 26/01357-2 Forhåndskonferanse - 15/209 - tid må bekreftes
24.03.2026 26/01357-1 Forhåndskonferanse - Bestilling - 15/209 - Svingen 22