VerticalExtension Igangsettingstillatelse Enebolig

Påbygg, bruksendring og fasadeendring på Borggata 12, Stord

📍 Torget 11A , 5417 STORD

Nøkkelinfo

Sakstype
Påbygg
Bygningstype
Enebolig
Bruksareal
720 m²
Boenheter
2
Kommune
Stord
Fylke
Vestland
Gnr / Bnr
27 / 188
Saksnummer
2025/1814
Fase
Igangsettingstillatelse

Om byggesaken

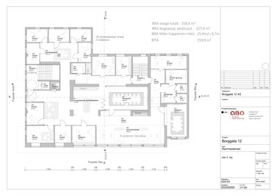
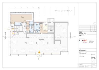
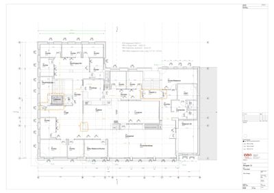
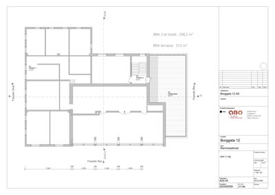
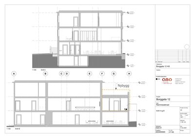
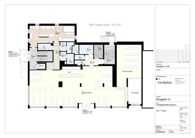
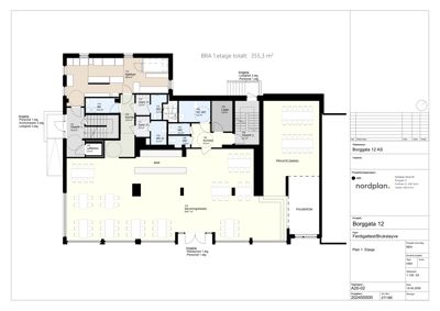
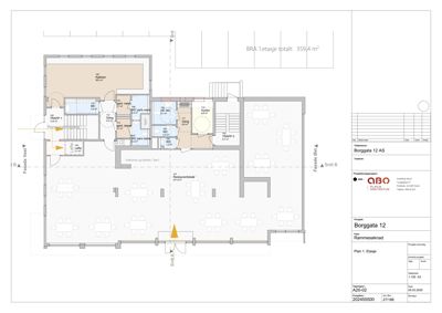
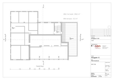
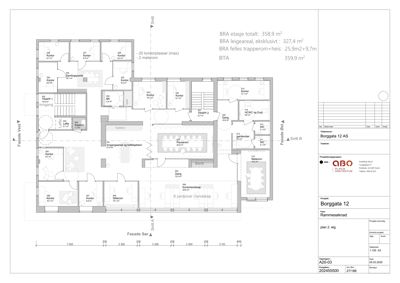
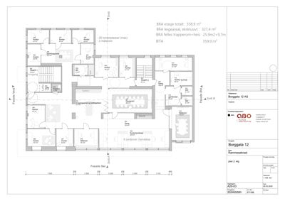
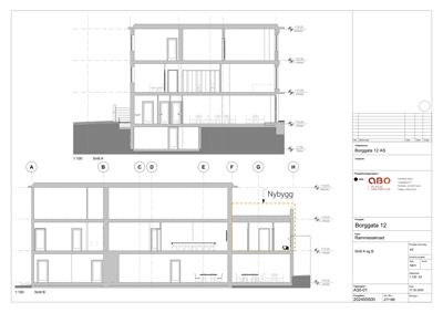
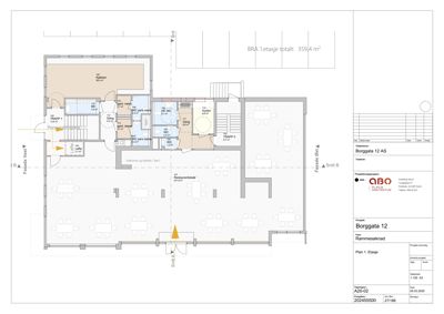
Tiltaket omfatter omfattende påbygg, bruksendring og fasadeendring av Klingsheimbygget på Borggata 12 i Stord sentrum. Bygget består av tre etasjer med eksisterende leiligheter i 3. etasje, kontorlokaler i 2. etasje og tidligere butikklokaler i 1. etasje. Planen inkluderer etablering av restaurant/bar i 1. etasje, kontorlokaler i 2. etasje, samt oppgradering og etterisolering av fasader med murkledning og nye 3-lags isolerglassvinduer. Det er planlagt nytt påbygg mot øst, samt riving av eksisterende garasje og opparbeidelse av parkeringsplasser på bakkeplan. Bygget får flatt tak og fasader i mur og betong. Tiltaket inkluderer også tekniske installasjoner som ventilasjon, varme- og kuldeinstallasjoner, sanitærinstallasjoner, brannalarmanlegg og løfteinnretninger (løfteplattform). Det er etablert midlertidige bruksløyver for deler av bygget, og det foreligger dispensasjon fra reguleringsplan for bruksendring fra butikk til servering i 1. etasje. Totalt areal for tiltaket er ca. 720 m². Det er også etablert privat midlertidig avløpsrenseanlegg med slamavskiller og feittutskiller i kjeller og utomhus. Tiltaket er godt dokumentert med ansvarlige aktører og kontrollører, og har fått nødvendige godkjenninger fra kommunen og Arbeidstilsynet.

Produkter og materialer

Mur Murarbeid og membran i våtrom

Murarbeid og membran i våtrom

Tømrer Tømrerarbeid og montering av trekonstruksjoner

🧱 Tre

Tømrerarbeid i forbindelse med påbygg og ombygging

VVS Feittutskiljar

Antall: 1

Feittutskiljar plassert i kjeller, temperatur under 20°C

Feittutskiljar for behandling av feittholdig avløpsvann

Elektro Brannalarmanlegg

Brannalarmanlegg installert og kontrollert

Løfteinnretninger Løfteplattform

Antall: 1

Løfteplattform i 1. og 2. etasje som erstatning for heis

Løfteplattform installert i stedet for heis for tilgjengelighet

Fasade Mur og betong fasade med nye vinduer

🧱 Mur, betong, 3-lags isolerglass

Nye vinduer med 3-lags isolerglass, fasade i mur og betong, flatt tak med tegl

Etterisolering og ny fasadekledning med mur og betong, nye vinduer med 3-lags isolerglass

Annet Midlertidig avløpsrenseanlegg

Antall: 1

Midlertidig primærreinsing med slamavskiljar og feittutskiljar

Privat midlertidig avløpsrenseanlegg som skal fjernes når kommunalt anlegg er klart

VVS Slamavskiljar

Antall: 1

Slamavskiljar 4 m³ sirkulær type VPI Baga, plassert utvendig på nordsiden

Privat midlertidig slamavskiljar for avløpsrensing

Trapper Innvendige trapper

Antall: 2

To innvendige trapper i bygget

VVS Sanitærinstallasjoner

Sanitærinstallasjoner i hele bygget, inkludert feittutskiller og slamavskiller

Grunnarbeid Veg- og grunnarbeider

Grunnarbeider for utomhus og parkeringsareal

Ventilasjon Ventilasjonsanlegg

Nytt ventilasjonsanlegg for godt inneklima

Ventilasjon og klimainstallasjoner i bygget

Tak Flatt tak med tegl

🧱 Tegl

Flatt tak med tegl som takmateriale

Utendørs Parkeringsplasser og rampe

Antall: 9

9 parkeringsplasser på egen tomt, rampe for tilkomst

Opparbeidelse av parkeringsplasser og rampe på bakkeplan

Riving Riving av garasje

Antall: 1

Riving av eksisterende garasje på tomten

Fasader

Enebolig

Øst
Materiale
Mur
Taktype
Flatt tak
Takmat.
Tegl
Høyde
6.5 m
Mønehøyde
8.2 m
Vinduer
4
Dører
0
Balkonger
1
Synlige etasjer
2
Vest
Materiale
Betong
Taktype
Flatt tak
Høyde
9.6 m
Mønehøyde
10.1 m
Vinduer
12
Dører
1
Synlige etasjer
3
Nord
Materiale
Betong
Taktype
Flatt tak
Høyde
9.4 m
Mønehøyde
20.0 m
Vinduer
13
Dører
1
Synlige etasjer
3
Sør
Materiale
Betong
Taktype
Flatt tak
Takmat.
Tegl
Høyde
9.6 m
Mønehøyde
20.0 m
Vinduer
19
Dører
2
Synlige etasjer
3

Hendelser

15.04.2026 Mellombels bruksløyve for deler av tiltaket - 27/188 - Påbygg, bruksendring og fasadeendring, Borggata 12
14.04.2026 Søknad om mellombels bruksløyve - 27/188 - del av tiltaket, Borggata 12
12.04.2026 Vi innvilger søknaden om samtykke etter automatisk saksbehandling
15.01.2026 Matrikkelføring mellombels bruksløyve for ombygging og tilbygg, Borggata 12 - 27/188
08.01.2026 Mellombels bruksløyve for delar av tiltaket - 27/188 - Påbygg, bruksendring og fasadeendring, Borggata 12
05.01.2026 Stadfesting av motteken søknad om mellombels bruksløyve - 27/188 - Påbygg, bruksendring og fasadeendring, Borggata 12
30.12.2025 Søknad om mellombels bruksløyve - 27/188 - heile/del av tiltaket, Borggata 12
03.12.2025 Løyve til endring og igangsetting - 27/188 - Påbygg, bruksendring og fasadeendring, Borggata 12
01.12.2025 Stadfesting av motteken søknad om igangsetting - 27/188 - Påbygg, bruksendring og fasadeendring, Borggata 12
01.12.2025 Søknad om igangsettingsløyve - 27/188 - heile/del av tiltaket, Borggata 12
10.11.2025 Svar på spørsmål om avlaupsreinsing ved bruksendring og påbygg - Borggata 12
10.11.2025 Spørsmål vedk reinsekrav
19.06.2025 Matrikkelføring igangsettingsløyve for ombygging og tilbygg, Borggata 12 - 27/188
19.06.2025 Løyve til igangsetting - 27/188 - Påbygg, bruksendring og fasadeendring, Borggata 12
17.06.2025 Supplering av søknad 27/188
17.06.2025 Gjennomføringsplan 27/188
16.06.2025 Førebels svar - 27/188 - Påbygg, bruksendring og fasadeendring, Borggata 12
16.06.2025 Stadfesting av motteken søknad om igangsetting - 27/188 - Påbygg, bruksendring og fasadeendring, Borggata 12
11.06.2025 Søknad om igangsettingsløyve - 27/188 - del av tiltaket, Borggata 12
10.06.2025 Kopi av vedtak - 27/188 - Påbygg, bruksendring og fasadeendring, Borggata 12
10.06.2025 Rammeløyve - Dispensasjon - 27/188 - Påbygg, bruksendring og fasadeendring, Borggata 12
02.06.2025 Melding om synfaring - 27/188 - Påbygg, bruksendring og fasadeendring, Borggata 12
19.05.2025 Melding om tidspunkt for politisk handsaming - 27/188 - Påbygg, bruksendring og fasadeendring, Borggata 12
12.05.2025 Vi innvilger søknaden om samtykke, med vilkår
06.05.2025 Borggata 12-Stillas
06.05.2025 Borggata 12-Stillas
14.04.2025 Avklaring VA - 27/188 - Påbygg, bruksendring og fasadeendring, Borggata 12
14.04.2025 Svar, avklaring VA - 27/188 - Påbygg, bruksendring og fasadeendring, Borggata 12
14.04.2025 Avklaring VA - 27/188 - Påbygg, bruksendring og fasadeendring, Borggata 12
08.04.2025 Borggata 12 Supplering av søknad 27/188
08.04.2025 Førespurnad om uttale - 27/188 - Påbygg, bruksendring og fasadeendring, Borggata 12
26.03.2025 Førebels svar - 27/188 - Påbygg, bruksendring og fasadeendring, Borggata 12
17.03.2025 Stadfesting av motteken søknad - 27/188 - Påbygg og bruksendring, Borggata 12
12.03.2025 Søknad om rammeløyve - 27/188, Borggata 12