FloorPlan
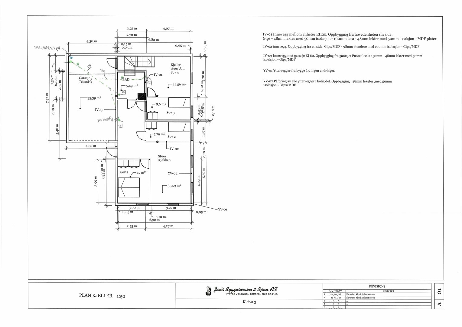
Plantegning av kjelleretasje (PLAN KJELLER) med romfordeling, dimensjoner og tekniske opplysninger om innvendige vegger og gulvkonstruksjon.
1 / 1
Rehabilitation
Soeknad
Enebolig
Rehabilitering av bad og kjøkken i kjeller, Kleiva 3
📍 Kleiva 3 , 1534 MOSS
Nøkkelinfo
- Sakstype
- Rehabilitering
- Bygningstype
- Enebolig
- Bruksareal
- 113 m²
- Boenheter
- 1
- Kommune
- Moss
- Fylke
- Østfold
- Gnr / Bnr
- 3 / 1078
- Saksnummer
- 2026/3020
- Fase
- Søknad
Om byggesaken
Rehabilitering av eksisterende enebolig på Kleiva 3 med etablering av nytt bad på 5,49 m² og nytt kjøkken i kjelleretasjen. Arbeidet omfatter reparasjon og endring av vann- og spillvannsanlegg innvendig, samt supplerende tiltak på sanitæranlegget. Kjelleretasjen har totalt 112,88 m² med flere rom inkludert stue, soverom og garasje/teknisk rom. Sanitæranlegget oppgraderes med nytt vann- og avløpssystem, og eksisterende vanninntak benyttes videre. Bygget har en trapp og flere innerdører, men ingen nye vinduer eller fasadeendringer er nevnt.
Produkter og materialer
VVS
Vann- og spillvannsanlegg
Reparasjon, endring og supplerende tiltak på eksisterende sanitæranlegg, etablering av nytt bad og kjøkken i kjeller, eksisterende vanninntak benyttes
Oppgradering og reparasjon av vann- og avløpssystem innvendig i bolig, inkludert nytt bad og kjøkken i kjeller
Grunnarbeid
Bunnledning
Bunnledning dokumentert i vedlegg, del av sanitæranleggets reparasjon og endring
Arbeid på bunnledning som del av vann- og avløpssystemet
Tømrer
Innvendige vegger og dører
🧱 Gips, MDF, isolasjon, leca
Oppbygging av innervegger med gips, MDF-plater, isolasjon og leca som beskrevet i plantegninger
Rehabilitering og oppbygging av innervegger i kjeller med isolasjon og overflateplater
Plantegning
Enebolig 112.9 m²
Etasje 0 112.9 m²
| Rom | Areal | Vinduer | Dører |
|---|---|---|---|
| Stue/Kjøkken 001 | 35.6 m² | 3 | 2 |
| Sov 1 002 | 12.0 m² | 0 | 1 |
| Sov 2 003 | 7.8 m² | 0 | 1 |
| Sov 3 004 | 8.6 m² | 0 | 1 |
| Kjeller stue/ Alt. Sov 4 005 | 14.6 m² | 0 | 1 |
| BAD 006 | 5.5 m² | 0 | 1 |
| Garasje / Teknisk 007 | 35.4 m² | 1 | 1 |
Hendelser
15.04.2026
Kleiva 3 - 3/1078 - Søknad om reparasjon/endring/supplerende tiltak på eksisterende sanitæranlegg